EasyManua.ls Logo

Magic-Pak MCE4 Series - Page 14

Default Icon
14 pages
Print Icon
To Previous Page IconTo Previous Page
To Previous Page IconTo Previous Page
Loading...
Page 14 of 14 507860-01Issue 1927
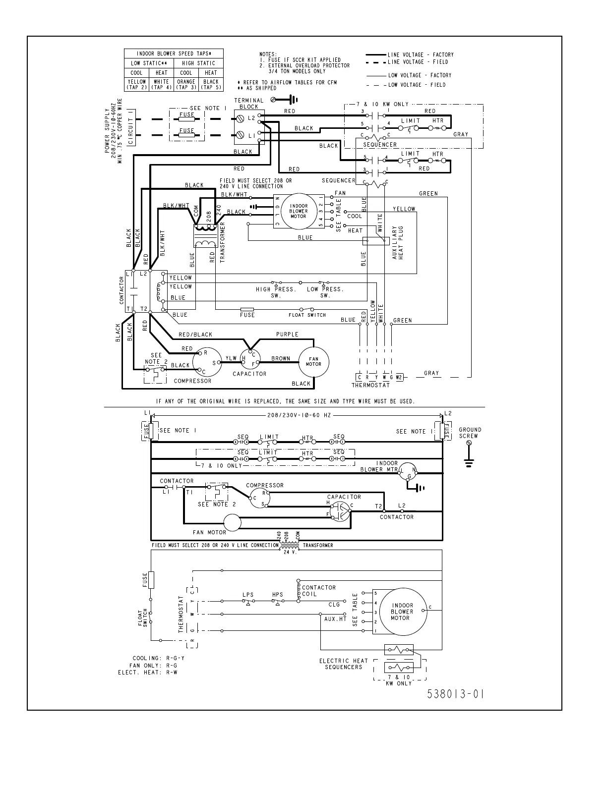
Figure 10. Connection Diagram - MCE With Factory Installed Electric Heater
# 538013-01