EasyManua.ls Logo

Magic-Pak MCE4 Series - Wiring Diagrams

Default Icon
14 pages
Print Icon
To Next Page IconTo Next Page
To Next Page IconTo Next Page
To Previous Page IconTo Previous Page
To Previous Page IconTo Previous Page
Loading...
507860-01 Issue 1927 Page 13 of 14
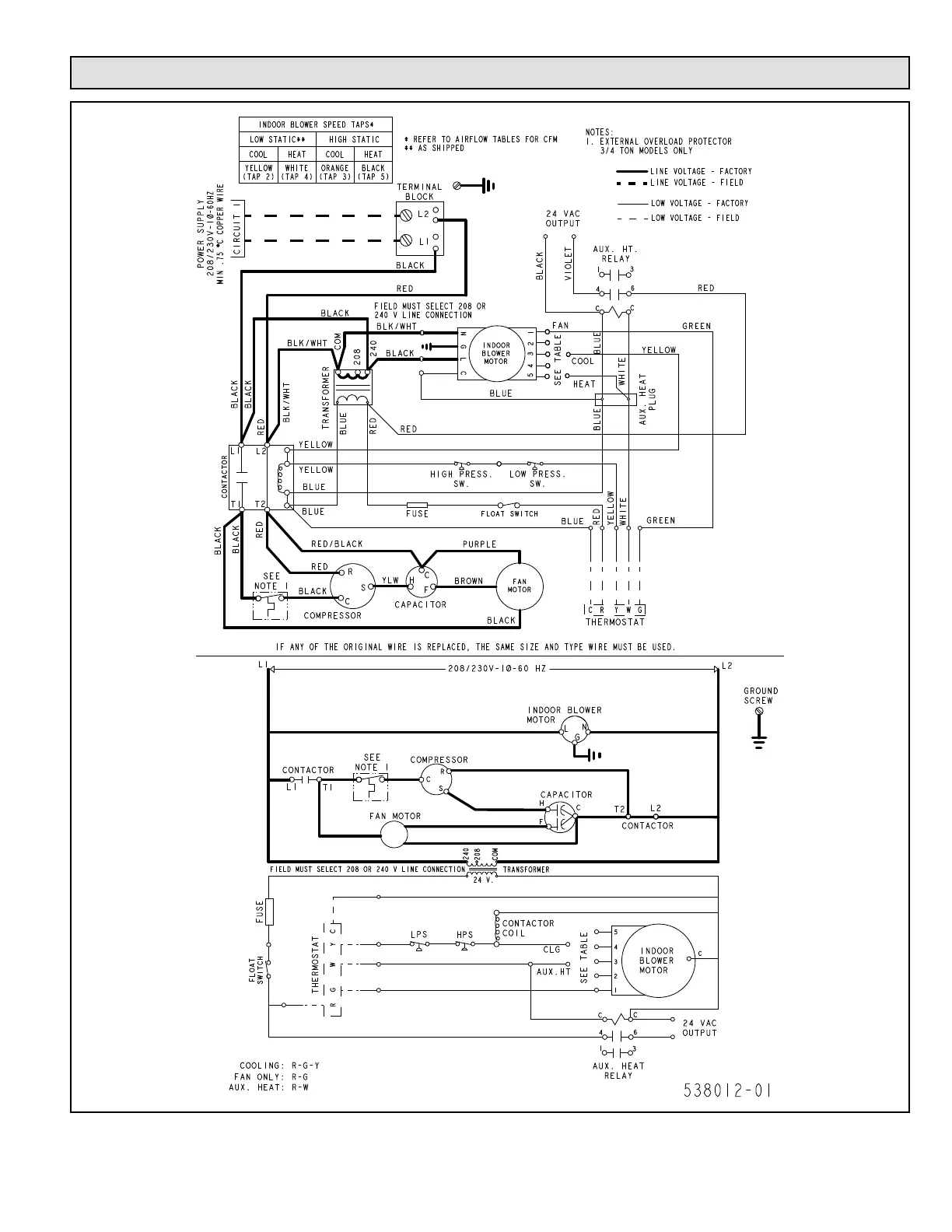
Figure 9. Connection Diagram - MCE Without Electric Heater
# 538012-01
Wiring Diagrams