EasyManua.ls Logo

Magic-Pak MCE4 Series - Page 3

Default Icon
14 pages
Print Icon
To Next Page IconTo Next Page
To Next Page IconTo Next Page
To Previous Page IconTo Previous Page
To Previous Page IconTo Previous Page
Loading...
507860-01 Issue 1927 Page 3 of 14
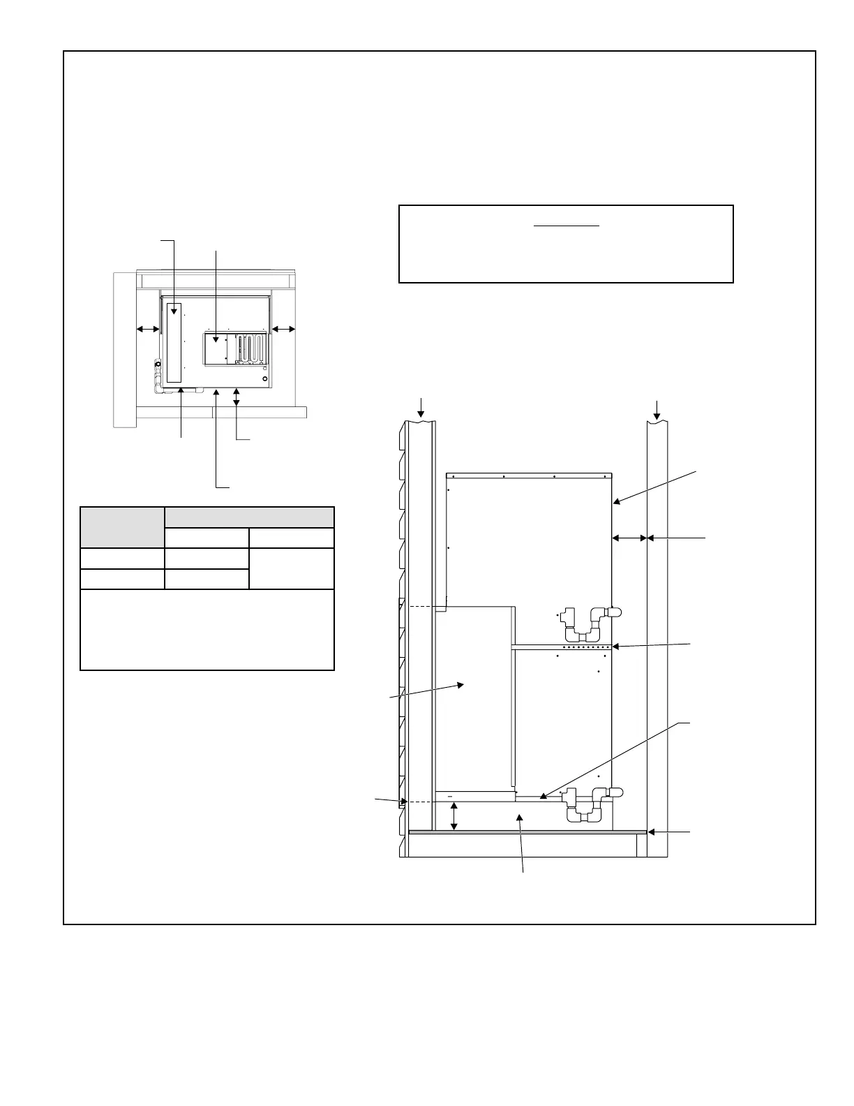
Figure 1. Minimum Clearances
ExteriorWall
Wall Sleeve
(one each side)
InteriorWall
Clearances*
MountingStrap
(one each side)
3/4" Plywood Riser
Floor
Front of Unit
Sill Plate
4" Min.
Unit must be supported by platform, which must be
level with sill plate of hole in exterior wall.
Platform (field supplied) -
Side View
Clearance to combustible materials is 0” at the side, top, and front of plenum. If accessibility clearances are greater
than clearances to combustibles, accessibility clearances take precedence.
The front of the unit must be accessible for service. If the unit is enclosed, providing a door or access panel opposite
the front of the unit is the preferred method of providing access. The door or access panel must be at least 30” wide
(centered on the unit) and as tall as the unit.
IMPORTANT
The unit must be installed with approved wall sleeve and grille
accessories for safe operation. Improper installations could result
in property damage, personal injury, or death.
Cabinet
Height
Minimum Unit Clearance
Front* Sides
44” or 48” 4”
1”
56” or 68” 5”
* Listed clearance is using front return with
no front return duct installed. If a return
duct (top or front) is installed, enough
clearance must be provided for the drain
trap installation.
Top View
Supply Duct
Opening
Clearance to
Front of Unit*
Front of Unit
1”
Min.
1”
Min.
Optional Front
Return Opening
May be used with or
without attached ductwork
Return Duct
Opening