EasyManua.ls Logo

Manitowoc RFS1200A - Page 126

Manitowoc RFS1200A
252 pages
Print Icon
To Next Page IconTo Next Page
To Next Page IconTo Next Page
To Previous Page IconTo Previous Page
To Previous Page IconTo Previous Page
Loading...
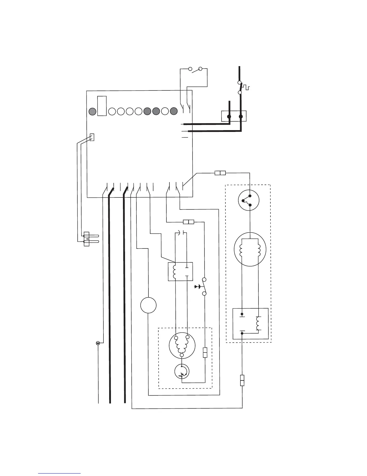
126 Part Number 000007661 6/13
Step 3 Unsuccessful restart or abnormal operation -
The 60M light de-energizes and the 2ND light
energizes. The reset button on the control board must
be pressed to restart the ice machine.
GRD
L1
L1
L2
L2
L2
L2
L2
COMPRESSOR
FA N
DRIVE
DR
C
20M
60M
2ND
WTR
B-T
B-E
RESET
GRD
G
B
W
FA N
BLACK
WHITE
BL
ACK
BLACK
R
ORANGE
S
S
L
COMPRESSOR
C
RED
BLACK
BLACK
WH
ITE
INPUT
POWER
WATER
SENSOR
CONTRO L
BOARD
K
C
A
LB
GEARMOTOR
24V
N
O
MM
O
C
CA
V
E
N
I
L
RED
RED
WH
I
T
E
BIN T
-ST
A
T
W
HI T E
RED
WHITE
M
1
CO
MPRESSOR
SW
ITCH
PWR
BL
ACK
T
.
O.L.
BLACK
RED
HIGH PRESSURE
SAFETY SWITCH
4
2
3
RU N
STA RT
T
.
O. L.
E
U
LB
YEL
L
O
W
BLACK
WHITE
M
BLA
CK

Table of Contents

Related product manuals