EasyManua.ls Logo

Maruzen MAZE-4 - Before Use; Name and Function of Each Part

Default Icon
12 pages
Print Icon
To Next Page IconTo Next Page
To Next Page IconTo Next Page
To Previous Page IconTo Previous Page
To Previous Page IconTo Previous Page
Loading...
2
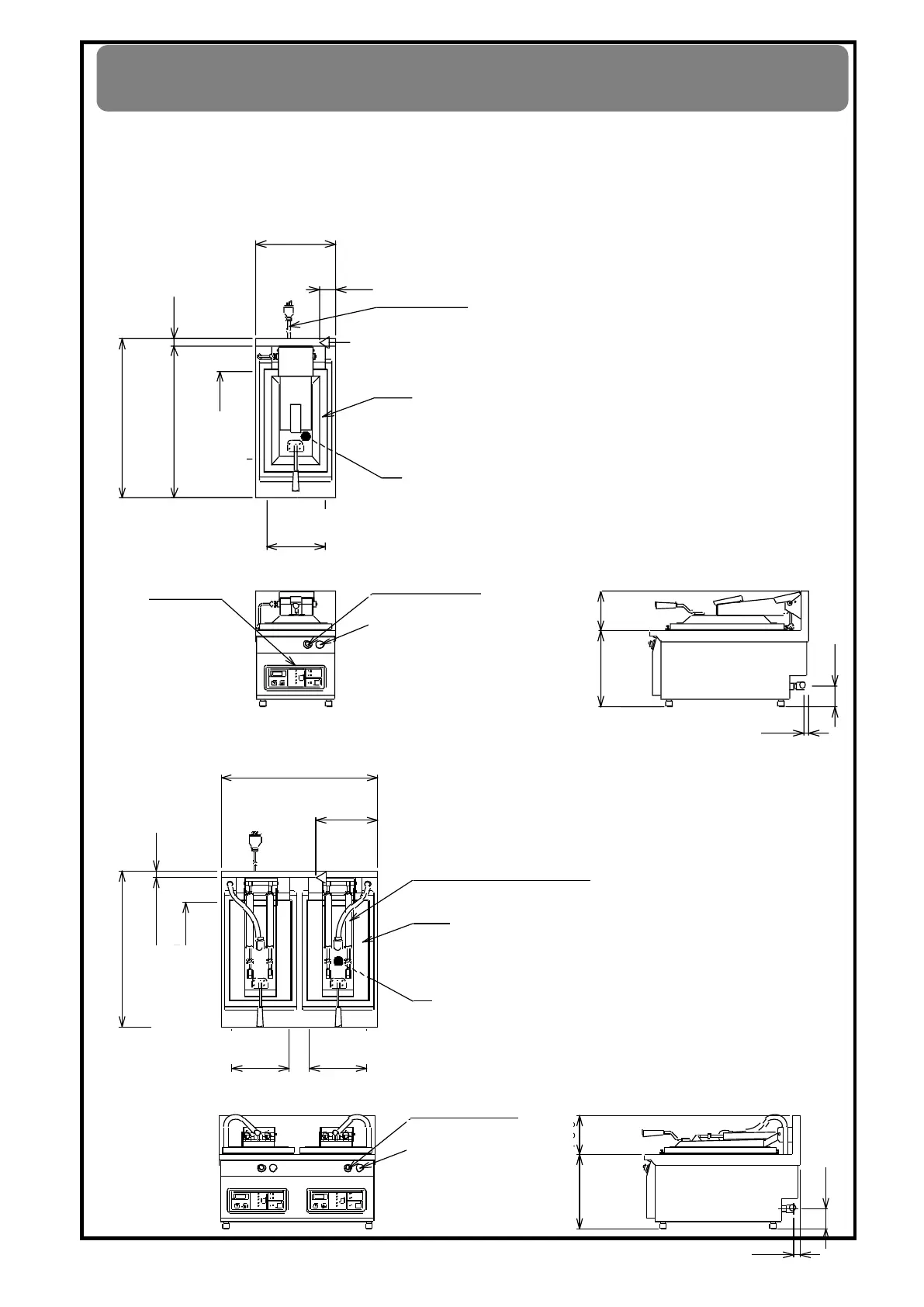
Before use
1-1
Name and function of each part
Name of each part
調
調
MAZE-4
MAZE-44
調
調
330
600
574
26
Power cord
Lid
Pan
Display lamp during cooking
Cooking start button
Usable
dimension
of pan
Spring balancer
Lid
Pan
Usable dimension of pan
Usable dimension of pan
Usable
dimension
of pan
Display lamp during cooking
Cooking start button
Control panel