EasyManua.ls Logo

Marvel 61HK - Dimensions for Models 61 HK & 6 OHK-SS Solid Door; Recommended Rough-in Opening Dimensions

Marvel 61HK
16 pages
Print Icon
To Next Page IconTo Next Page
To Next Page IconTo Next Page
To Previous Page IconTo Previous Page
To Previous Page IconTo Previous Page
Loading...
5
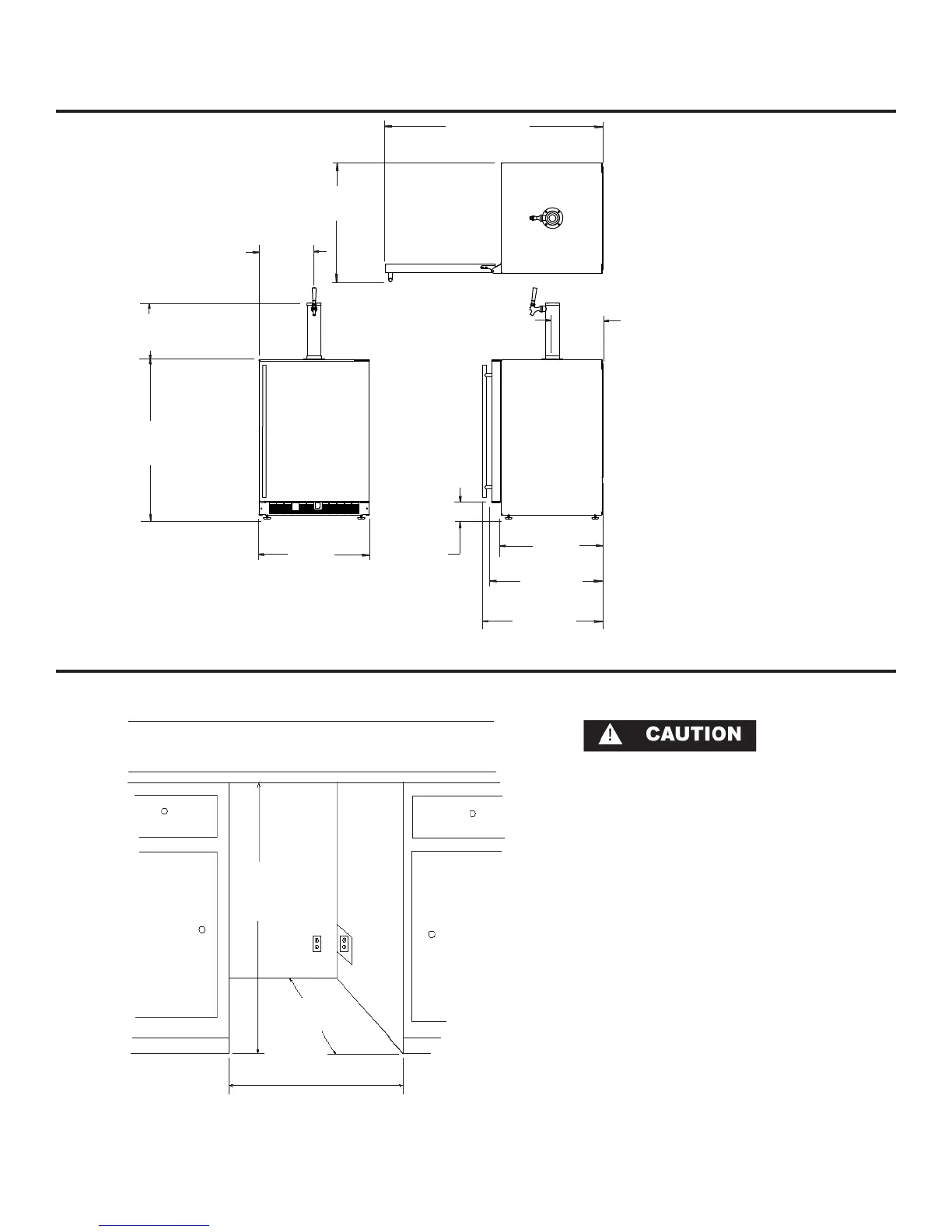
Recommended Rough in Opening Dimensions, Model 61HK & 6OHK-SS Solid Door
*24” (61 cm)
standard cabinet
depth
* Depth dimension may vary depending on
each individual installation.
34-1/2”
(87.6 cm)
Electrical Requirements: 115 volts,
3.3 amps running max. 15 amp
dedicated circuit required. 3 prong
grounded receptacle required.
Power outlet can be located in the
back wall behind unit. Add 1” to
depth for thickness of plug, or recess
outlet 1” into the wall. Power outlet
can also be installed in adjacent
cabinetry with a cutout for routing of
power cord. Follow all local building
codes when installing electrical and
unit.
Product weight = 140 lbs. (63.6 kg.)
24” (61 cm)
DIMENSIONS FOR MODELS 61HK & 6OHK-SS SOLID DOOR
34-1/4” to 34-1/2”
(87 to 87.6cm)
3” to 3-1/4”
(7.62 to 8.26cm)
22”
(55.88cm)
24-1/16”
(61.11cm)
26”
(66.04cm)
23-7/8”
(60.66cm)
11-15/16”
(30.33cm)
11”
(27.94cm)
47”
(119.38cm)
25-11/16”
(65.25cm)
15-1/4”
(38.74cm)

Related product manuals