EasyManua.ls Logo

Marvel ML24BNS2 - Page 15

Marvel ML24BNS2
68 pages
Print Icon
To Next Page IconTo Next Page
To Next Page IconTo Next Page
To Previous Page IconTo Previous Page
To Previous Page IconTo Previous Page
Loading...
15
1
5
32"

1
5
32"

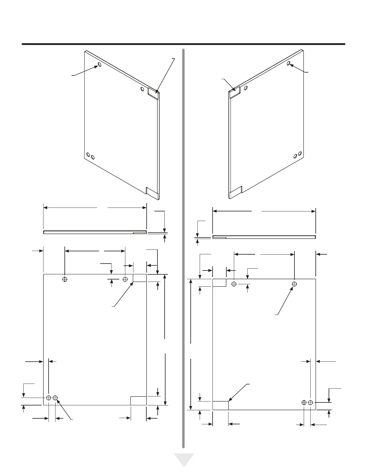
OVERLAY DOOR PANEL INSTALLATION
Clearance
for hinge
at top and
bottom
Clearance for hinge
at top and bottom
Clearance for
screw head,
4 places
Top of door
Hinge side of door
Clearance for
screw head,
4 places
Figure 19
Right Hand Hinged Door
24" (61 cm) wide appliance
Figure 17
Left Hand Hinged Door
24" (61 cm) wide appliance
Hinge side of door
Top of door
23
3
4"

1
4"

Deep
23
3
4"

1
4"

Deep
Figure 18
Left Hand Hinged Door
24" (61 cm) wide appliance

x
1
4
4 places
1
1
2"

typical
1
11
16"

2"

3
11
16"

Figure 20
Right Hand Hinged Door
24" (61 cm) wide appliance
2"

3
11
16"

1
1
2"

typical
1
11
16"

4
7
8"

14"


x
1
4
4 places
1
4
radius is
permissible
30
11
32"

30
11
32"

1
3
4"

3
1
8"

1
3
16"

1
4
radius is
permissible
4
7
8"

1
3
16"

3
1
8"

1
3
4"

14"

This side
facing
interior
This side
facing
interior

Table of Contents

Related product manuals