EasyManua.ls Logo

Marvel ML24BNS2 - Page 41

Marvel ML24BNS2
68 pages
Print Icon
To Next Page IconTo Next Page
To Next Page IconTo Next Page
To Previous Page IconTo Previous Page
To Previous Page IconTo Previous Page
Loading...
7
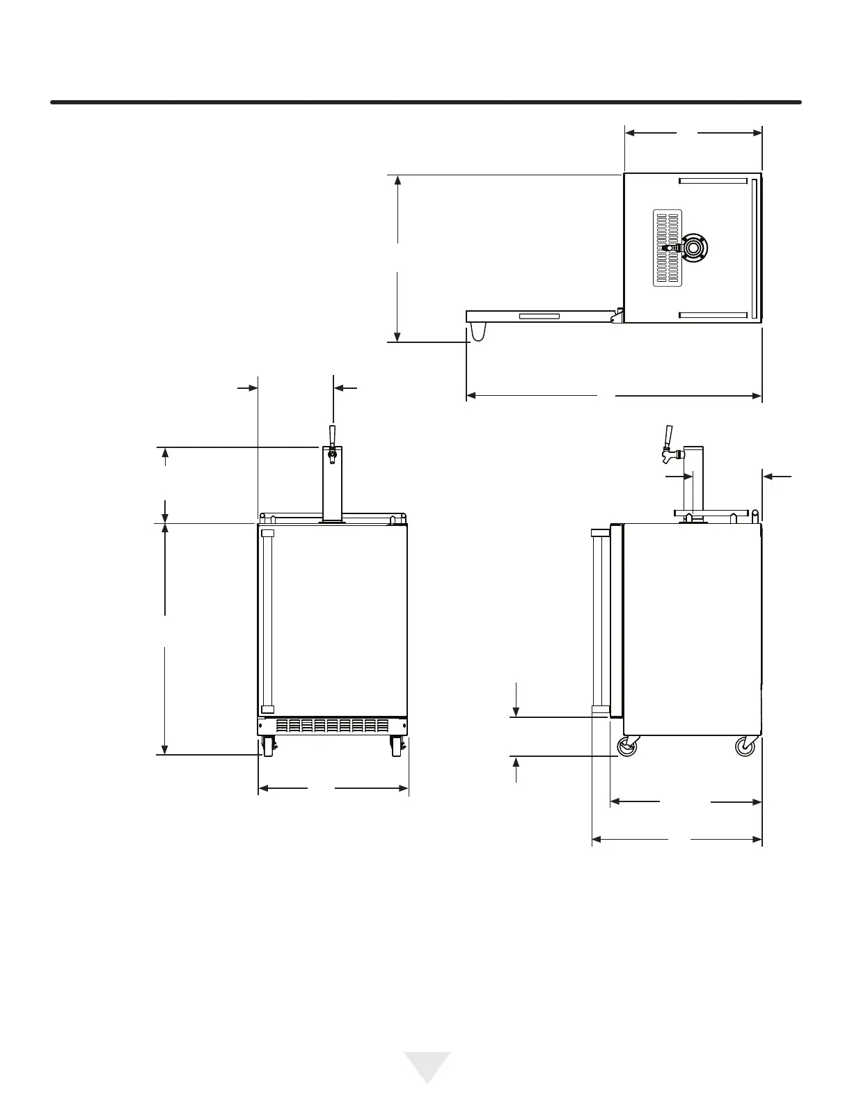
Tour de distribution unique montrée
12
¹
po
(31,1 cm)
36
¹³
 po
(93,5 cm)
23
po
(60,7 cm)
21
1
2 po
(54,6 cm)
26
1
4 po
(66,7 cm)
Figure 10
23
23
32 po
(60,2 cm)
26
1
4 po
(66,7 cm)
11

 po
(30,3 cm)
11 po
(27,9 cm)
46
13
32 po
(117,9 cm)
6
¹
po
(15,9 cm)
DIMENSIONS DU PRODUIT MODÈLES MOBILES
Besoins électriques : Un circuit secteur dédié en 115 V
supportant 15 A est nécessaire.
La prise secteur peut être située sur la cloison murale
derrière l’appareil. Appliquez toutes les normes de
construction locales à l’installation de l’électricité et de
l’appareil. Poids du produit = 150 lb (68,2 kg)

Table of Contents

Related product manuals