EasyManua.ls Logo

Marvel MLWD224-IG01A - Page 8

Marvel MLWD224-IG01A
48 pages
Print Icon
To Next Page IconTo Next Page
To Next Page IconTo Next Page
To Previous Page IconTo Previous Page
To Previous Page IconTo Previous Page
Loading...
CUTOUT AND PRODUCT DIMENSIONS
3
1
2" (8.9 cm)
Minimum
"D"
"E"
"F"
"G"
"J"
Solid Door
Shown
21
1
2"
(54.6 cm)
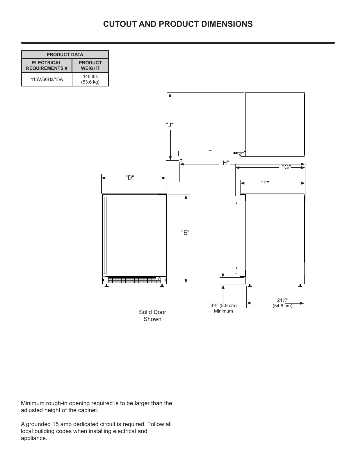
PRODUCT DATA
ELECTRICAL
REQUIREMENTS #
PRODUCT
WEIGHT
115V/60Hz/15A
140 lbs
(63.6 kg)
Minimum rough-in opening required is to be larger than the
adjusted height of the cabinet.
A grounded 15 amp dedicated circuit is required. Follow all
local building codes when installing electrical and
appliance.
"H"
8

Related product manuals