EasyManua.ls Logo

Mastercare MB-80 - Page 13

Mastercare MB-80
26 pages
Print Icon
To Next Page IconTo Next Page
To Next Page IconTo Next Page
To Previous Page IconTo Previous Page
To Previous Page IconTo Previous Page
Loading...
Integrity Bath MB-80 Operating Instructions
______________________________________________________________________________________________
MB-80 Operations 2/18/13 800.798.5867
12
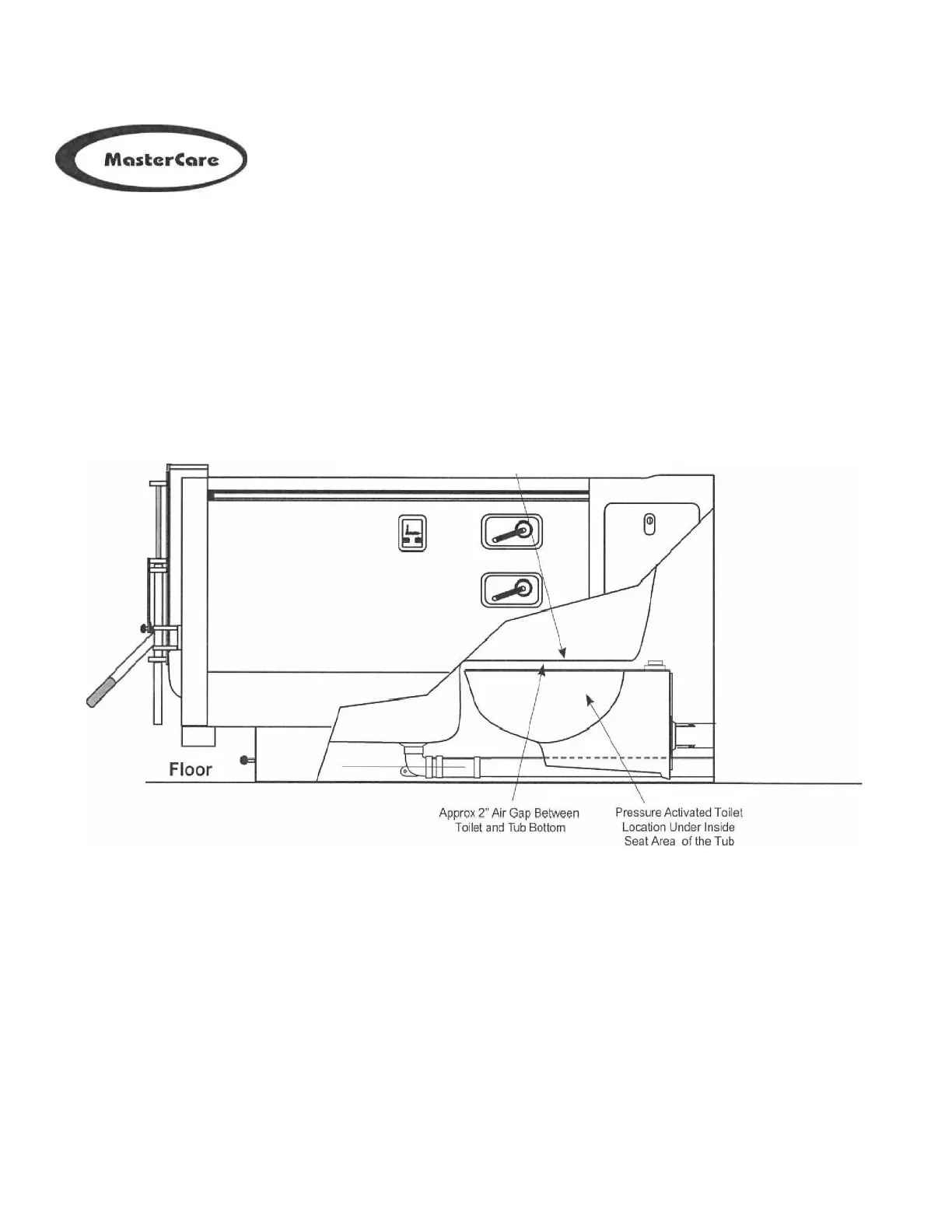
Cut-A-Way View of the Integrity Toileting Option
Showing the Relationship of the Toilet to the Tub
Toileting Cut-A-Way
12/29/11
Patient Equipment, Inc.
Marketing Division
Bottom of
Inside of Tub

Other manuals for Mastercare MB-80