EasyManua.ls Logo

Maxximum MAXBC52SD - Customer Service and Support; Product Information and Part Orders; In-Home Repair Service; Wiring Diagram

Maxximum MAXBC52SD
36 pages
Print Icon
To Next Page IconTo Next Page
To Next Page IconTo Next Page
To Previous Page IconTo Previous Page
To Previous Page IconTo Previous Page
Loading...
12
SERVICE FOR YOUR REFRIGERATOR
We are proud of our customer service organization and the network of professional service technicians
that provide service on your MAXXIMUM Products refrigerators. With the purchase of your MAXXIMUM
Products refrigerator, you can be confident that if you ever need additional information or assistance,
the MAXXIMUM Products Customer Service team will be here for you. Just call us toll-free.
MAXXIMUM Products Customer Service
Product Information
877-756-9337
Whatever your questions are about our products,
help is available.
Part Orders
877-756-9337
You may order parts and accessories that will be
delivered directly to your home by personal
check, money order, Master Card, or Visa.
In-Home Repair Service
877-756-9337
An MAXXIMUM Products authorized service
center will provide expert repair service,
scheduled at a time that is convenient for you.
Our trained servicers know your refrigerator
inside and out.
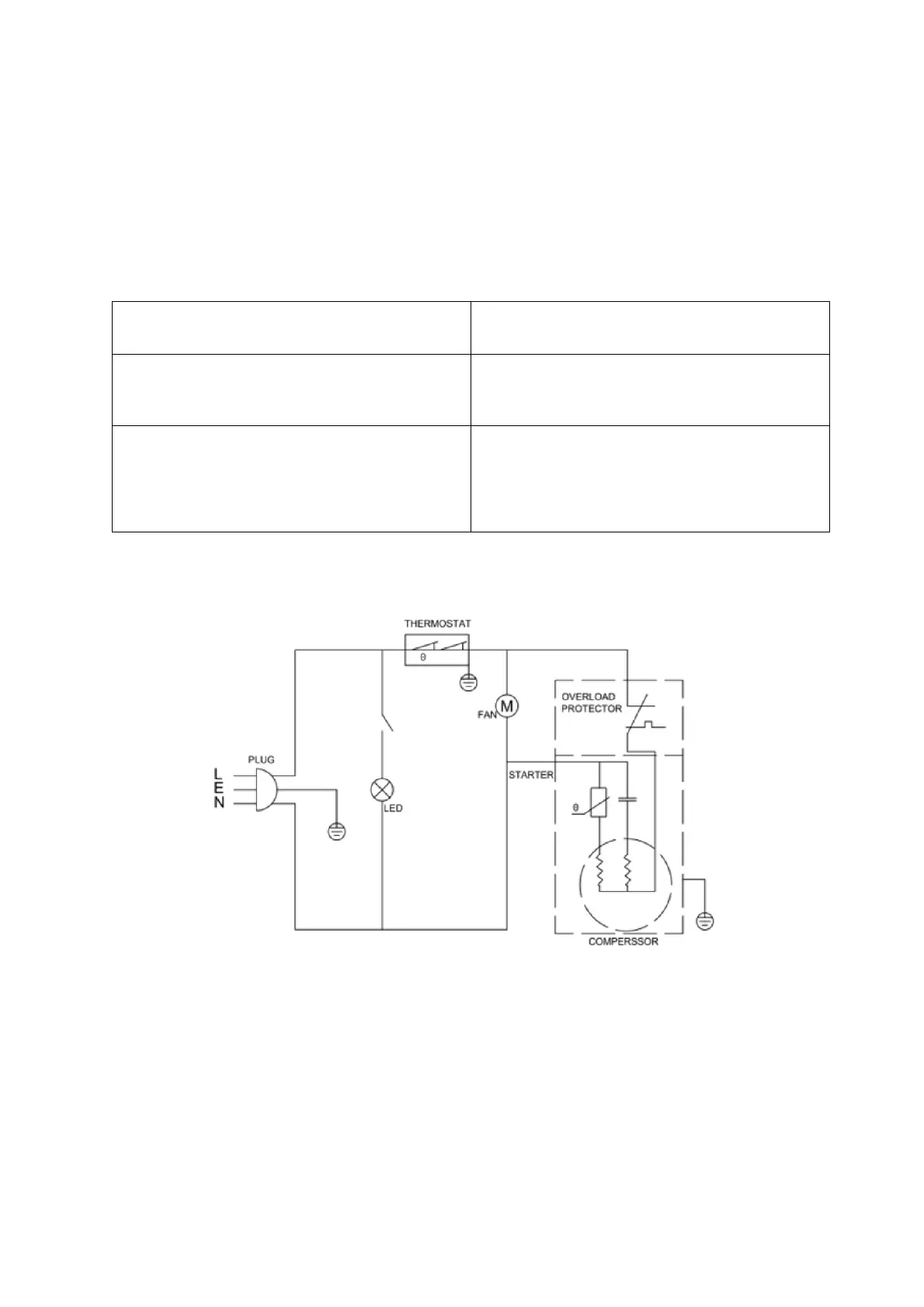
WIRING DIAGRAM