EasyManua.ls Logo

Maytag MLG33 - Page 7

Maytag MLG33
22 pages
Print Icon
To Next Page IconTo Next Page
To Next Page IconTo Next Page
To Previous Page IconTo Previous Page
To Previous Page IconTo Previous Page
Loading...
113413-11 Maytag Co. 7
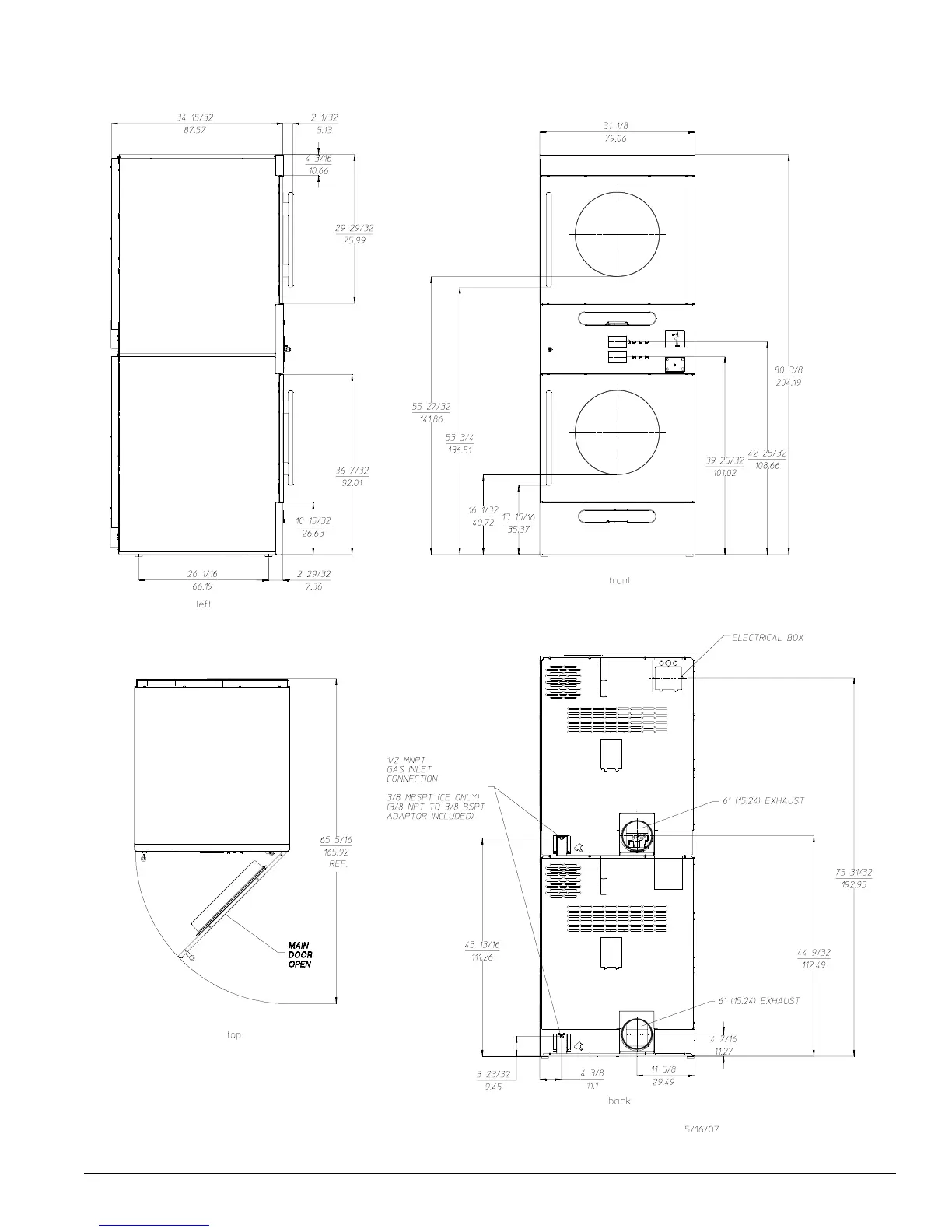
Specifications _______________________________________________________________________

Other manuals for Maytag MLG33

Related product manuals