EasyManua.ls Logo

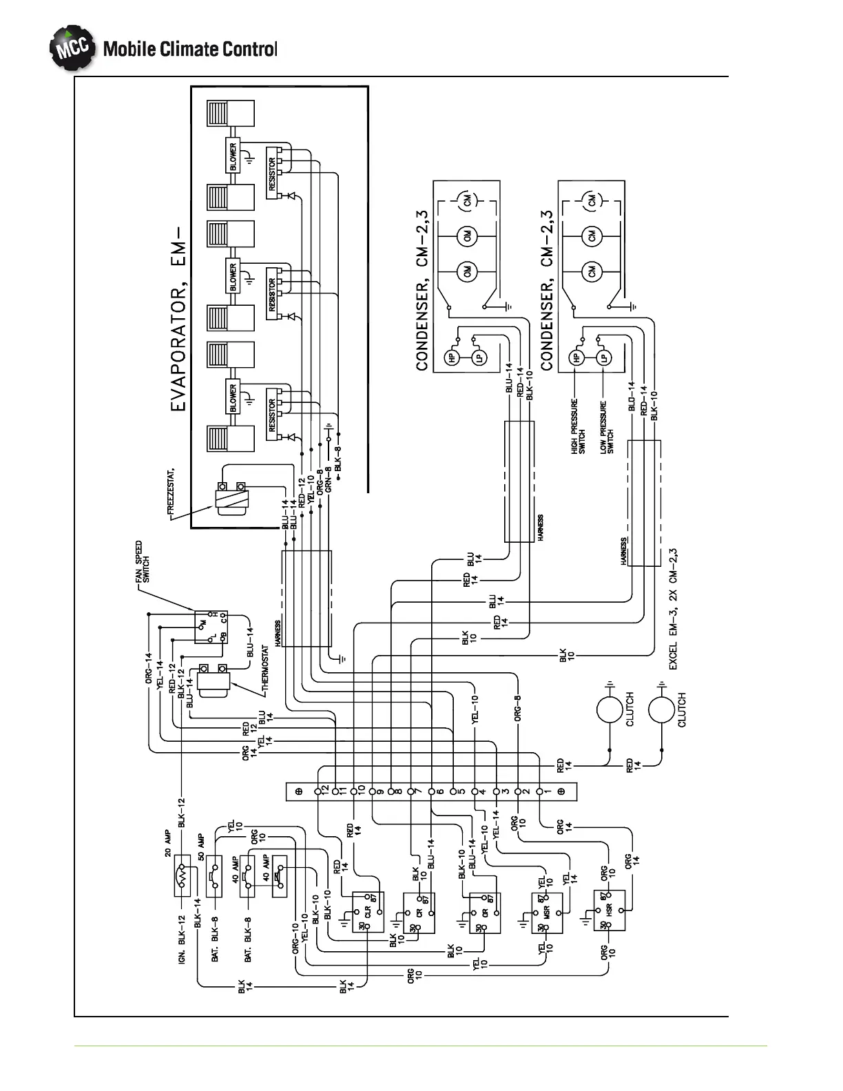
MCC EM-1 - GEN 4 System Schematic - EM-3 With (2) CM-3 Condensers & (2) Compressors

MCC EM-1
74 pages
Print Icon
To Next Page IconTo Next Page
To Next Page IconTo Next Page
To Previous Page IconTo Previous Page
To Previous Page IconTo Previous Page
Loading...
5-- 5
© 2012 Mobile Climate Control
T-299 Rev. 08/2012
3
Figure 5-5 GEN 4 System Schematic - EM-3 With (2) CM-3 Condensers & (2) Compressors

Related product manuals