EasyManua.ls Logo

McQuay Enfinity CCH series - BACnet Controller Wiring Diagram

McQuay Enfinity CCH series
28 pages
Print Icon
To Next Page IconTo Next Page
To Next Page IconTo Next Page
To Previous Page IconTo Previous Page
To Previous Page IconTo Previous Page
Loading...
IM 742 / Page 11
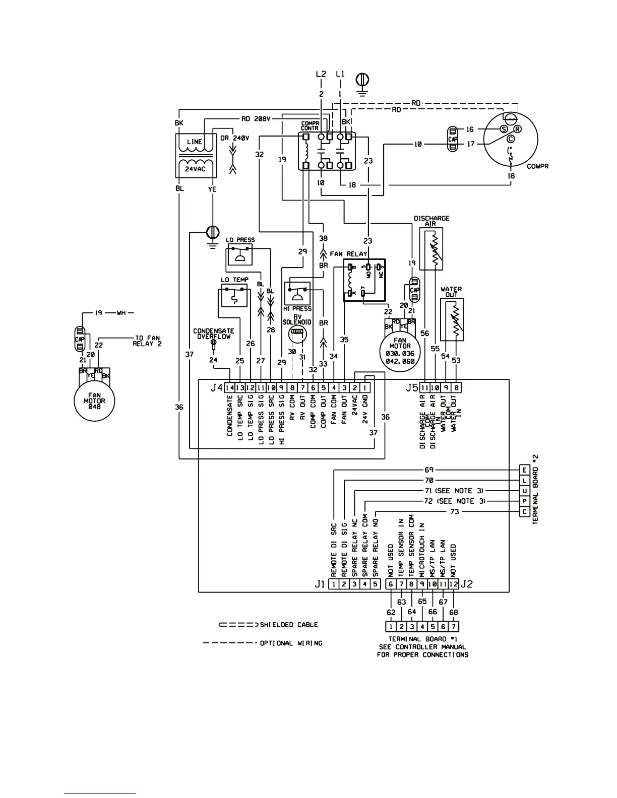
Figure 10. Typical BACnet
®
WSHP unit controller
Notes:
1. Unit is factory wired for 208V operation. If 230V power supply is used,
transformer must be rewired by disconnecting the power lead from the
red transformer primary wire and connecting the power lead to the orange
transformer primary wire. Place an insulation cap on the red transformer
primary wire.
2. All temperature and pressure switches are normally closed.
Notes:
1. A 208/230V unit is factory wired for 208V operation. If 230V power
supply is used, t ran sfo rmer must be rewired by disconnecting
the power lead from the red transformer primary wire and connecting
the power lead to the orange transformer primary wire. Place an isulation cap
on the red transformer primary wire.
2. All temperature and pressure switches are normally c l o s e d .
BACnet
Controller

Related product manuals