EasyManua.ls Logo

McQuay MDB250B2 - Refrigerant Circuit Diagram

McQuay MDB250B2
163 pages
Print Icon
To Next Page IconTo Next Page
To Next Page IconTo Next Page
To Previous Page IconTo Previous Page
To Previous Page IconTo Previous Page
Loading...
82
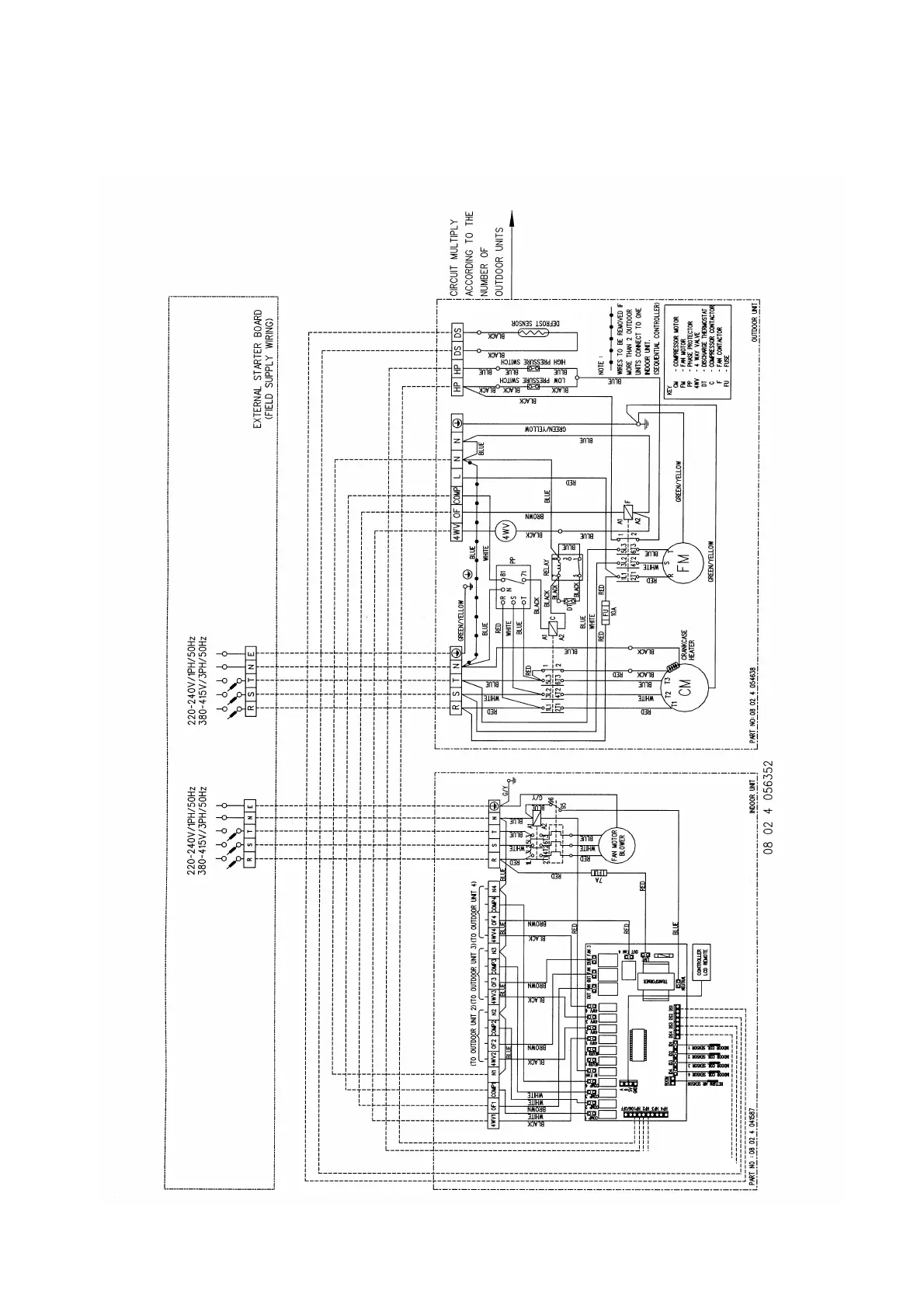
MODEL : INDOOR - MDB 500 BR4 (WITH SEQUENTIAL CONTROLLER)
OUTDOOR – MMC 125BR x 4 (WITH PHASE PROTECTOR/ DISCHARGE
THERMOSTAT/ AUTO RESET HI/LO PRESSURE SWITCH)

Related product manuals