EasyManua.ls Logo

McQuay MWM 007F - Page 65

McQuay MWM 007F
108 pages
Print Icon
To Next Page IconTo Next Page
To Next Page IconTo Next Page
To Previous Page IconTo Previous Page
To Previous Page IconTo Previous Page
Loading...
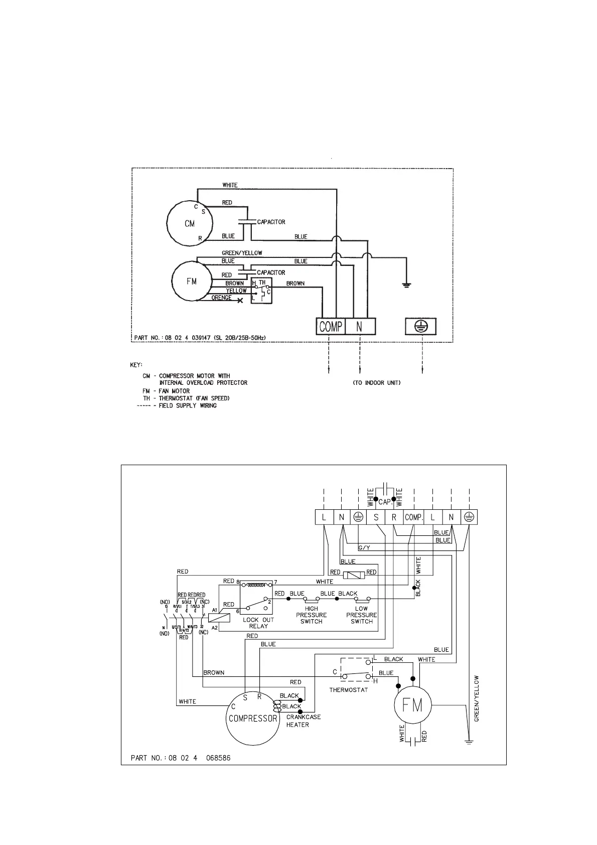
Outdoor Unit
Model : MLC 020B / 025B
50HZ / 1 Phase / 220 – 240V
Outdoor Unit
Model : MLC 030C
50HZ / 1 Phase / 220 – 240V
63
High Ambient Unit (Optional)
Cooling Only Models

Related product manuals