EasyManua.ls Logo

McQuay MWM010FW - Page 29

McQuay MWM010FW
76 pages
Print Icon
To Next Page IconTo Next Page
To Next Page IconTo Next Page
To Previous Page IconTo Previous Page
To Previous Page IconTo Previous Page
Loading...
3-5
Deutsch
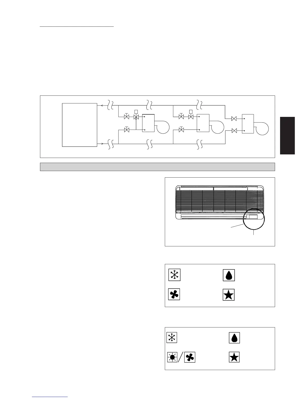
Verbindung der Wasserleitungen
Das Innengerät ist mit einem Wasserauslass und einer Glattrohr-Einlassverbindung ausgestattet. Angebracht am Auslauf des
Durchlauferhitzers gibt es eine Lüftungsöffnung zur Luftspülung.
Zur Umleitung des Kaltwassers ist ein 3-Weg-Magnetventil erforderlich.
Für die Installation vor Ort werden schwarze Stahlrohre, Polyurethanrohre, PVC-Rohre und Kupferrohre empfohlen.
Alle Rohrarten und Verbindungen müssen mit Polyurethan (ARMAFLEX oder äquivalent) abgedichtet werden, um
Kondensation zu vermeiden.
Benutzen Sie keine verunreinigten oder beschädigten Rohre oder Verbindungsstücke zur Installation.
Manche Hauptverbindungskomponenten werden im System benötigt, um das Leistungsvermögen zu erhöhen und einen
einfachen Service zu gewährleisten. Solche Komponenten sind Gatterventile, Entlastungsventile, 2-Weg- oder 3-Weg-
Magnetventile, Filter, Siebe, etc.
Infrarot-Signalempfänger
Wenn von der Infrarot-Fernbedienung ein Signal an das
Gerät gesendet wird, bestätigt das Innen-gerät den Empfang
mit einem Signalton.
Kühleinheit
Die Tabelle erläutert die Bedeutung der Leuchtdioden für
den normalen Betrieb und eventuelle Störungen des
Klimageräts.
Die LED-Anzeigeleuchten befinden sich auf der rechten
unteren Seite des Klimagerätes.
Wärmepumpe
Nachstehende Tabelle enhält die einzelnen LED-
Funktionsanzeigen für Normalbetrieb und die verschiedenen
Störungsmeldungen.
Die LED-Anzeigeleuchten befinden sich auf der rechten
unteren Seite des Klimagerätes.
BETRIEBSLEUCHTANZEIGE
LED -Funktionsanzeige
Infrarot-Empfanger
Leuchtdiode für Kühlbetrieb
Leuchtdiode für Wärmepumpe
Kühler
Dreiwegventil
Gute Steuerung Schlechte Steuerung
Zweiwegventil
FCUFCU
FCU
Schlechteste Steuerung
Gatterventil
Gatterventil
Gatterventil
Gatterventil
Gatterventil
Gatterventil
Kühlmodus
Schlafmodul
Wärme/
Gebläse Modul
(rot/grün)
Entfeuchtungs-
Modus
Gebläsemodus Schlafmodul
Kühlmodus
Entfeuchtungs-
Modus

Related product manuals