EasyManua.ls Logo

McQuay WHR 130 - Page 20

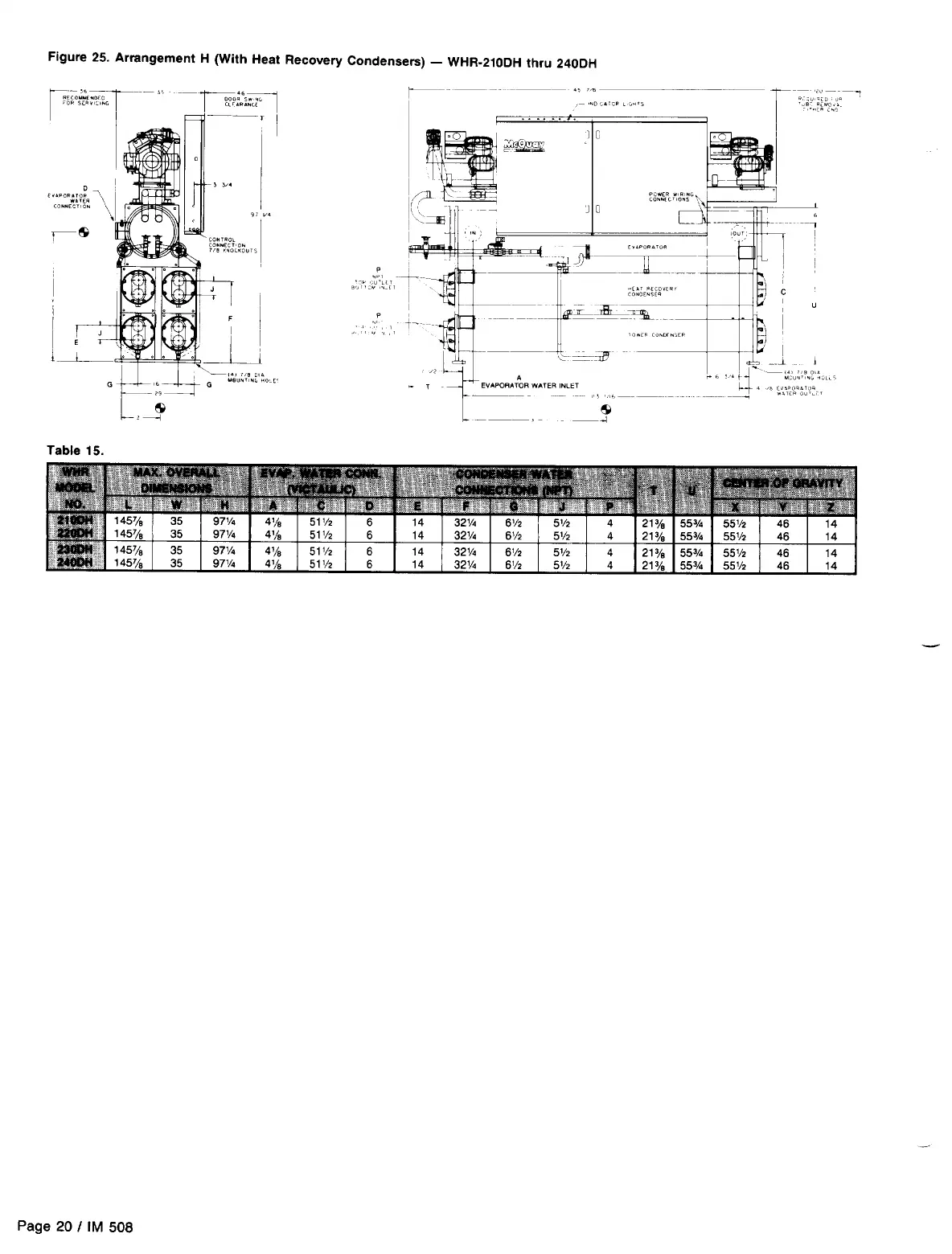
McQuay WHR 130
49 pages
Print Icon
To Next Page IconTo Next Page
To Next Page IconTo Next Page
To Previous Page IconTo Previous Page
To Previous Page IconTo Previous Page
Loading...

Related product manuals