EasyManua.ls Logo

McQuay WSC 063 - Page 48

McQuay WSC 063
53 pages
Print Icon
To Next Page IconTo Next Page
To Next Page IconTo Next Page
To Previous Page IconTo Previous Page
To Previous Page IconTo Previous Page
Loading...
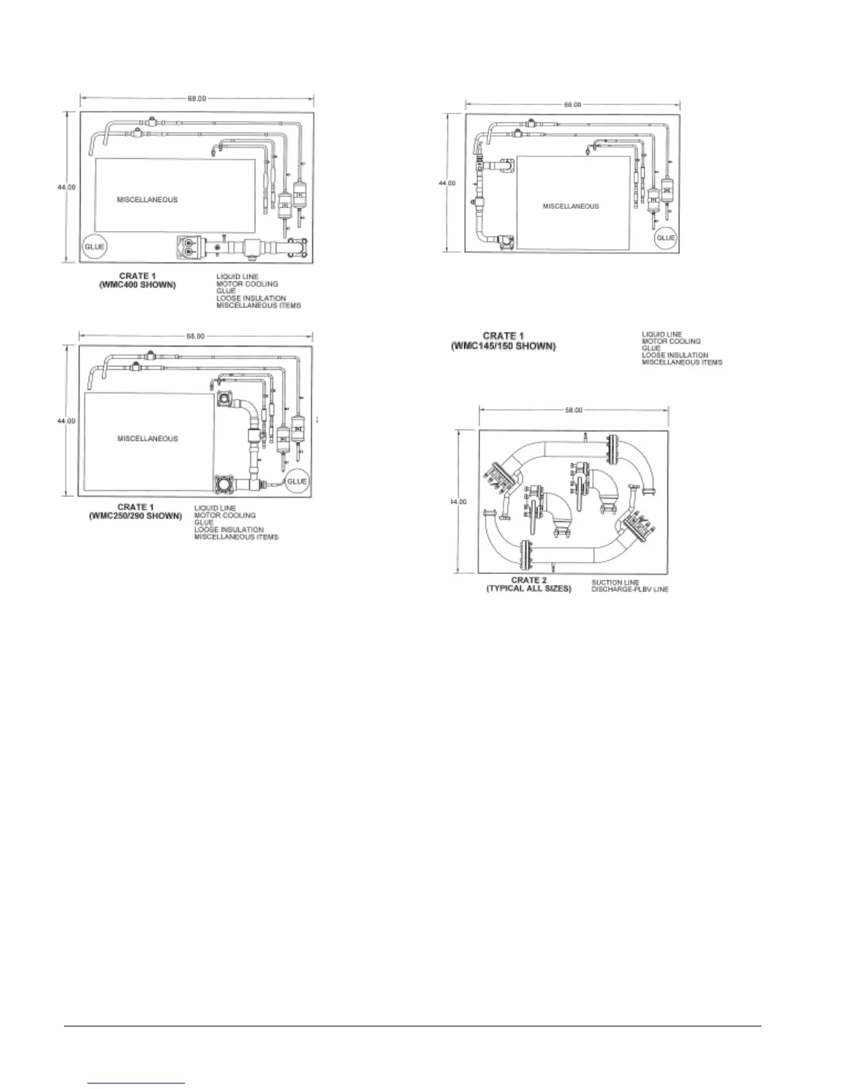
48 IM 1128-2
Figure 27, Type IV, Parts in Crates, (Dual Compressor)
NOTES:
1. See previous page for WMC 145S crate
2. Crate 2 will have two sets of suction and discharge lines.

Related product manuals