EasyManua.ls Logo

MERIH DDC70 - DDC80 Car Door Bypass Assembly

MERIH DDC70
150 pages
Print Icon
To Next Page IconTo Next Page
To Next Page IconTo Next Page
To Previous Page IconTo Previous Page
To Previous Page IconTo Previous Page
Loading...
Her türlü değişiklik hakkı saklıdır.
KLV-09/Yayın Tarihi : 09.03.2023/Revizyon No: 00 /Revizyon Tarihi:
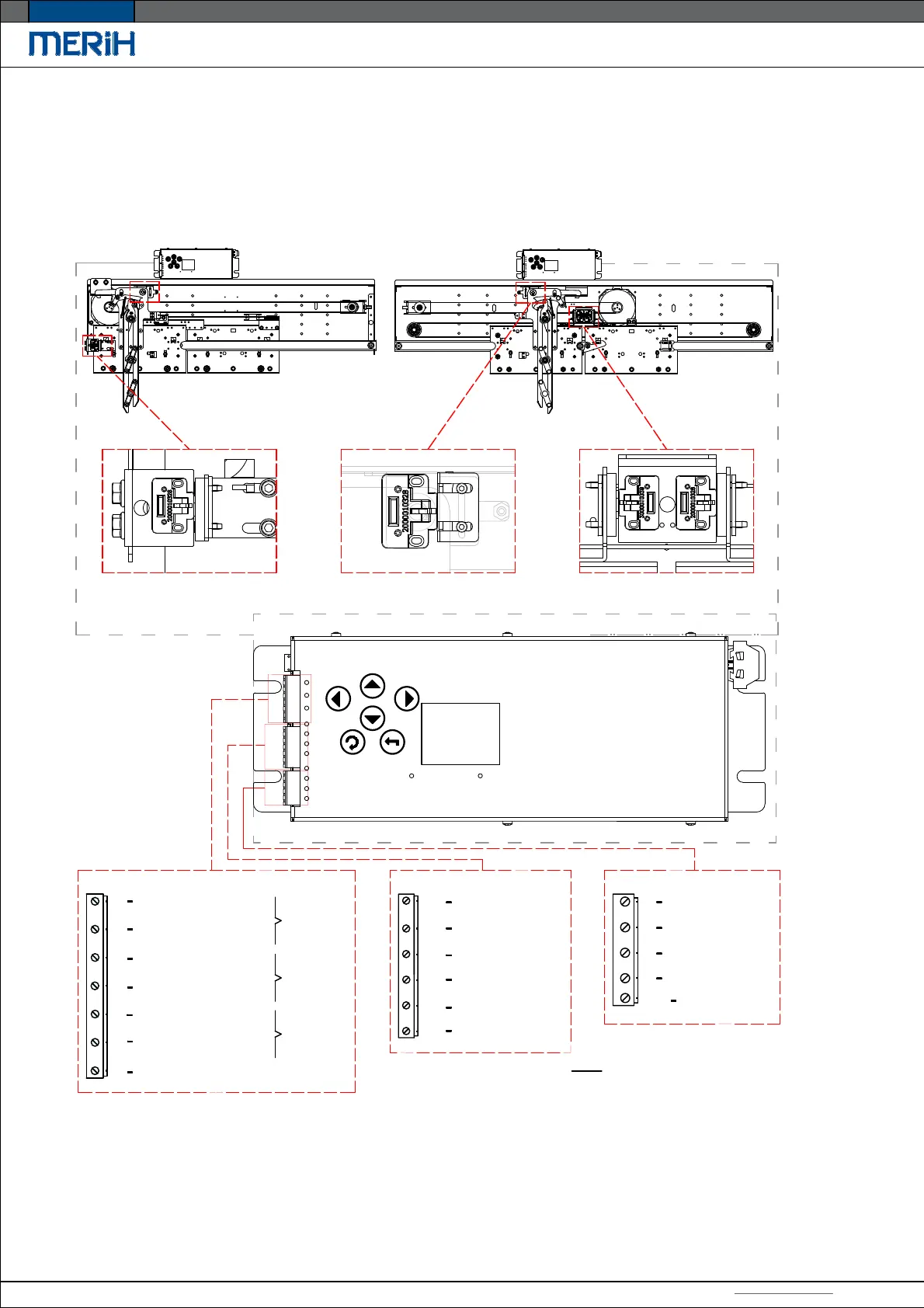
6.Güvenlik Kontakları Bağlantısı
DDC70 Kabin Kapısı Devre Dışı Bırakan (Bypas) Tertibatı
Her türlü değişiklik hakkı saklıdır.
KLV-09/Yayın Tarihi : 09.03.2023/Revizyon No: 00 /Revizyon Tarihi:
Sayfa :
Güncel dokümanlar için www.merihasansor.com adresini ziyaret ediniz!
Belirtilmeyen tüm ölçü birimleri milimetredir.(mm)
KULLANIM KILAVUZU
DDC70/DDC80
Merkezi Kapılar
Teleskopik Kapılar
Kapı elektriksel güvenlik tertibatı Kapı elektriksel güvenlik tertibatı
ÇIKIŞ /
OUTPUT
I
II
III
IV
V
VI
VII
NC - KAPALI LİMİT ANAHTAR
CLOSED LIMIT SWITCH
NO - AÇIK LİMİT ANAHTAR
OPENED LIMIT SWITCH
NC - KAPALI LİMİT ANAHTAR
CLOSED LIMIT SWITCH
NO - AÇIK LİMİT ANAHTAR
OPENED LIMIT SWITCH
NC - KAPALI LİMİT ANAHTAR
CLOSED LIMIT SWITCH
NO - AÇIK LİMİT ANAHTAR
OPENED LIMIT SWITCH
OCom (-) ORTAK KONTAK
COMMON CONTACT
KAPI AÇIK
RÖLESİ
DOOR OPENED
RELAY
KAPI KAPALI
RÖLESİ
DOOR CLOSED
RELAY
KAPI SIKIŞMA
RÖLESİ
BLOCKAGE
RELAY
SENSÖR /
SENSOR
24V
S4
S3
S2
S1
GND
DC
KATTA SİNYAL
ON FLOOR SIGNAL
FOTOSEL
PHOTOCELL
(-) TERMİNAL
(-) TERMINAL
AÇIK LİMİT ANAHTAR
OPENED LIMIT SWITCH
KAPALI LİMİT ANAHTAR
CLOSED LIMIT SWITCH
I4
I3
I2
I1
ICOM
ACİL DURUM KAPAMA
EMERGENCY CLOSED
ACİL DURUM AÇMA
EMERGENCY OPENED
AÇMA
OPENED
KAPAMA
CLOSED
(-) TERMİNAL
(-) TERMINAL
GİRİŞ /
INPUT
Not-1: Sensör bağlantısı için,
Ayarlar - Soket - Sensör Soketi menüsünden
NO ve NC çıkış ucuna göre bağlantı yapılır.
WI-FI POWER
WI-FI POWER
WI-FI POWER
Kapı izleme tertibat
31