EasyManua.ls Logo

Meyer PV Series - Page 57

Meyer PV Series
92 pages
Print Icon
To Next Page IconTo Next Page
To Next Page IconTo Next Page
To Previous Page IconTo Previous Page
To Previous Page IconTo Previous Page
Loading...
PV SERIES
INSTALLATION AND INSTRUCTIONAL MANUAL
xxxxx-xxx-xx month/day/year
PV SERIES
TM
MATERIAL:
SCALE
TITLE
DRAWING SIZE
D
DRAWING No:
LINDENWOOD ILLINOIS
WHERE USED
CADD FILENAME:
REF. DRAWING
DR BY
APPV BY
DATE
APPVBYDATEPIF#
REV
REVISION
NOTED)
(EXCEPT AS
DO NOT SCALE DRAWING
DATE
*********************
ProE Drawing
This drawing was
created in ProE.
The orginial drawing
should only be
edited in ProE.
*********************
1.000
1.000
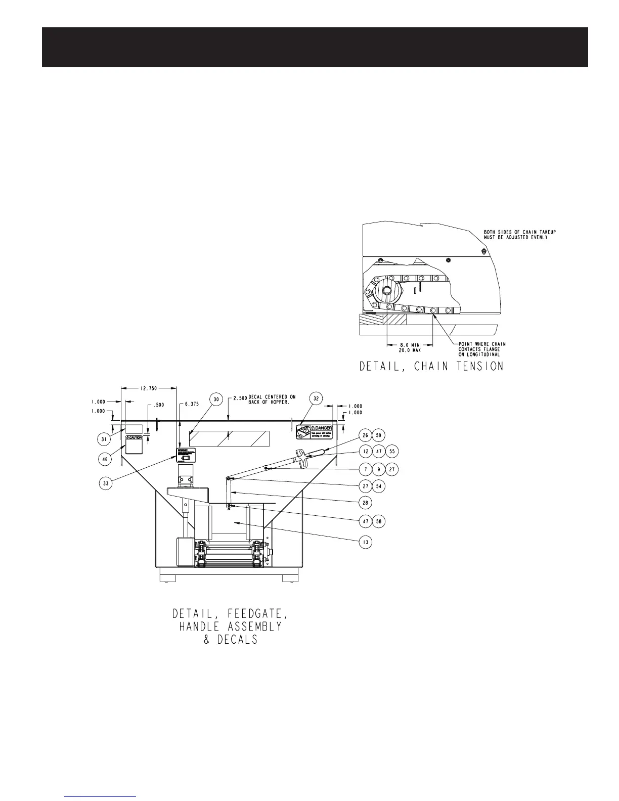
8.0 MIN
20.0 MAX
2.500
1.000
1.000
.500
1.000
1.000
12.750
6.375
00002-533-04
DETAIL, ASSEMBLY
PV 50" HYD
SEE DETAILS
50" PV
S:\00002\
00002-533-04
D0011833305
0.125
JKG 5/4/2010
JKG 5/4/2010
TABD
A1
10-0084
REVISED & REDRAWN, SEE OBS
DWG FOR PREVIOUS VERSIONS
5/10
JG JG
A2
10-0084
REPLACED IDLER SUB-ASSY WITH
POLY ROLLER DESIGN
5/10
JG JG
PART WEIGHT
ITEM PART NUMBER DESCRIPTION QTY
1 00115-156-XX WELD, HOPPER 1
2 00118-337-01 SUB ASSEMBLY, GEARBOX 1
3 00119-590-01 FORM, GUARD, CONVEYOR, PV 1
4 04043-0XX-00 WELD, DRAG CHAIN 1
5 04003-005-XX BOLT, 1/2" X 3/4" 4
6 04004-001-XX LOCKWASHER, 1/2" 4
7 04003-003-XX BOLT, 3/8" X 1 1/4" 5
8 04004-001-XX LOCKWASHER, 3/8" 4
9 04003-806-XX NUT, 3/8" FLANGE 16
10 00122-366-00 SHAFT, IDLER 1
11 00122-369-00 ROLLER, POLY 2
12 04624-001-01 KNOB, HAND 1
13 00110-819-XX WELD, FEEDGATE 1
14 04101-035-00 MOTOR, HYDRAULIC 1
15 06011-000-XX PLATE, MOTOR MTG. 1
16 04008-XXX-00 BUSHING 4
17 04003-003-XX BOLT, 3/8" X 1" 7
18 04004-002-XX FLATWASHER, 3/8" 10
19 00105-302-00 COUPLING, SHAFT 1
20 00115-124-00 WELD, TAKEUP BOLT 2
21 04003-802-XX NUT, 1/2" HEX JAM 4
22 00119-XXX-XX CHAINSHIELD, PV 2
23 04553-008-XX SKID, PV 1
24 04003-033-14 BOLT, 3/8" X 4" CA 4
25 SEE BM P, INSTR. MANUAL PV 1
26 00118-312-XX FORM, FEEDGATE HANDLE 1
27 04003-804-02 LOCKNUT, 3/8" NYLON 2
28 00101-636-XX BAR, PIVOT 1
29 04045-022-00 PIN, CONNECTOR W/ COTTER PIN 2
30 04049-XXX-00 DECAL 3
31 04049-XXX-00 DECAL, SERIAL NUMBER 1
32 04049-182-00 DECAL, DANGER 3
33 04049-195-00 DECAL, MOTOR 1
34 00122-05X-XX FORM, FLOOR PV 1
35 04003-032-06 BOLT, 5/16" X 3/4" CA SS
SEE/
BM
36 00115-154-XX GUARD, SHAFT 1
37 04605-155-00 CABLE, LIGHT POWER 1
38 00111-339-XX WELD, STOP LAMP BRACKET 1
39 04605-153-00 LAMP, STOP 1
40 04605-154-00 GROMMET, MTG. 1
41 04076-100-00 WIPER, CHAIN 1
42 SEE B/M WELD, SCREEN
SEE/
BM
43 SEE B/M WELD, INV VEE 1
44 00118-338-00 ASSY, IDLER 1
45 04003-033-XX BOLT, 3/8" X 1" CA 4
46 04049-045-00 DECAL, CAUTION 1
47 04004-002-20 FLATWASHER, 3/8" SS 2
48 00002-296-XX P, ASSY, SPINNER HYD. 1
49 04003-002-09 BOLT, 5/16" X 2" 1
50 04003-804-01 LOCKNUT, 5/16" VINYL 1
51 04009-001-01 KEY, WOODRUFF 1
52 04525-012-XX POWDER PAINT
SEE/
BM
53 00122-181-01 A, LIFT REAR FORKLIFT 1
54 04003-033-XX BOLT, 3/8" X 1 1/4" CA 1
55 04003-033-12 BOLT, 3/8" X 3/4" CA SS 1
56 04003-806-13 NUT, 5/16" FLANGE SS 18
57 04003-032-04 BOLT, 5/16" X 1" CA SS
SEE/
BM
58 04010-016-01 PIN, COTTER SS 1
59 04111-052-00 COVER, FEEDGATE HANDLE 1
60
04111-053-00 IDLER COVER 2
SPINNER MUST BE PACKED
INSIDE UNIT FOR SHIPPING.
DETAIL, FEEDGATE,
HANDLE ASSEMBLY
& DECALS
ITEMS NOT SHOWN:
00002-296-XX
04525-012-XX
00122-181-XX
INSTR. MANUAL
SEE B/M
SEE DETAIL, CHAIN TENSION
DETAIL, CHAIN TENSION
BOTH SIDES OF CHAIN TAKEUP
MUST BE ADJUSTED EVENLY
SEE DETAIL, MOTOR
ASSEMBLY
DETAIL, MOTOR ASSEMBLY
EACH SIDE
48
52
53
25
WIPER MUST BE ADJUSTED TO
ADEQUATELY CLEAN CHAIN BARS
DETAIL, IDLER ASSEMBLY
SCALE 0.250
20 21
34 35 56
35 56
11
10
60
3
DECAL CENTERED ON
BACK OF HOPPER.
ZERK IN BEARING
TO AIM FORWARD
& UPWARD
2
5 6
7 9
1
9 38 45
37 39 40
DECAL TO BE CENTERED ON
BOTH SIDES OF ITEM #1
9 17 18 36
7 9 18 41
4
29
43 56 57
35 56
32
22
ISO VIEW
SCALE 0.100
9 23 24
42
POINT WHERE CHAIN
CONTACTS FLANGE
ON LONGITUDINAL
15
8 16 17 18
19 51
14
49 50
9 45
13
27 54
7 9 27
28
12 47 55
32
31
46
47 58
30
33
26 59
A2
HYDRAULIC PV MODEL
00108-760-01-REV-B
Page 57
OCTOBER, 2013

Related product manuals