EasyManua.ls Logo

Midea HRV-300

Midea HRV-300
32 pages
To Next Page IconTo Next Page
To Next Page IconTo Next Page
To Previous Page IconTo Previous Page
To Previous Page IconTo Previous Page
Loading...
MCAC-KTSM-2009-03 Dimension
Heat Recovery Ventilation 7
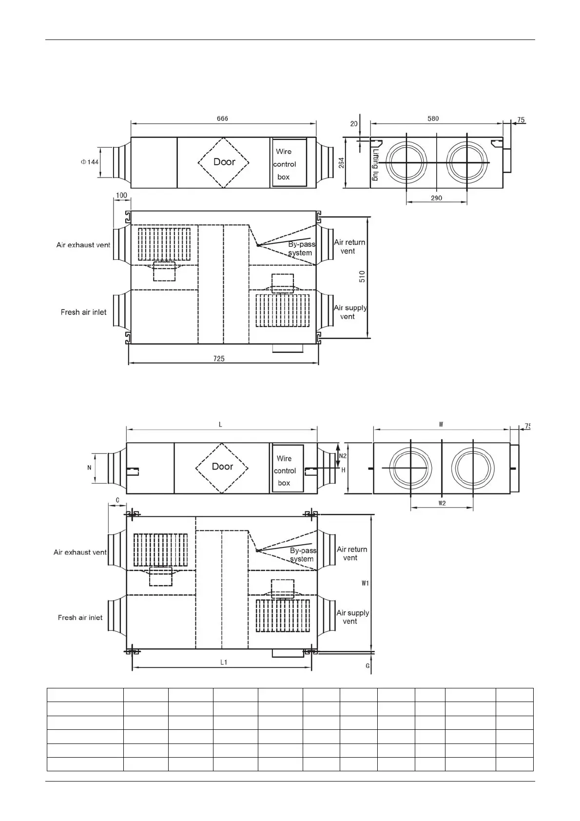
5. Dimension
5.1 HRV-200
5.2 HRV-300 HRV-400 HRV-500 HRV-800 HRV-1000
Model L L1 W W1 W2 H C G N N2
HRV-300 744 675 599 657 315 270 100 19 Φ144 111
HRV-400 744 675 804 862 480 270 100 19 Φ144 111
HRV-500 824 754 904 960 500 270 107 19 Φ194 111
HRV-800 1116 1045 884 940 428 388 85 19 Φ242 170
HRV-1000 1116 1045 1134 1190 678 388 85 19 Φ242 170

Other manuals for Midea HRV-300

Related product manuals