EasyManua.ls Logo

Midea HRV-300 - Dimension

Midea HRV-300
33 pages
Print Icon
To Next Page IconTo Next Page
To Next Page IconTo Next Page
To Previous Page IconTo Previous Page
To Previous Page IconTo Previous Page
Loading...
MCAC-KTSM-2009-03 Dimension
Heat Recovery Ventilation 7
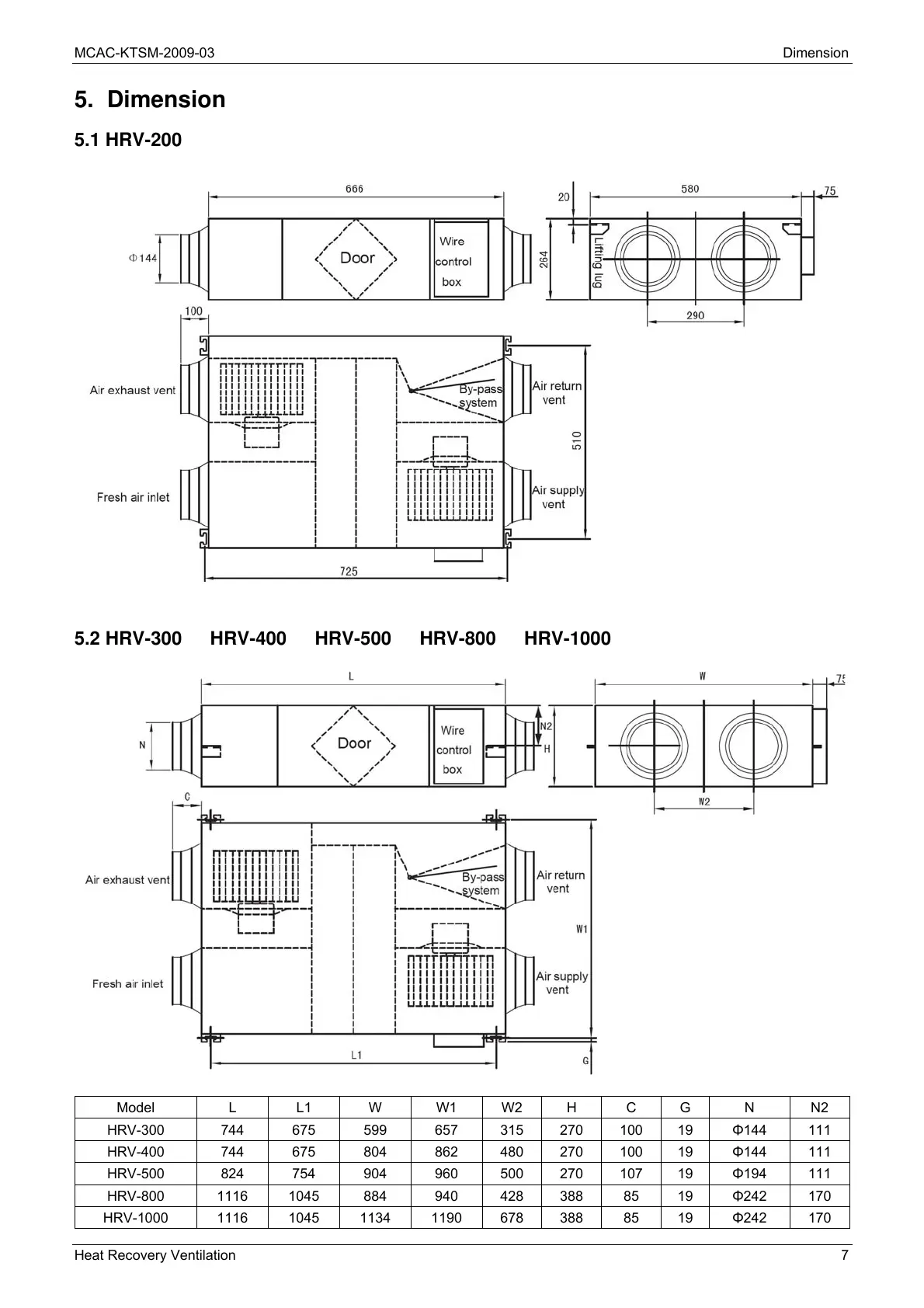
5. Dimension
5.1 HRV-200
5.2 HRV-300 HRV-400 HRV-500 HRV-800 HRV-1000
Model L L1 W W1 W2 H C G N N2
HRV-300 744 675 599 657 315 270 100 19 Φ144 111
HRV-400 744 675 804 862 480 270 100 19 Φ144 111
HRV-500 824 754 904 960 500 270 107 19 Φ194 111
HRV-800 1116 1045 884 940 428 388 85 19 Φ242 170
HRV-1000 1116 1045 1134 1190 678 388 85 19 Φ242 170

Other manuals for Midea HRV-300

Related product manuals