EasyManua.ls Logo

Midea MCD-18CRN1-QC0 - Part 4 Installation; Location Selection; Indoor Unit Installation; Outdoor Unit Installation (Side Discharge Unit)

Midea MCD-18CRN1-QC0
264 pages
To Next Page IconTo Next Page
To Next Page IconTo Next Page
To Previous Page IconTo Previous Page
To Previous Page IconTo Previous Page
Loading...
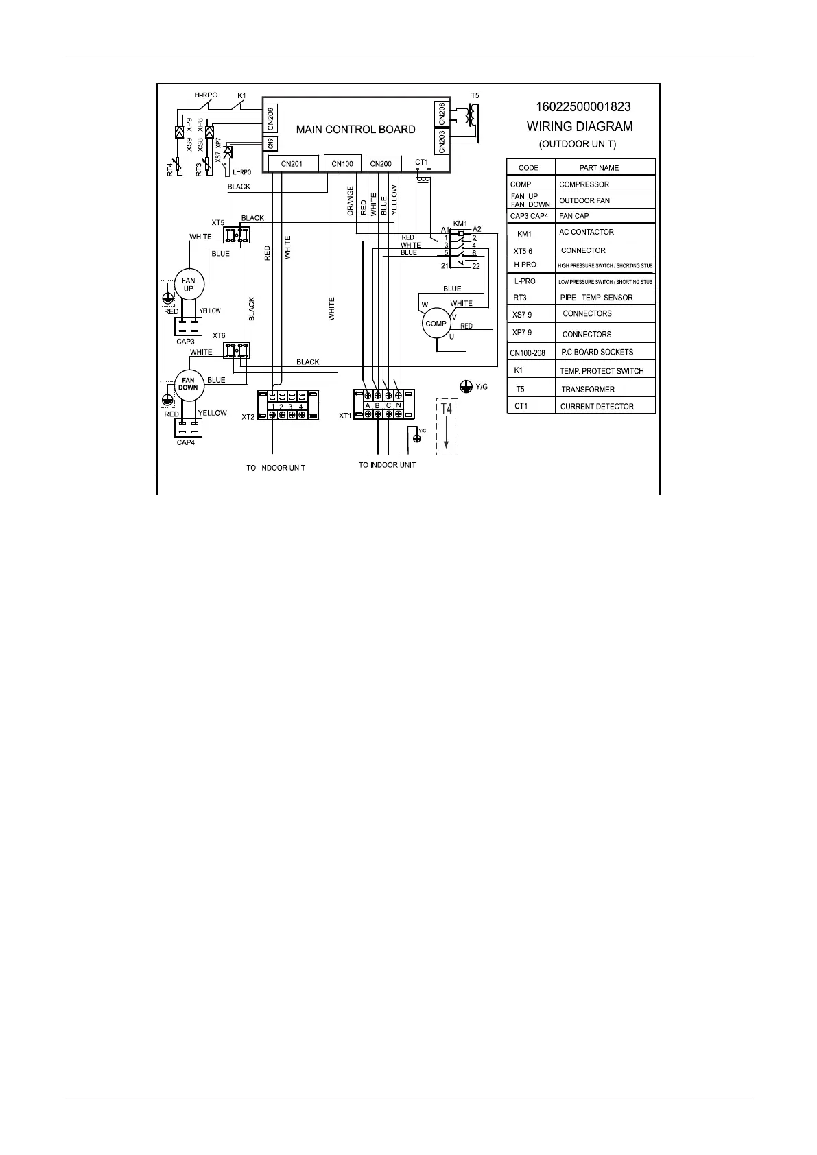
Wiring Diagrams
Outdoor Units 185
MODU-48CN1-R, MODU-60CN1-R

Table of Contents

Related product manuals