EasyManua.ls Logo

Midea MGB-F65W/RN1 - Page 44

Midea MGB-F65W/RN1
174 pages
Print Icon
To Next Page IconTo Next Page
To Next Page IconTo Next Page
To Previous Page IconTo Previous Page
To Previous Page IconTo Previous Page
Loading...
MCAC-ATSM-2011-12 Air-cooled modular chiller unit 50Hz
45
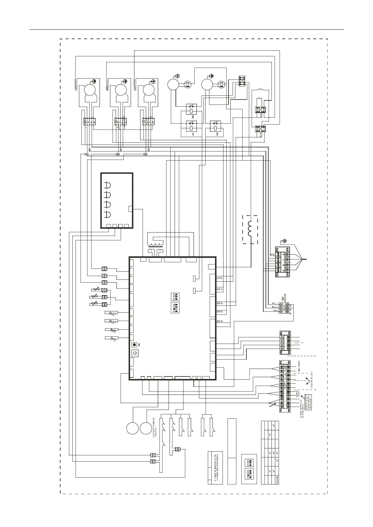
65KW digital module(Only for MGB-D65W/RN1)
Attached picture (I) Electric Drawing of Main Unit and Auxiliary Unit
XP8
XP7
XS8
XS7
T
3
B
T
3
A
HEAT_A1
PMV(B)
QUERY
CN18(WHITE
POWER
CN20RED
TRANS IN
PWM
CN17
CN15WHITE)
CN9WH ITE
COMP.B2 COMP.A2
COMP.A1 S.V(A)
CN24
PUMP
CN16
ALARM
CN8(WHITE)
ANTI-FREEZING
CN3(YELLOW)
PH_PRO
CN2(RED)
PMV(B)
COM(I)
COM(O)
CN6
CN27 CN10 CN22 CN32
CN14
PMV(A)
CN11RED
POWER OUT
FANA
CN30
FANB
CN31
(YELLOW)
(RED)
COMP B
2
1
5
21
3
6
22
4
T3
A1
A2
T2
T1
HEAT_B
ORANGE
H2 P1 P2H1
XT4
S1
SW3
ICOMP-B2
XT5
XT6
R
T
6
R
T
7
CN23(WHITE)
ON/OFF
RT4
RT5
COMP A1
2
5
21
3
6
22
4
T3
A1
A2
T2
T1
FAN B
(U)
(V)
(W)
(U)
(V)
(W)
Y&G
4-WAY TERMINAL
XT1
POWER IN
Y&G
S1
16-WAY DAIL SWITCH FUNCTION
DAIL SWITCH
ADDRESS
BLUE
WHITE
RED
RED
WHITE
BLUE
BLACK
4-WAY
TERMINAL
HEAT
PUMP
BLUEBLUEBLUE
BLUE
YELLOW
YELLOW
EFFECT ON NO.0 MODULE)
(ON/OFF SIGNAL!)
ELECTRIC EXPANSIVE
VALVE(B)
IN-LET WATER TEMP. SENSOR
ANTI-FREEZING TEMP. SENSOR
RED BLACK
CONDENSER
TEMP B
CONDENSER
TEMP A
TOTAL OUT-LET WATER TEMP.
UNIT OUT-LET WATER TEMP.
CRANK
COMPRESSOR A1
Y&G
ORANGE
BLACK
WHITE
BLUE
RED
RED
BLUE
RED
WHITE
CRANK
COMPRESSOR B
RED
AC CONTACTOR
BLACK
WHITE
BLUE
RED
BLUE
RED
WHITE
Y&G
Y&G
S.V(A)
4-VALVE A
S.V(B)
4-VALVE B
MIDDLE
WIRE JOINT
MIDDLE
WIRE JOINT
ORANGE
PURPLE
BLUE
MIDDLE
WIRE JOINT
XT7
RED
WHITE
BLUE
RED
BLACK
BLUEBLUEBLUE
BLUE
YELLOW
YELLOW
BLUE
PURPLE
RED
XP9XP9
T
4
WHITE
Q
P
(E)
GRAY
7-WAY
TERMINAL
XT2
Y
E
L
L
O
W
B
L
A
C
K
LOW VOLTAGE SIGNAL
DON'T CONNECT HIGH VOLTAGE!
G
R
A
Y
GRAY
W1 W2
Q
P
(E)
B
L
A
C
K
R
E
D
PROVIDE
BY U SER
AC CONTACTOR
CN5
H&L_PRO
CN1(WHIITE)
PMV(A)
CN28(RED)
HEAT/COOL
CN4(RE D
WATER_PRO
CN21 CN26 CN33 CN35CN34
123
ON
34
SW2
12
OFF
T3A T3B T4
ICOMP-A2ICOMP-A1 ICOMP-B1
CN7
(BLUE)
HEAT
CN12BLACK)
COMP.B1 S.V(B)
RED
CN19WHITE)
TRANS OUT
L_PRO(2B)
H_PRO(B)
K1(B)
L_PRO(2A)
H_PRO(A)
CURRENT(A2)
ORANGE
RED
HIGH PRESSURE
PROTECTOR B
LOW PRESSURE
PROTECTOR 2B
PURPLE
LOW PRESSURE
PROTECTOR 2A
YELLOW
HIGH PRESSURE
PROTECTOR A
TEMP PROTECTOR
SWITCH A2
TEMP PROTECTOR
SWITCH B1
K1(A1)
TEMP PROTECTOR
SWITCH A1
K1(A2)
CURRENT(B1 )
CURRENT(A1)
XS9
L_PRO(1B)
L_PRO(1A)
RED
LOW PRESSURE
PROTECTOR 1B
PURPLE
LOW PRESSURE
PROTECTOR 1A
MAIN BOARD
CURRENT BOARD
L2L3L4 L1
CN6
CN7
CN8
CN5
CN4
HEAT_A2
COMP A2
2
5
21
3
6
22
4
T3
A1
A2
T2
T1
(U)
(V)
(W)
CRANK
COMPRESSOR A2
RED
BLACK
WHITE
BLUE
RED
BROWN
BLUE
RED
WHITE
Y&G
AC CONTACTOR
HIGH
BLUE
HIGH
FAN A
Y&G
L3
L1
L2
PWM PRESSURE
RELIF VALVE
BROWN
LOW
BROWN
BLACKBLACK
BLUE
RED
RED
BLACK
RED
BROWN BLUE
BROWN
BROWN
BLUE
WHITE
BLACK
WHITE RED
BLACK
BLUE
S2 ON:COOL ONLY OFF:R&C
S3 ON:DIGITAL OFF:FIXED
S4 ON:H-EEPROM OFF:NORMAL
S5 ON:C-EEPROM OFF:NORMAL
S7 ON:REMOTE CONTROL OFF:WIRE CONTROL
S8 ON:LOW TEMP.MODE OFF:NORMAL
S9 ON:30KW OFF:65/130/200/260KW
S2 S3 S4 S5 S7 S8 S9
B
R
O
W
N
R
E
D
RED
ORANGE
ORANGE
OUTDOOR WIRING DIAGRAM
R
E
D
B
L
U
E
SW3
123
ON
34
SW2
12
ON
S2 S3 S4 S5 S7 S8 S9
SW2/SW3 FUCTION DEFINATION
ON
OFF
PROVIDE
BY U SER
DEFAULT SETTING
REMOTE TURN OFF
OFF
ON/OFF
S7
ON
REMOTE FUCTION SETTING
REMOTE COOL
ON OFF
REMOTE HEAT
ON OFF
(ON/OFF SIGNAL!)

Related product manuals