EasyManua.ls Logo

Midea MGB-F65W/RN1

Midea MGB-F65W/RN1
174 pages
To Next Page IconTo Next Page
To Next Page IconTo Next Page
To Previous Page IconTo Previous Page
To Previous Page IconTo Previous Page
Loading...
MCAC-ATSM-2011-12 Air-cooled modular chiller unit 50Hz
85
No. Part Name Qty BOM code No. Part Name Qty BOM code
1
A combination of pieces of
fixed plate condenser
1 201290108627 21.9 Wire joint
1 202301450130
2
Condenser side board
2 201290108624 21.10
Wire joint, 3p
2 202301450044
3
Condenser ass'y A
1 201590100023 21.11
E-part box
1 201290100212
4
Condenser ass'y B
1 201590100024 22
Wiring slot
0.5 201119900945
5
Mid horizontal support
2 201290100219 23
separator
2 201601100072
6
Fixed board
2 201290100233 24
Shell and tube evaporator
1 201790190017
7
Mid upright support
2 201290100211 25
Cover
1 201290100242
8
Pipe fixing clamp
2 201252600035 26
Pole
4 201290108623
9
Evaporator input pipe ass'y
1 201690191273 27
E-part box door
1 201290100194
10
Evaporator input pipe ass'y
1 201690191272 28
Suction pipe ass'y A
1 201690191276
11
Cover
1 201290100241 29
Suction pipe ass'y B
1 201690191274
12
Cover
1 201290100246 30
4-way valve ass'y A
1 201690191279
13
Triangle reinforcement ass'y
8 201290100218 31
4-way valve ass'y B
1 201690191278
14
Reinforcement board
4 201290100247 32
Drainage pan ass'y
1 201290100195
15
Base
1 201290100042 33
Middle partition plate
2 201290100248
16
Compressor
2 201402300130 34
Net
2 201290100240
17
Cover
1 201290100243 35
Net
4 201290100237
18
Wiring terminal fixing board
1 201290100193 36
Top upright support
2 201290100191
19
Cover
1 201290100244 37
Condenser seal connector
1 201290108626
20
Cover
1 201290100245 38
Top cover
2 201195300051
21
E-part box ass'y
1 203390190018 39
Axial flow fan
2 201200300013
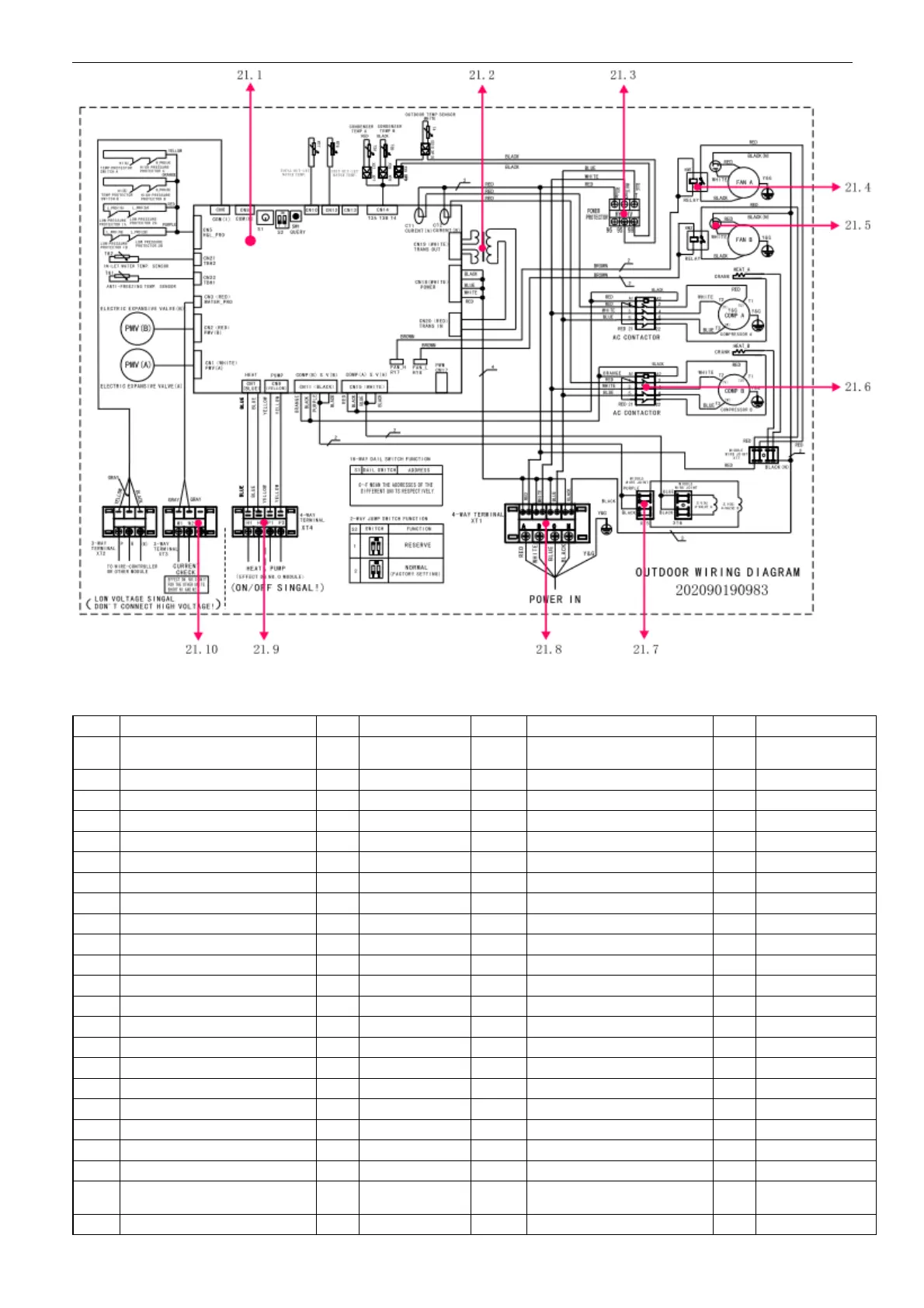
21.1
Air-cooled module control
board components
1 201390190006 40 Motor 2 202400400399
21.2
Transformer
1 202300900109 41
Mid horizontal support
2 201290100223

Related product manuals