EasyManua.ls Logo

Midea MKA-600RA - Service Spaces

Midea MKA-600RA
34 pages
To Next Page IconTo Next Page
To Next Page IconTo Next Page
To Previous Page IconTo Previous Page
To Previous Page IconTo Previous Page
Loading...
4
-
1
0
8
-
way cassette
0
8
. Service
850CF
M
e
FCU
Spaces
Mo
600CFM,
M
, 950CFM,
1
del
750CFM
1
200CFM, 15
0
0
0CFM
2
3
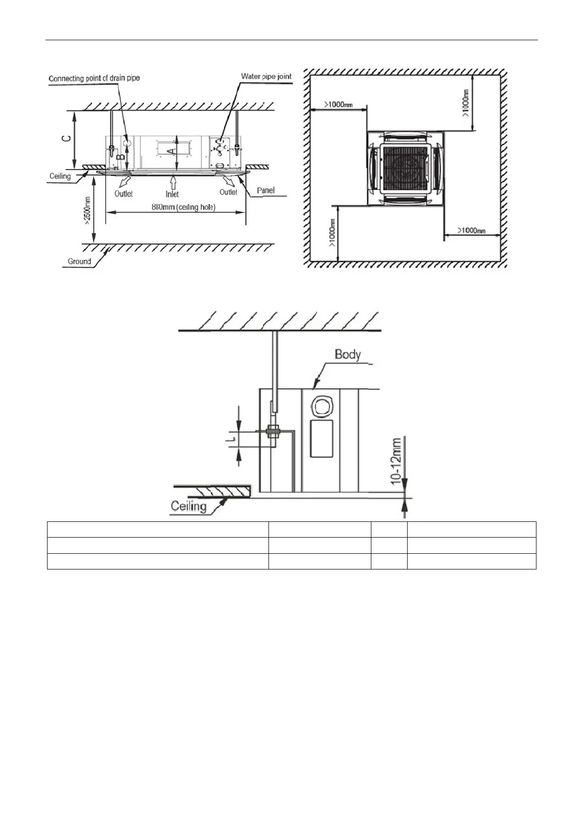
A
2
30
3
00
B
170
190
MCAC
S
C
>2
6
>3
3
-
KTSM-2012-
S
ervice Spac
e
C
6
0
3
0
02
e
s

Related product manuals