EasyManua.ls Logo

Midea MKG-600 - 9. Wiring Diagrams

Midea MKG-600
57 pages
To Next Page IconTo Next Page
To Next Page IconTo Next Page
To Previous Page IconTo Previous Page
To Previous Page IconTo Previous Page
Loading...
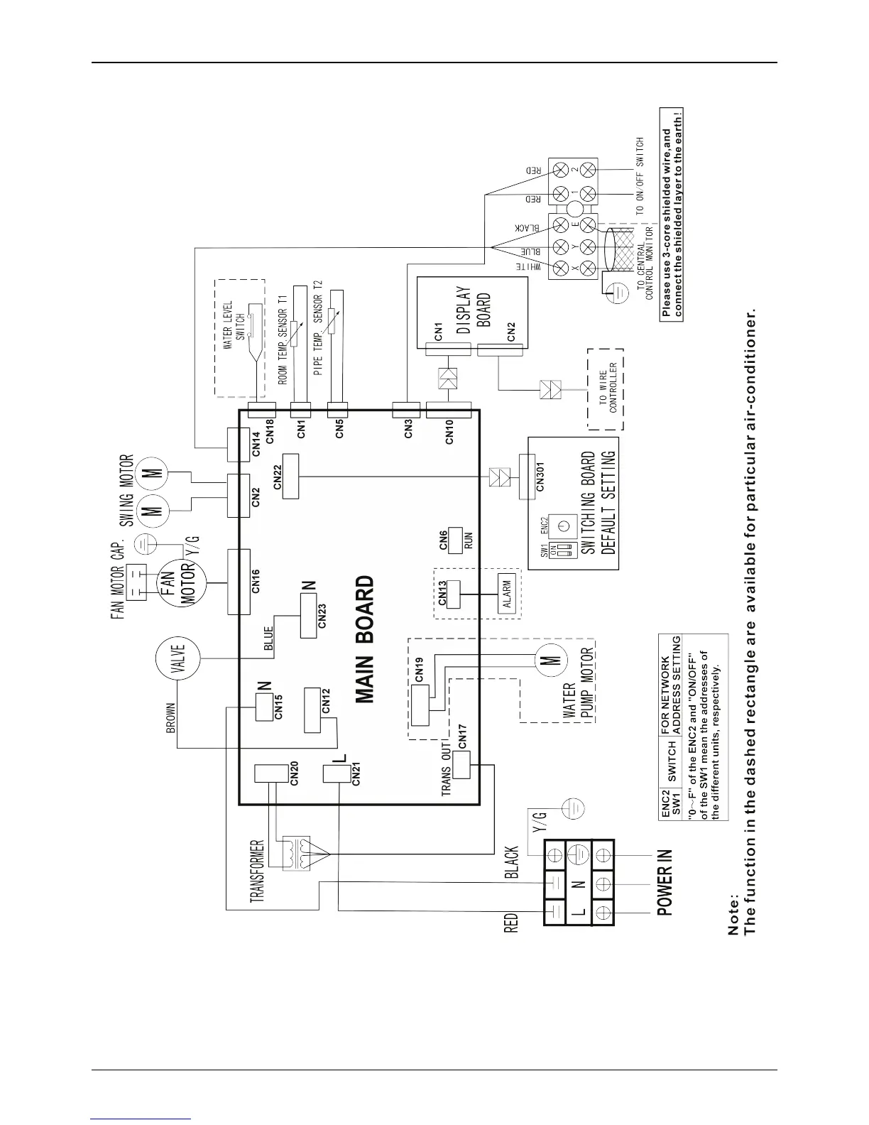
Midea 50Hz AC Fan Coil Unit Two-pipe Wall-mounted Series MCAC-UTSM-201606
- 11 -
9. Wiring Diagrams

Table of Contents

Related product manuals