EasyManua.ls Logo

Midea MTB-24CWN1-Q - Page 205

Midea MTB-24CWN1-Q
264 pages
Print Icon
To Next Page IconTo Next Page
To Next Page IconTo Next Page
To Previous Page IconTo Previous Page
To Previous Page IconTo Previous Page
Loading...
Indoor unit installation
Installation 201
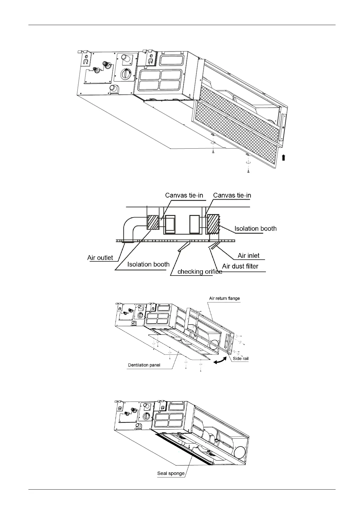
3.3.5 Install the air filter
Insert the air filter through the filter slot and fix it with 2 screws.
3.3.6 Install the air duct
Please design the air duct as below recommended picture
3.3.7 Change the air inlet direction
Take off ventilation panel and flange, cut off the staples at side rail.
Stick the attached seal sponge as per the indicating place in the following fig, and then change the
mounting positions of air return panel and air return flange .

Table of Contents

Related product manuals