EasyManua.ls Logo

Midea MTB-24CWN1-Q - Page 210

Midea MTB-24CWN1-Q
264 pages
Print Icon
To Next Page IconTo Next Page
To Next Page IconTo Next Page
To Previous Page IconTo Previous Page
To Previous Page IconTo Previous Page
Loading...
Indoor unit installation
206 Installation
3.5 HESP duct indoor unit installation
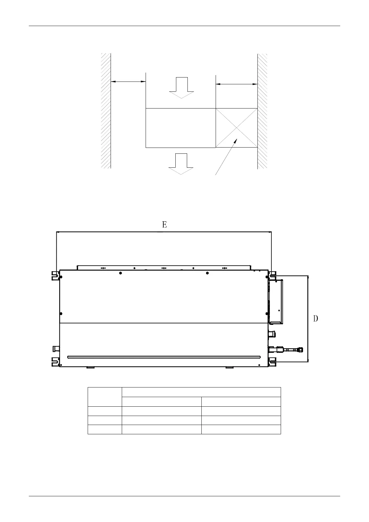
3.1 Service space for indoor unit
3.2 Bolt pitch
Capacity
(KBtu)
Size of mounted lug
D E
24 397 936
36 397 1146
48/60 495 1236
3.3 Install the pendant bolt
Select the position of installation hooks according to the hook holes positions showed in upper picture.
Drill four holes of Ø12mm, 45~50mm deep at the selected positions on the ceiling. Then embed the
expansible hooks (fittings).
500mm or more
600mm or more
Indoor unit
600mmx600mm
Maintenance and repair space

Table of Contents

Related product manuals