EasyManua.ls Logo

Midea MTI-24HWN1-Q - 3.2 Super-slim cassette indoor unit installation

Midea MTI-24HWN1-Q
264 pages
To Next Page IconTo Next Page
To Next Page IconTo Next Page
To Previous Page IconTo Previous Page
To Previous Page IconTo Previous Page
Loading...
Indoor unit installation
Installation 195
Hang the air-in grill to the panel, then connect the lead terminator of the swing motor and that of the control
box with corresponding terminators on the body respectively.
Note: The panel shall be installed after the wiring connected.
3.2 Super-slim cassette indoor unit installation
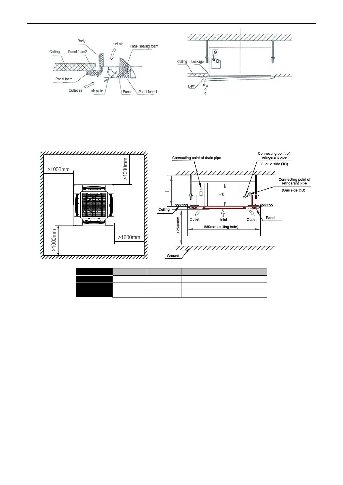
3.2.1 Service space for indoor unit
Model A H Remark
18/24 205 >235 Cooling / Cooling & Heating
30~48 245 >275 Cooling / Cooling & Heating
60 287 >317 Cooling / Cooling & Heating
3.2.2 Bolt pitch

Table of Contents

Related product manuals