EasyManua.ls Logo

Miele DA 251 - Page 25

Miele DA 251
32 pages
Print Icon
To Next Page IconTo Next Page
To Next Page IconTo Next Page
To Previous Page IconTo Previous Page
To Previous Page IconTo Previous Page
Loading...
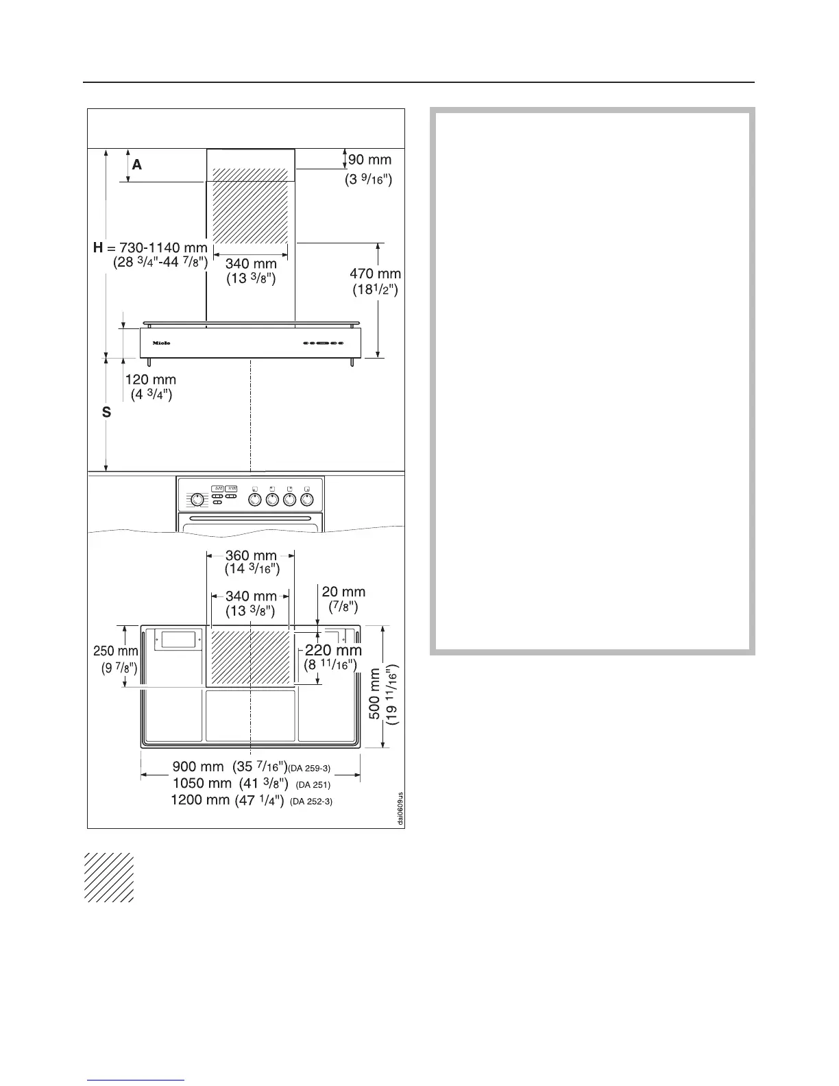
Cut out area in wall or ceiling for
entrance of 6" (150 mm)
ductwork or 5" (125 mm)
ductwork with a reducing collar.
Do not install this hood over any
appliance that burns solid fuel stove.
The minimum safety distance
allowed between the top of a Miele
cooking surface and the bottom of
the hood S is:
- 22" (55 cm) above electric cooktops
- 26" (65 cm) above gas cooktops
- 26" (65 cm) above an open grill
For non-Miele cooking appliances
maintain the safety distances
recommended by the cooktop
manufacturer in their installation and
operating instructions.
If there is more than one appliance
beneath the hood and they have
different minimum safety distances
always select the greater distance.
See "Warning and Safety
instructions" for further information.
26" (65 cm) is recommended for all
installations to allow for optimum work
space under the hood.
Read the entire installation procedure
and determine height S before
beginning the installation.
If the hood is fitted flush to the ceiling
make sure that the remaining distance
to the ceiling is not greater or less than
appliance height H.
To fit the chimney, distance A between
the top of the chimney and the ceiling
must be at least
7
/
8
" (20 mm).
Appliance dimensions and Installation
25

Related product manuals