EasyManua.ls Logo

Miele DA 5960 W - Page 22

Miele DA 5960 W
36 pages
Print Icon
To Next Page IconTo Next Page
To Next Page IconTo Next Page
To Previous Page IconTo Previous Page
To Previous Page IconTo Previous Page
Loading...
When deciding on the safety
distance between the hob and
cooker hood, please note that a
distance of 650 mm above electric
cookers/hobs may be preferable to
give more working space under the
hood.
Account should also be taken of the
height of the person who will be
using the hood most often. The
person should have sufficient space
to work comfortably at the hob, and
also be able to reach the hood
controls with ease.
Please be aware that if positioned
too high, extraction will be inefficient.
If you want the top of the cooker
hood to be mounted flush with the
ceiling, make sure there is adequate
space below it for working. See
maximum/minimum appliance height.
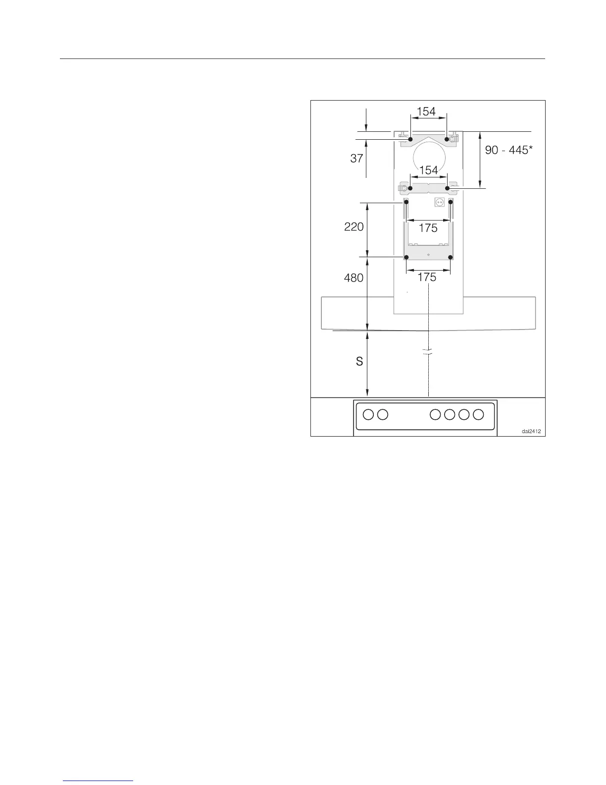
Drilling diagram
This diagram illustrates where holes for
Ø 5 mm screws need to be drilled in
the rear wall.
* The gap between the holes for the
spacer panel varies, and depends on
the position of the vent cut-out and the
connection socket. It should be
installed as low as possible.
If the cooker hood is being fixed
directly to the wall, please follow the
directions given in the installation
instructions supplied.
Appliance dimensions
22

Other manuals for Miele DA 5960 W

Related product manuals