EasyManua.ls Logo

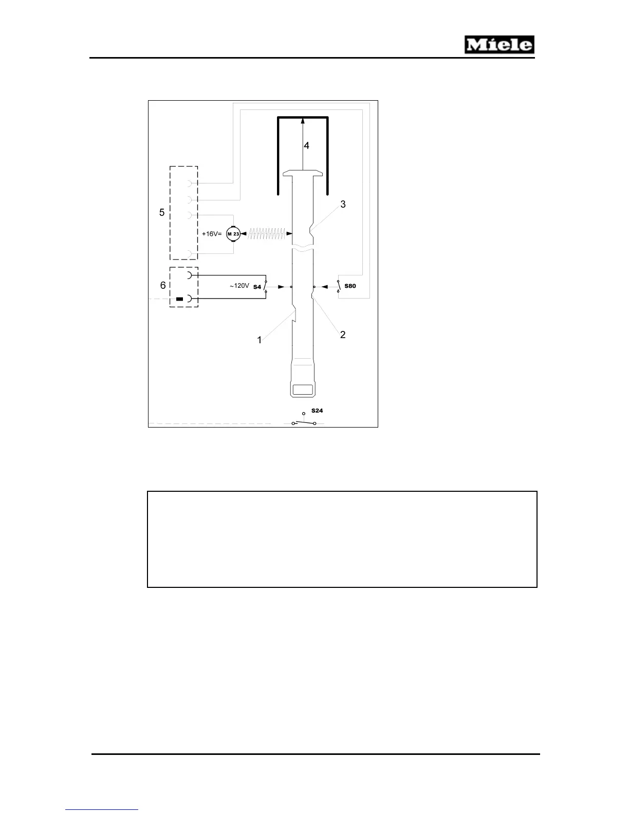
Miele G 4270 - Figure 020-10: Door Lock Latch, Intermediate Closing Position

Miele G 4270
159 pages
Print Icon
To Next Page IconTo Next Page
To Next Page IconTo Next Page
To Previous Page IconTo Previous Page
To Previous Page IconTo Previous Page
Loading...
Technical Information
47
G 5xxx
Intermediate position, closing:
Figure 020-10: Door Lock Latch, Intermediate Closing Position
The door lock latch function can be tested using component test V18; see
Section 080-2.2. For service mode access and component test selection, see
Section 080-4.2.
Note:
After a power failure, manual adjustment of the latch shaft, or servicing, it is
possible that no clear position can be recognized. Irrespective of whether
the control shaft is in an intermediate position or the position switch has not
activated, the motor will be activated in the opening direction until a clear
position is identified. During this procedure, it is possible that the action of
the internal safety slip coupling can be clearly heard.
1, 2, 3 Latch positions 1, 2, 3
4 Direction of latch movement
5 Plug 2
6 Plug 1
S4 Door switch (120VAC), open
S80 Door movement switch (low voltage),
open
S24 Door contact switch (120VAC), open
M23 Door-locking motor (DC motor);
voltage applied, motor is closing door

Table of Contents

Related product manuals