EasyManua.ls Logo

Milnor MCR12E5 - Page 52

Milnor MCR12E5
111 pages
Print Icon
To Next Page IconTo Next Page
To Next Page IconTo Next Page
To Previous Page IconTo Previous Page
To Previous Page IconTo Previous Page
Loading...
R
Pellerin Milnor CorporationPellerin Milnor Corporation
P. O. Box 400, Kenner, LA 70063-0400
Litho in U.S.A.
BMP060001/2009412B
(Sheet 1 of 2)
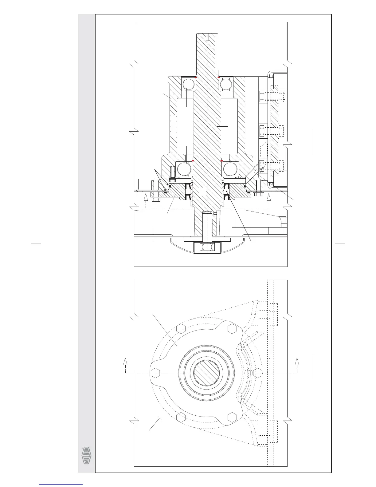
Bearing Assembly & Installation
MCR12E5, MCR18E4,MWR12E5, MWR18E4, MWR18X4, MWR18J4MCR16E5, MWR16E5,
SHELL BACK
WATER SEAL
HOLDER
VIEW B-B VIEW A-A
A
A
CYLINDER
BACK
PLATE
3
1
2
WATER
SEAL
HOLDER
B
SHELL BACK
SHAFT
SEALED
BALL BEARINGS
B
LEAK OFF
Lubricate the O-rings with the
approved grease before installation
4
BEARING
Fully fill the
area between
the seals with
the approved
grease
4

Related product manuals