EasyManua.ls Logo

Miracle LIB-053 - Page 16

Default Icon
26 pages
Print Icon
To Next Page IconTo Next Page
To Next Page IconTo Next Page
To Previous Page IconTo Previous Page
To Previous Page IconTo Previous Page
Loading...
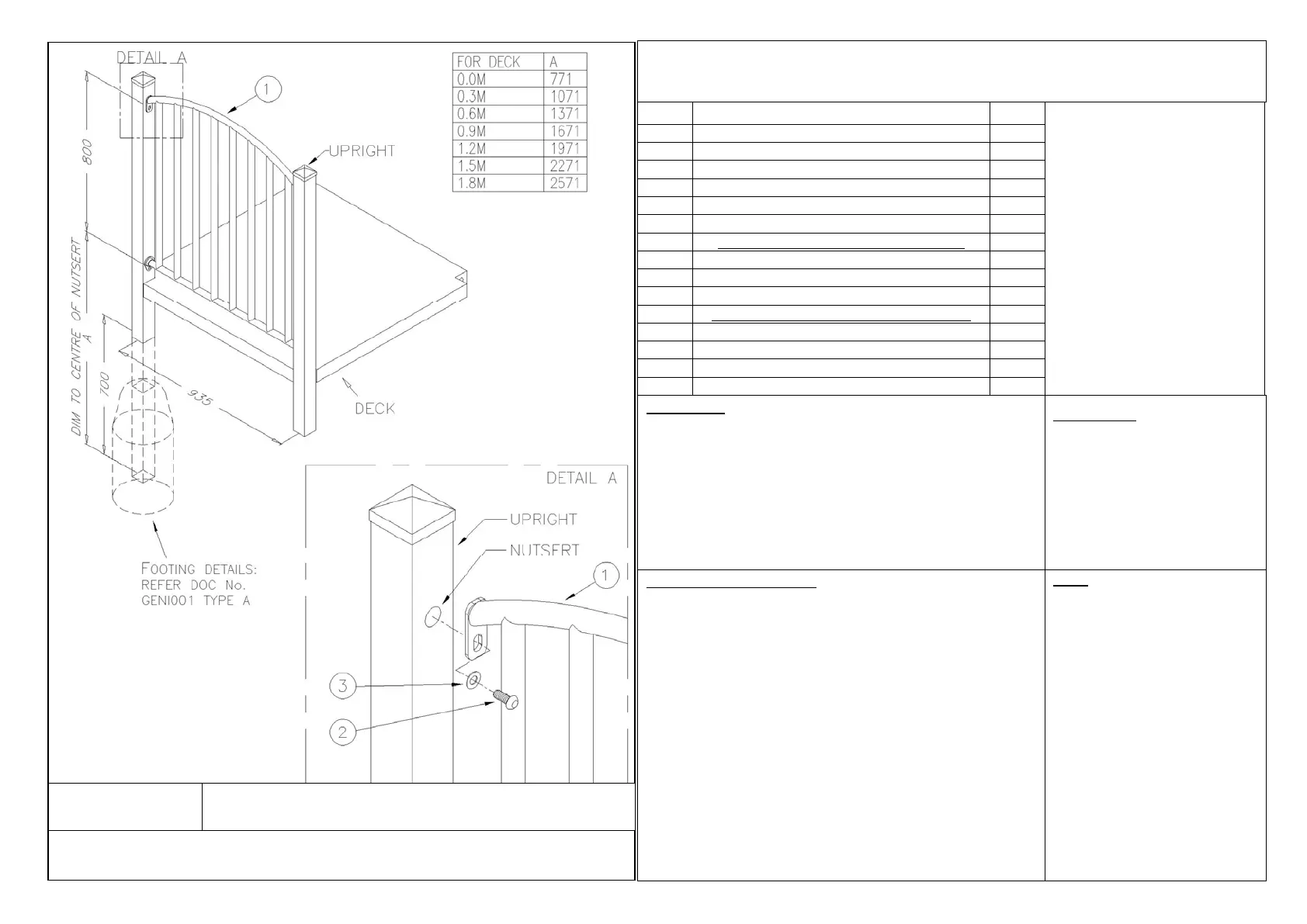
ARCHED SAFETY PANEL, ARCHED PIRATE’S LOOKOUT
PANEL & ARCHED STEERING WHEEL PANEL
Item
Description Qty
Specifications
1
Arched Safety Panel or
1
1
Arched Steering Wheel Panel or
1
1
Arched Pirate Lookout Panel
1
2
M
10x25 Torx Bolt
4
3
M10 Flat Washer
4
Colour: Optional
Extra components for Pirate’s L/out Panel:
Finish: Powdercoat
Universal Telescope
(Fitted)
1
3/8” Nyloc Nut
(Fitted)
1
M10 Flat Washer
(Fitted)
1
Extra components for Steering
Wheel Panel:
Poly Steering Wheel
(Fitted)
1
Fasteners:
Steering Wheel Mounting Plate
(Fitted)
1
Stainless Steel
M10 Nyloc Nut
(Fitted)
1
M10 Flat Washer
(Fitted)
1
Application:
Panels may be used as infills or as role play items.
This panel is available for on ground, 0.3m, 0.6m, 0.9m, 1.2m, 1.5m
& 1.8m high decks.
Maintenance
All fasteners should be regularly
checked and retightened, if necessary,
1 week after installation.
Ongoing maintenance intervals will vary
according to the amount of use the
equipment receives.
Recommend inspection intervals every 3
months.
Installation Instructions:
1. Refer to the plan view for the position of the panel.
2. Lift the panel into position and bolt it to the inside of the
uprights with four 25mm Torx Bolts and Flat Washers under
the heads.
3. Ensure all Bolts are fully tightened.
Note:
In-ground Upright depth may vary
depending on Softfall
- Sand/Mulch/Grass–700mm (Pictured)
- Rubber – 500mm
+ 300mm Added to Upright depth if
component is Freestanding
+ Use ID tag as reference.
STRUCTURE: ____________________
DATE: ___________
MIRACLE: ______________________ DATE: ___________
Doc No. P-02