EasyManua.ls Logo

Miracle LIB-053 - Page 17

Default Icon
26 pages
Print Icon
To Next Page IconTo Next Page
To Next Page IconTo Next Page
To Previous Page IconTo Previous Page
To Previous Page IconTo Previous Page
Loading...
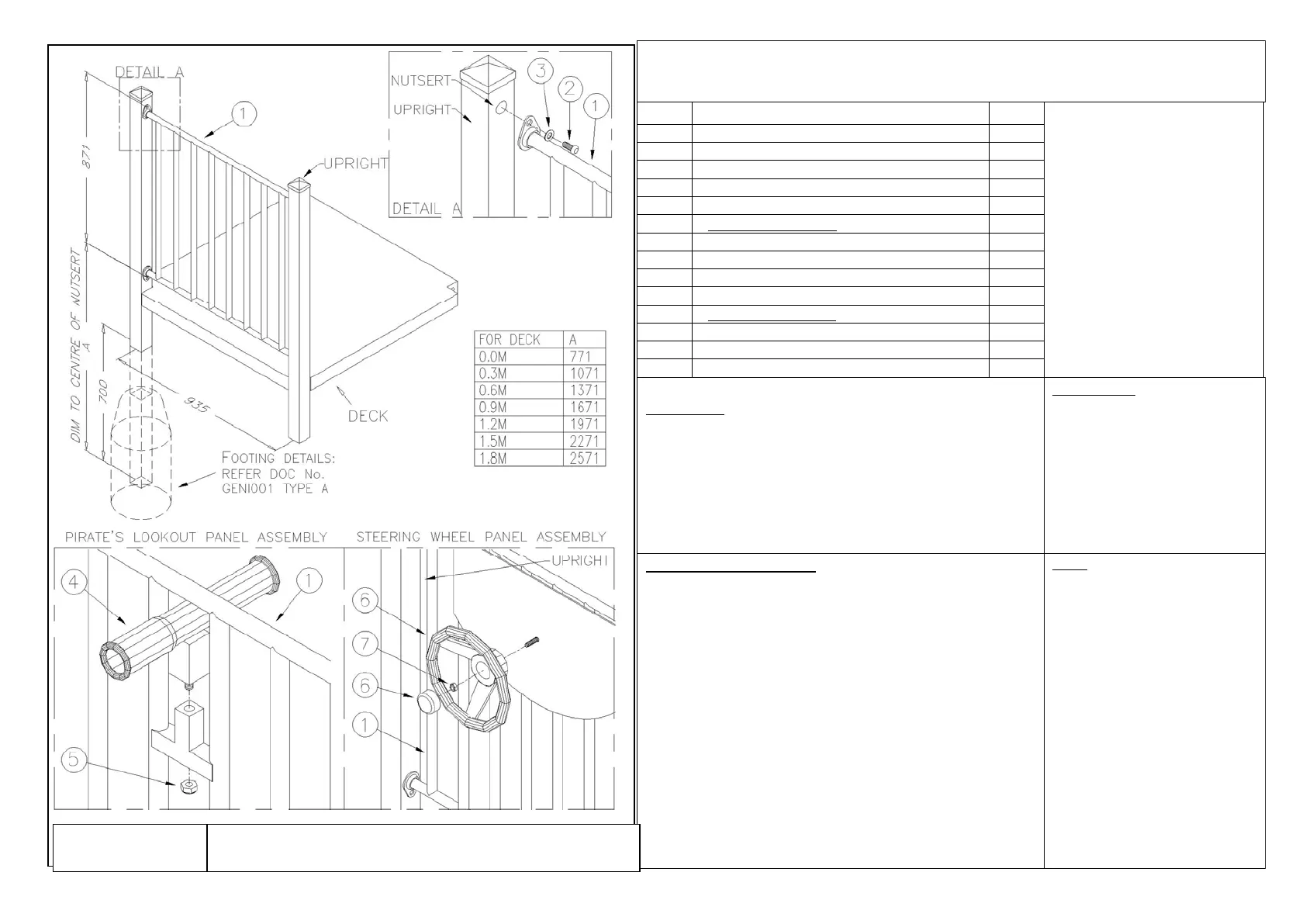
HEX STEERING WHEEL PANEL
Item
Description Qty
Specifications
1
Safety Panel,
or
Pirate Lookout Panel,
or
1
1
Steering Wheel Panel,
or
House Panel
1
2
M10x25mm Torx Bolt
4
3
M10 Flat Washers
4
Colour: Optio
nal
Pirate’s Lookout Panel:
4
Universal Telescope
(Fitted)
1
Finish: Powdercoat
5
3/8” Nyloc Nut
(Fitted)
1
M10 Flat Washer
(Fitted)
1
Steering Wheel Panel:
6
Poly Steering Wheel
with Plate (Fitted)
1
Fasteners:
7
M10 Nyloc N
ut
(Fitted)
1
Stainless Steel
M10 Flat Washer
(Fitted)
1
Application:
Panels may be used as infills or as role play items.
This panel is available for 0.0m, 0.3m, 0.6m, 0.9m, 1.2m, 1.5m &
1.8m high decks.
Maintenance
All fasteners should be regularly
checked and retightened, if necessary,
1 week after installation.
Ongoing maintenance intervals will vary
according to the amount of use the
equipment receives.
Recommend inspection intervals every 3
months.
* Wear Item - Refer Warranty
Installation Instructions:
1. Refer to the plan view for the position of the Panel.
2. Lift the panel into position and bolt it to the inside of the
uprights with Torx Bolts and Flat Washers under the bolt
heads.
3. Ensure all Bolts are fully tightened.
Note:
In-ground Upright depth may vary
depending on Softfall
- Sand/Mulch/Grass–700mm (Pictured)
- Rubber – 500mm
+ 300mm Added to Upright depth if
component is Freestanding
+ Use ID tag as reference.
STRUCTURE: ____________________
DATE: _____
______
MIRACLE: ______________________ DATE: ___________
Doc No. P
-
03
H