EasyManua.ls Logo

Mitsubishi QD75M2 - Page 365

Mitsubishi QD75M2
882 pages
Print Icon
To Next Page IconTo Next Page
To Next Page IconTo Next Page
To Previous Page IconTo Previous Page
To Previous Page IconTo Previous Page
Loading...
9 - 12
MELSEC-Q
9 MAJOR POSITIONING CONTROL
(4) Speed switching
(Refer to "
Pr.19
Speed switching mode".)
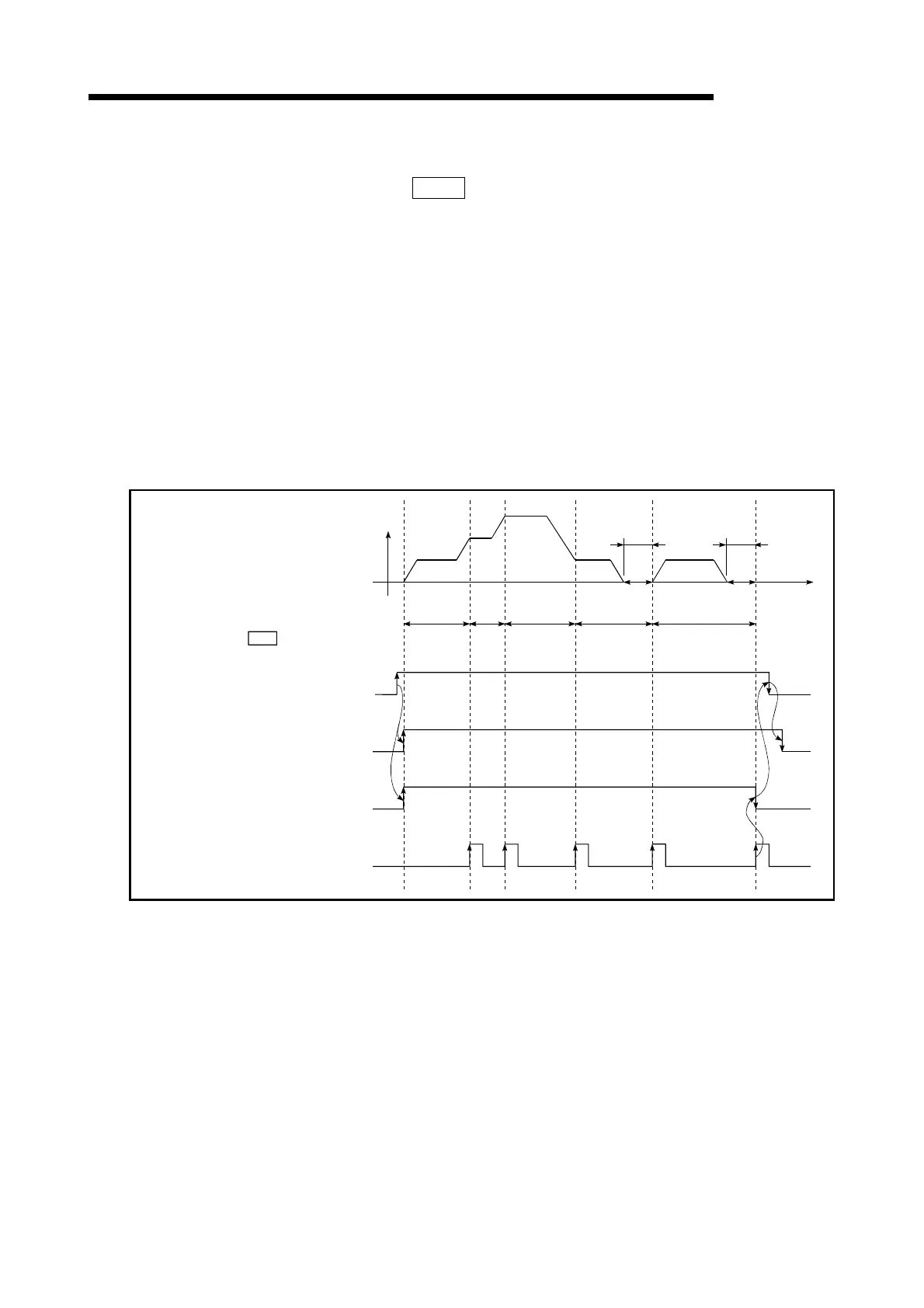
(a) Standard speed switching mode
1) If the respective command speeds differ in the "positioning data
currently being executed" and the "positioning data to carry out
the next operation", the machine will accelerate or decelerate
after reaching the positioning point set in the "positioning data
currently being executed" and the speed will change over to the
speed set in the "positioning data to carry out the next operation".
2) The parameters used in acceleration/deceleration to the
command speed set in the "positioning data to carry out the next
operation" are those of the positioning data to carry out
acceleration/deceleration.
Speed switching will not be carried out if the command speeds
are the same.
OFF
ON
OFF
ON
OFF
ON
OFF
ON
11 11 11 01
00
V
Dwell time
t
Da. 1 O
peration pattern
Start complete signal
BUSY signal
Positioning complete signal
Positioning start signal
Positioning
[Y10, Y11, Y12, Y13]
[X10, X11, X12, X13]
Dwell time
[XC, XD, XE, XF]
[X14, X15, X16, X17]
Fig. 9.4 Operation for the standard speed switching mode
3) Speed switching condition
If the movement amount is small in regard to the target speed, the
current speed may not reach the target speed even if
acceleration/deceleration is carried out. In this case, the machine
is accelerated/decelerated so that it nears the target speed.
If the movement amount will be exceeded when automatic
deceleration is required (Ex. Operation patterns "00", "01", etc.),
the machine will immediately stop at the designated positioning
address, and a "insufficient movement distance warning (warning
code: 513)" will occur.

Table of Contents

Related product manuals