EasyManua.ls Logo

Mitsubishi QD75M2 - Page 411

Mitsubishi QD75M2
882 pages
Print Icon
To Next Page IconTo Next Page
To Next Page IconTo Next Page
To Previous Page IconTo Previous Page
To Previous Page IconTo Previous Page
Loading...
9 - 58
MELSEC-Q
9 MAJOR POSITIONING CONTROL
Positioning data setting example
[Reference axis and interpolation axis are designated as axis 1 and axis 2,
respectively.]
The following table shows setting examples when "2-axis circular interpolation
control with sub point designation (INC circular sub)" is set in positioning data No.
1 of axis 1. (The required values are also set in positioning data No. 1 of axis 2.)
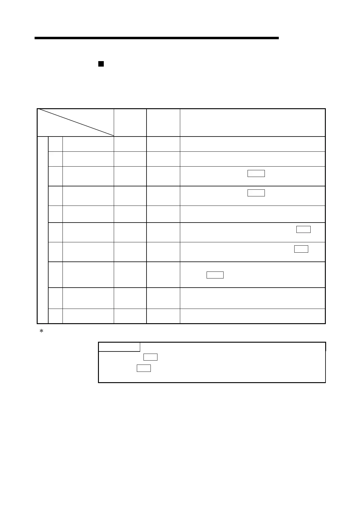
Axis
Setting item
Axis 1
(reference
axis) setting
example
Axis 2
(interpolation
axis) setting
example
Setting details
Da.1 Operation pattern Termination
Set "Termination" assuming the next positioning data will not
be executed.
Da.2 Control system
INC circular
sub
Set incremental system, 2-axis circular interpolation control
with sub point designation.
Da.3
Acceleration time
No.
1 –
Designate the value set in "
Pr.25
Acceleration time 1" as
the acceleration time at start.
Da.4
Deceleration time
No.
0 –
Designate the value set in "
Pr.10
Deceleration time 0" as
the deceleration time at deceleration.
Da.5
Axis to be
interpolated
2 –
Set the axis to be interpolated (partner axis).
If the self-axis is set, an error will occur.
Da.6
Positioning address/
movement amount
8000.0
µ
m 6000.0
µ
m
Set the movement amount. (Assuming that the "
Pr.1
Unit
setting" is set to "mm".)
Da.7 Arc address
4000.0
µ
m 3000.0
µ
m
Set the sub point address. (Assuming that the "
Pr.1
Unit
setting" is set to "mm".)
Da.8 Command speed
6000.00
mm/min
Set the speed during movement. (Designate the composite
speed in "
Pr.20
Interpolation speed designation
method".)
Da.9 Dwell time 500ms
Set the time the machine dwells after the positioning stop
(pulse output stop) to the output of the positioning complete
signal.
Axis 1 Positioning data No. 1
Da.10
M code 10
Set this when other sub operation commands are issued in
combination with the No. 1 positioning data.
Refer to section "5.3 List of positioning data" for information on the setting details.
POINT
Set a value in "
Da.8
Command speed" so that the speed of each axis does not
exceed the "
Pr.8
Speed limit value". (The speed limit does not function for the
speed calculated by the QD75 during interpolation control.)

Table of Contents

Related product manuals