EasyManua.ls Logo

Mitsubishi SCM100ZJ-S1 - Page 156

Mitsubishi SCM100ZJ-S1
246 pages
Print Icon
To Next Page IconTo Next Page
To Next Page IconTo Next Page
To Previous Page IconTo Previous Page
To Previous Page IconTo Previous Page
Loading...
-
155
-
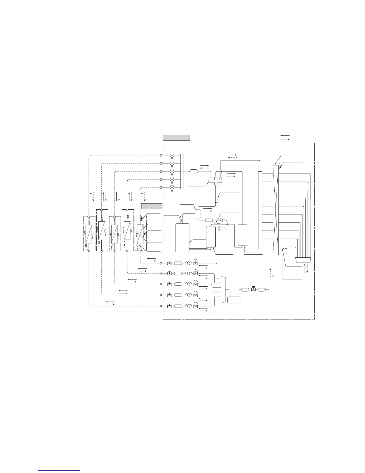
'11 • SCM-SM-110
Thermistor
(Tho-D)
Model SCM100ZJ-S1
Liquid line
Gas line
(φ9.52 or φ12.7 or φ15.88)
(φ9.52 or φ12.7 or φ15.88)
(φ9.52 or φ12.7 or φ15.88)
(φ9.52 or φ12.7 or φ15.88)
(φ9.52 or φ12.7
or φ15.88)
Service valve (Gas)
Heat
exchanger
Sensor
(Th2
1
)
(Th3)
Sensor
Humidity
sensor
(Th1)
Sensor
EEVA
EEVD
EEVC
EEVB
Strainer
Strainer Strainer
Discharge
Suction
Receiver
(HPS)
Service valve
(Liquid)
Electronic
expansion valve
Electronic
expansion valve
(EEV-H)
Compressor
Oil
separator
4way valve
Thermistor
Heat exchanger
(
Tho-A
)
Accumlator
Accumlator
*1
Gas line 20, 25, 35 type :
φ
9.52
50, 60 type :
φ
12.7
71 type :
φ
15.88
*2
Humidity sensor
SRK50,60ZJX-S1,35ZJR-S,35,50ZJ-S,71ZK-S and SRF series only.
Cooling cycle
Heating cycle
EEVE
Capillary
tube
(Th22)
Strainer
Hige preeure
sensor
Muffler
Outdoor Unit
(
φ
6.35)
(
φ
6.35)
(
φ
6.35)
(
φ
6.35)
(
φ
6.35)
Indoor Unit
*1
*1
*1
*1
*1
*2
Thermistor
(
Tho-S
)
Thermistor
(Tho-R)

Table of Contents

Related product manuals