EasyManua.ls Logo

Mitsubishi SCM100ZJ-S1 - Page 76

Mitsubishi SCM100ZJ-S1
246 pages
Print Icon
To Next Page IconTo Next Page
To Next Page IconTo Next Page
To Previous Page IconTo Previous Page
To Previous Page IconTo Previous Page
Loading...
-
75
-
'11 • SCM-SM-110
L
N
RD RD
WH
30A 250V
Y/G
TB3
TB4
TB5
TB6
TB7 TB8
RD
WH
TB3
TB4
TB5
TB6
TB7
RD
WH
2
AC
3
+1
-4
RD
BL
P1
N1
1 2
4 3
P2
N2
RD
BL
+
-
L1 L2
CNACT
P
N2
(BK)
RD RD
BL BL
CNACT1
P3
N3
BL
RD
RD
U
WH
V
BL
W
U
V
W
MS
3~
CNI2
CNI4
CNI1
CNI3
CNA2
CNA1
BL
4
BL
3
4A
250V
Y/G
Y/G
Y/G
RD
WH
RD
WH
L-IN N-IN
CNTRI
CNTRO
CNS2
CNX2
G
WH
RD
BK
WH
BK
WH
Y/G
CNA
CNB
CNC
CND
CNE
CNF
CN
EEV1
CN
EEV2
CN
EEV3
CN
EEV4
4
+
5 5 5 5 5 5
BK
1
2
3
WH
RD
BK
WH
BR
BK
WH
BL
BK
WH
YE
BK
WH
OR
BK
WH
PK
CNW
CNS1
CNX1
CNTH CNP1
2 2 2 2 2
UNIT A
UNIT B
UNIT C
UNIT D
UNIT E
UNIT F
2
2
5 5 5 5 55
BLRDWH GN BK YE
(WH)
(WH)
(WH)
(WH)
(WH)
(WH) (WH) (WH) (WH)
(YE)
(BK)
(WH)
(WH)
(BK)
(YE)
(BK)
(WH)
(GN)
(WH)
(WH)
CNEEV1
5
M
(RD)
M
5
CNL1
(BL)
CNFAN1
(WH)
3
CNR1
(WH)
2
CNN1
(RD)
2
POWER SOURCE
~ 220/230/240V
50Hz
3
BK
BK
BK
YE
BK
BR
BL
(WH)
MMMMMM
LED1
LED2 LED3
CHECKER PC
CNE CNV
(WH)
1
2
3
1
2
3
1
2
3
1
2
3
1
2
3
Circuit breaker
Earth leakage breaker
TB
1
PWB5
NOISE
PWB3
CT1
DS
L
A/F
PWB2
INV PWB
IPM
30A 600V
CM
F
PWB1
CONTROL PWB
PWB4
SUB PWB
C1
EEV A EEV B EEV C EEV D EEV E EEV F
TB
2
TB
3
Tho-R
Tho-D
Tho-S
Tho-A
Tho-AF
TR
F
1
2
FILTER
NOISE
FILTER
EEV-H
HPS CH 20S
FM
MODULE
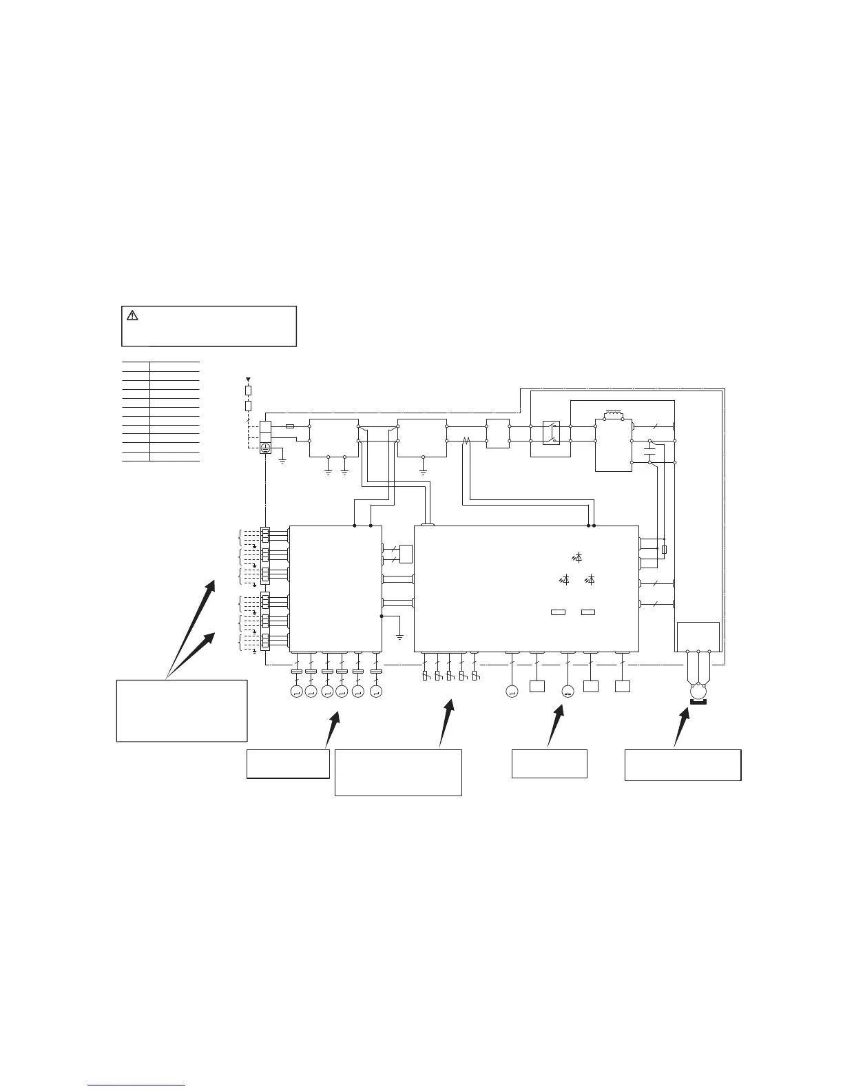
CAUTION- HIGH VOLTAGE
High voltage is produced in the control box. Don't touch
electrical parts in the control box for 5 minutes after the
unit is stopped.
Color Marks
Mark Color
BK Black
BL Blue
BR Brown
GN
Y/G
Green
Yellow/Green
OR Orange
PK Pink
RD Red
WH White
YE Yellow
Model SCM125ZJ-S1
Inspection power transistor
Remove the fasten terminal and test
output voltage
Inspection of outdoor
fan motor
See page 76.
Inspection of resistance value of sensor
Remove the connector and check the
resistance value.
See the section of sensor characteristics
on page 64.
Power source and serial
signal inspection
to : AC 220/230/240V
to : Normal if the voltage
oscillates between DC 0
and approx. 20V
Inspection of electronic
expansion valve
See page 76.

Table of Contents

Related product manuals