EasyManua.ls Logo

Mitsubishi SCM50ZJ-S1 - Page 195

Mitsubishi SCM50ZJ-S1
246 pages
To Next Page IconTo Next Page
To Next Page IconTo Next Page
To Previous Page IconTo Previous Page
To Previous Page IconTo Previous Page
Loading...
-
194
-
'11 • SCM-SM-110
PJA012D781
INSTALLATION MANUAL FOR CEILING CASSETTE
– 4 WAY COMPACT (600 x 600mm) –
This manual is for the installation of an indoor unit.
For electrical wiring work (Indoor), refer to the electrical wiring work installation manual. For remote
controller installation, refer to the installation manual attached to a remote controller. For wireless
kit installation, refer to the installation manual attached to a wireless kit. For electrical wiring work
(Outdoor) and refrigerant pipe work installation for outdoor unit, refer to the installation manual
attached to an outdoor unit.
This unit must always be used with the panel.
SAFETY PRECAUTIONS
l
Read the “SAFETY PRECAUTIONS” carefully first of all and then strictly follow it during the installation
work in order to protect yourself.
l
The precautionary items mentioned below are distinguished into two levels, and .
: Wrong installation would cause serious consequences such as injuries or death.
: Wrong installation might cause serious consequences depending on circumstances.
Both mentions the important items to protect your health and safety so strictly follow them by any means.
l
After completing the installation, do commissioning to confirm there are no abnormalities, and explain to the
customers about “SAFETY PRECAUTIONS”, correct operation method and maintenance method (air filter
cleaning, operation method and temperature setting method) with user’s manual of this unit.
Ask your customers to keep this installation manual together with the user’s manual. Also, ask them to hand
over the user’s manual to the new user when the owner is changed.
l Installation should be performed by the specialist.
If you install the unit by yourself, it may lead to serious trouble such as water leakage, electric shock, fire, and
injury due to overturn of the unit.
l Install the system correctly according to these installation manuals.
Improper installation may cause explosion, injury, water leakage, electric shock, and fire.
l Consider measurement not to exceed the limit of the density of refrigerant in the event of
leakage especially when it is installed in a small room.
Consult the specialist about the measure. If the density of refrigerant exceeds the limit in the event of the leakage,
serious accidents may occur due to lack of oxygen.
l Use the genuine accessories and the specified parts for installation.
If parts unspecified by our company are used it could cause water leakage, electric shock, fire, and injury due to
overturn of the unit.
l Ventilate the working area well in case the refrigerant leaks during installation.
If the refrigerant contacts the fire, toxic gas is produced.
l Install the unit in a location that can hold heavy weight.
Improper installation may cause the unit to fall leading to accidents.
l Install the unit properly in order to be able to withstand strong winds such as typhoons, and
earthquakes.
Improper installation may cause the unit to fall leading to accidents.
l Do not mix air in to the cooling cycle on installation or removal of the air conditioner.
If air is mixed in, the pressure in the cooling cycle will rise abnormally and may cause explosion and injuries.
l Be sure to have the electrical wiring work done by qualified electrical installer, and use
exclusive circuit.
Power source with insufficient capacity and improper work can cause electric shock and fire.
l Use specified wire for electrical wiring, fasten the wiring to the terminal securely, and hold the
cable securely in order not to apply unexpected stress on the terminal.
Loose connections or hold could result in abnormal heat generation or fire.
l Arrange the electrical wires in the control box properly to prevent them from rising. Fit the lid
of the services panel property.
Improper fitting may cause abnormal heat and fire.
l Check for refrigerant gas leakage after installation is completed.
If the refrigerant gas leaks into the house and comes in contact with a fan heater, a stove, or an oven, toxic gas
is produced.
l Use the specified pipe, flare nut, and tools for R410A.
Using existing parts (R22) could cause the unit failure and serious accident due to explosion of the cooling cycle.
l Tighten the flare nut according to the specified method by with torque wrench.
If the flare nut were tightened with excess torque, it could cause burst and refrigerant leakage after a long period.
l Make sure there is no dust or clogging on both the plug and the socket nor loose connection
of the socket before plugging, and plug in securely to the end of the blade.
Accumulation of dust, clogging on the socket or plug, or loose installation of the socket could cause electric shock
and fire. Replace the socket if it is loose.
l Connect the pipes for refrigeration circuit securely in installation work before compressor is
operated.
If the compressor is operated when the service valve is open without connecting the pipe, it could cause
explosion and injuries due to abnormal high pressure in the system.
l Stop the compressor before removing the pipe on pump down work.
If the pipe is removed when the compressor is in operation with the service valve open, air would be mixed in the
refrigeration circuit and it could cause explosion and injuries due to abnormal high pressure in the cooling cycle.
l Use the genuine optional parts. And installation should be performed by a specialist.
If you install the unit by yourself, it could cause water leakage, electric shock and fire.
l Do not repair by yourself. And consult with the dealer about repair.
Improper repair may cause water leakage, electric shock or fire.
l Consult the dealer or a specialist about removal of the air conditioner.
Improper installation may cause water leakage, electric shock or fire.
l Turn off the power source during servicing or inspection work.
If the power is supplied during servicing or inspection work, it could cause electric shock and injury by the
operating fan.
l Do not run the unit when the panel or protection guard are taken off.
Touching the rotating equipment, hot surface, or high voltage section could cause an injury to be caught in the
machine, to get burned, or electric shock.
l Shut off the power before electrical wiring work.
It could cause electric shock, unit failure and improper running.
WARNING
l Perform earth wiring surely.
Do not connect the earth wiring to the gas pipe, water pipe, lightning rod and telephone earth wiring. Improper
earth could cause unit failure and electric shock due to a short circuit.
l Use the circuit breaker of correct capacity.
Using the incorrect capacity one could cause the system failure and fire.
l Do not use any materials other than a fuse of correct capacity where a fuse should be used.
Connecting the circuit by wire or copper wire could cause unit failure and fire.
l Do not install the indoor unit near the location where there is possibility of flammable gas
leakages.
If the gas leaks and gathers around the unit, it could cause fire.
l Do not install and use the unit where corrosive gas (such as sulfurous acid gas etc.) or
flammable gas (such as thinner, petroleum etc.) may be generated or accumulated, or volatile
flammable substances are handled.
It could cause the corrosion of heat exchanger, breakage of plastic parts etc. And inflammable gas could cause fire.
l Do not use the indoor unit at the place where water splashes such as laundry.
Indoor unit is not waterproof. It could cause electric shock and fire.
l Do not use the indoor unit for a special purpose such as food storage, cooling for precision
instrument, preservation of animals, plants, and a work of art.
It could cause the damage of the items.
l Do not install nor use the system near equipments which generate electromagnetic wave or
high harmonics.
Equipments like inverter equipment, private power generator, high-frequency medical equipment, or
telecommunication equipment might influence the air conditioner and cause a malfunction and breakdown. Or the
air conditioner might influence medical equipments or telecommunication equipments, and obstruct their medical
activity or cause jamming.
l Do not install the remote controller at the direct sunlight.
It could cause breakdown or deformation of the remote controller.
l Do not install the indoor unit at the place listed below.
Places where flammable gas could leak.
Places where carbon fiber, metal powder or any powder is floated.
Place where the substances which affect the air conditioner are generated such as sulfide gas, chloride gas,
acid or alkali.
Places exposed to oil mist or steam directly.
On vehicles and ships
Places where machinery which generates high harmonics is used.
Places where cosmetics or special sprays are frequently used.
Highly salted area such as beach.
Heavy snow area
Places where the system is affected by smoke from a chimney.
Altitude over 1000m
l Do not put any valuables which will break down by getting wet under the air conditioner.
Condensation could drop when the relative humidity is higher than 80% or drain pipe is clogged, and it damages
user’s belongings.
l Do not use the base frame for the outdoor unit which is corroded or damaged after a long
period of use.
It could cause the unit falling down and injury.
l Pay attention not to damage the drain pan by weld sputter when brazing work is done near the
unit.
If sputter entered into the unit during brazing work, it could cause damage (pinhole) of drain pan and leakage of
water. To avoid damaging, keep the indoor unit packed or cover the indoor unit.
l Install the drain pipe to drain the water surely according to the installation manual.
Improper connection of the drain pipe may cause dropping water into room and damaging user’s belongings.
l Do not put the drain pipe directly into the ditch where toxic gas such as sulfide gas is
generated.
Toxic gas would flow into the room and it would cause serious damage to user’s health and safety.
l Do not share the drain pipe for indoor unit and GHP (Gas Heat Pump system) outdoor unit.
Toxic exhaust gas would flow into room and it might cause serious damage (some poisoning or deficiency of
oxygen) to user’s health and safety.
l For drain pipe installation, be sure to make descending slope of greater than 1/100, not to
make traps, and not to make air-bleeding
Check if the drainage is correctly done during commissioning and ensure the space for inspection and
maintenance.
l Ensure the insulation on the pipes for refrigeration circuit so as not to condense water.
Incomplete insulation could cause condensation and it would wet ceiling, floor, and any other valuables.
l Do not install the outdoor unit where is likely to be a nest for insects and small animals.
Insects and small animals could come into the electronic components and cause breakdown and fire. Instruct the
user to keep the surroundings clean.
l Pay extra attention, carrying the unit by hand.
Carry the unit with 2 people if it is heavier than 20kg. Do not use the plastic straps but the grabbing place, moving
the unit by hand. Use protective gloves in order to avoid injury by the aluminum fin.
l Make sure to dispose of the packaging material.
Leaving the materials may cause injury as metals like nail and woods are used in the package.
l Do not operate the system without the air filter.
It may cause the breakdown of the system due to clogging of the heat exchanger.
l Do not touch any button with wet hands.
It could cause electric shock.
l Do not touch the refrigerant piping with bare hands when in operation.
The pipe during operation would become very hot or cold according to the operating condition, and it could cause
a burn or frostbite.
l Do not clean up the air conditioner with water.
It could cause electric shock.
l Do not turn off the power source immediately after stopping the operation.
Be sure to wait for more than 5 minutes. Otherwise it could cause water leakage or breakdown.
l Do not control the operation with the circuit breaker.
It could cause fire or water leakage. In addition, the fan may start operation unexpectedly and it may cause injury.
CAUTION
Before installation
l Install correctly according to the installation manual.
l Confirm the following points:
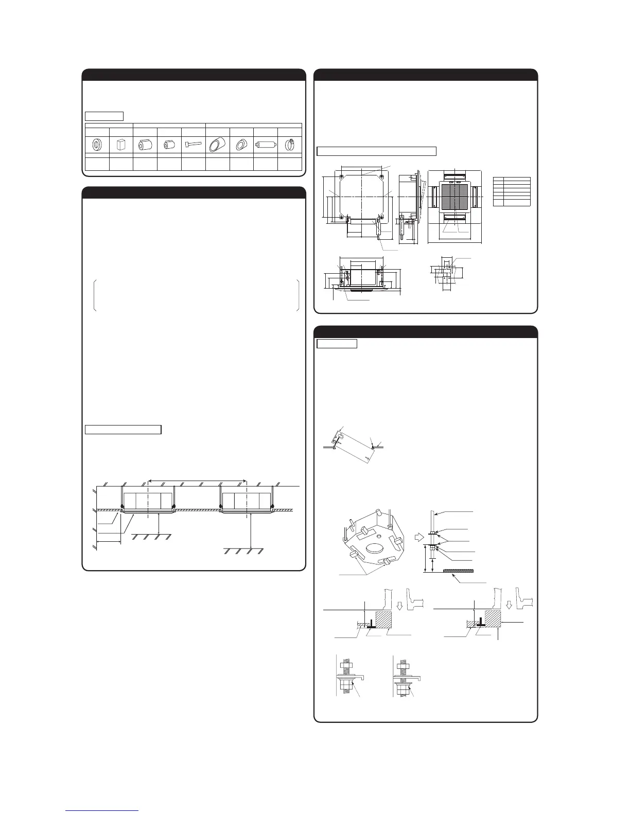
Unit type/Power supply specification Pipes/Wires/Small parts Accessory items
Accessory itme
For unit hanging For refrigerant pipe For draom pipe
Flat washer
(M10)
Level gauge
(Insulation)
Pipe cover(big)
Pipe cover
(small)
Strap Pipe cover(big) Pipe cover(small) Drain hose Hose clamp
8 4 1 1 4 1 1 1 1
For unit hanging
For adjustment
in hoisting in the
unit's main body
For heat
insulation
of gas pipe
For heat
insulation
of liquid tube
For pipe cover
fixing
For heat
insulation
of drain socket
For heat
insulation
of drain socket
For drain pipe
connecting
For drain hose
mounting
Selection of installation location for the indoor unit
j Select the suitable areas to install the unit under approval of the user.
Areas where the indoor unit can deliver hot and cold wind sufficiently. Suggest to the user to use
a circulator if the ceiling height is over 3m to avoid warm air being accumulated on the ceiling.
Areas where there is enough space to install and service.
Areas where it can be drained properly. Areas where drain pipe descending slope can be taken.
Areas where there is no obstruction of airflow on both air return grille and air supply port.
Areas where fire alarm will not be accidentally activated by the air conditioner.
Areas where the supply air does not short-circuit.
Areas where it is not influenced by draft air.
Areas not exposed to direct sunlight.
Areas where dew point is lower than around 28°C and relative humidity is lower than 80%.
This indoor unit is tested under the condition of JIS (Japan Industrial Standard) high humidity
condition and confirmed there is no problem. However, there is some risk of condensation drop
if the air conditioner is operated under the severer condition than mentioned above.
If there is a possibility to use it under such a condition, attach additional insulation of 10 to
20mm thick for entire surface of indoor unit, refrigeration pipe and drain pipe.
Areas where TV and radio stays away more than 1m. (It could cause jamming and noise.)
Areas where any items which will be damaged by getting wet are not placed such as food, table
wares, server, or medical equipment under the unit.
Areas where there is no influence by the heat which cookware generates.
Areas where not exposed to oil mist, powder and/or steam directly such as above fryer.
Areas where lighting device such as fluorescent light or incandescent light doesn’t affect the
operation.
(A beam from lighting device sometimes affects the infrared receiver for the wireless remote
controller and the air conditioner might not work properly.)
k Check if the place where the air conditioner is installed can hold the weight of the unit. If it is not
able to hold, reinforce the structure with boards and beams strong enough to hold it. If the strength
is not enough, it could cause injury due to unit falling.
l If there are 2 units of wireless type, keep them away for more than 5m to avoid malfunction due to
cross communication.
m When plural indoor units are installed nearby, keep them away for more than 4m.
Space for installation and service
l When it is not possible to keep enough space between indoor unit and wall or between indoor units,
close the air supply port where it is not possible to keep space and confirm there is no short circuit
of airflow.
l Install the indoor unit at a height of more than 2.5m above the floor.
tinuroodnItinuroodnI
Wall
Ceiling
surface
Decorative panel
1000mm or more
4000mm or more
1000mm or more
2500mm or more
Obstacle
Floor
Preparation before installation
l If suspension bolt becomes longer, do reinforcement of earthquake resistant.
For grid ceiling
When suspension bolt length is over 500mm, or the gap between the ceiling and roof is over
700mm, apply earthquake resistant brace to the bolt.
In case the unit is hanged directly from the slab and is installed on the ceiling plane which has
enough strength.
When suspension bolt length is over 1000mm, apply the earthquake resistant brace to the bolt.
l Prepare four (4) sets of suspension bolt, nut and spring washer (M10 or M8) on site.
Ceiling opening, Suspension bolts pitch, Pipe position
Installation of indoor unit
Work procedure
1. This units is designed for 2 x 2 grid ceiling.
If necessary, please detach the T bar temporarily before you install it.
If it is installed on a ceiling other than 2 x 2 grid ceiling, provide an inspection port on the control box
side.
2. Arrange the suspension bolt at the right position (530mm×530mm).
3. Make sure to use four suspension bolts and fix them so as to be able to hold 500N load.
4. Ensure that the lower end of the suspension bolt should be 45mm above the ceiling plane.
Temporarily put the four lower nuts 88mm above the ceiling plane and the upper nuts on distant
place from the lower nuts in order not to obstruct hanging the indoor unit or adjust the indoor unit
position, and then hang the indoor unit.
T bar
Ceiling
panel
Control box
5. Adjust the indoor unit position after hanging it by inserting the level gauge attached on the package
into the air supply port and checking if the gap between the ceiling plane and the indoor unit is
appropriate. In order to adjust the indoor unit position, adjust the lower nuts while the upper nuts are
put on distant place. Confirm there is no backlash between the hanger plate for suspension bolt and
the lower nut and washer.
88mm
Suspension bolt
Nut (upper)
Flat washer
Spring washer
Nut (lower)
Ceiling surface
45mm
Refrigerant piping
Drain piping
Level gauge
30
30
Level gauge
T-bar
Ceiling panel
(insulation)
Use level gauges as
reference, adjust the
bottom to the face of
the indoor unit
.
Diffuser
Level gauge
(insulation)
T-ba
r
Ceiling panel
Use level gauges as
reference, adjust the
bottom to the face of
the indoor unit
.
When the ceiling panel comes below the
T
bar, align the bottom of the level gauge to
the lower face of the ceiling panel.
Diffuser
Unit
Correct
Unit
Wrong
Touch the nut (lower) and
washer without any play
Play is left between the fixture
and the nut (lower) and washer.
A
B
C E
F
F
F
D
F
6-φ4
D
E
C
B
A
Symbol
Content
Air outlet opening
for ducting
F
Gas piping
Liquid piping
Drain piping
Hole for wiring
Suspension bolts
Decorative panel
Air supply
Air return
grille
Hanger plate for
suspension bolt
(Installed on site)
Drain hose piece
(Accessory)
Control
box
Holes for
tapping screws
Hole
145
325
570
45 or more
132
192
35
88
210
248
185
190
223
326
350
530(
Suspensionboltspitch)
530 (Suspension bolts pitch)
556
67
200
48
413
700
21
35
60
140
100
100
88
140
5IJTNBOVBMJTGPSUIFJOTUBMMBUJPOPGBOJOEPPSVOJU
'PSFMFDUSJDBMXJSJOHXPSL*OEPPSSFGFSUPUIFFMFDUSJDBMXJSJOHXPSLJOTUBMMBUJPONBOVBM'PSSFNPUF
DPOUSPMMFSJOTUBMMBUJPOSFGFSUPUIFJOTUBMMBUJPONBOVBMBUUBDIFEUPBSFNPUFDPOUSPMMFS'PSXJSFMFTT
LJUJOTUBMMBUJPOSFGFSUPUIFJOTUBMMBUJPONBOVBMBUUBDIFEUPBXJSFMFTTLJU'PSFMFDUSJDBMXJSJOHXPSL
0VUEPPSBOESFGSJHFSBOUQJQFXPSLJOTUBMMBUJPOGPSPVUEPPSVOJUSFGFSUPUIFJOTUBMMBUJPONBOVBM
BUUBDIFEUPBOPVUEPPSVOJU
5IJTVOJUNVTUBMXBZTCFVTFEXJUIUIFQBOFM
4"'&5:13&$"65*0/4
8"3/*/(
$"65*0/
3FBEUIFi4"'&5:13&$"65*0/4wDBSFGVMMZmSTUPGBMMBOEUIFOTUSJDUMZGPMMPXJUEVSJOHUIFJOTUBMMBUJPOXPSL
JOPSEFSUPQSPUFDUZPVSTFMG
5IFQSFDBVUJPOBSZJUFNTNFOUJPOFECFMPXBSFEJTUJOHVJTIFEJOUPUXPMFWFMTBOE
8SPOHJOTUBMMBUJPOXPVMEDBVTFTFSJPVTDPOTFRVFODFTTVDIBTJOKVSJFTPSEFBUI
8SPOHJOTUBMMBUJPONJHIUDBVTFTFSJPVTDPOTFRVFODFTEFQFOEJOHPODJSDVNTUBODFT
#PUINFOUJPOTUIFJNQPSUBOUJUFNTUPQSPUFDUZPVSIFBMUIBOETBGFUZTPTUSJDUMZGPMMPXUIFNCZBOZNFBOT
5IFNFBOJOHTPGi.BSLTwVTFEIFSFBSFBTTIPXOBTGPMMPXT

"GUFSDPNQMFUJOHUIFJOTUBMMBUJPOEPDPNNJTTJPOJOHUPDPOmSNUIFSFBSFOPBCOPSNBMJUJFTBOEFYQMBJOUPUIF
DVTUPNFSTBCPVUi4"'&5:13&$"65*0/4wDPSSFDUPQFSBUJPONFUIPEBOENBJOUFOBODFNFUIPEBJSmMUFS
DMFBOJOHPQFSBUJPONFUIPEBOEUFNQFSBUVSFTFUUJOHNFUIPEXJUIVTFSTNBOVBMPGUIJTVOJU
"TLZPVSDVTUPNFSTUPLFFQUIJTJOTUBMMBUJPONBOVBMUPHFUIFSXJUIUIFVTFSTNBOVBM"MTPBTLUIFNUPIBOE
PWFSUIFVTFSTNBOVBMUPUIFOFXVTFSXIFOUIFPXOFSJTDIBOHFE
$"65*0/
/FWFSEPJUVOEFSBOZDJSDVNTUBODFT
$"65*0/
*OTUBMMBUJPOTIPVMECFQFSGPSNFECZUIFTQFDJBMJTU
*GZPVJOTUBMMUIFVOJUCZZPVSTFMGJUNBZMFBEUPTFSJPVTUSPVCMFTVDIBTXBUFSMFBLBHFFMFDUSJDTIPDLmSFBOEJOKVSZEVFUPPWFSUVSOPGUIFVOJU
*OTUBMMUIFTZTUFNDPSSFDUMZBDDPSEJOHUPUIFTFJOTUBMMBUJPONBOVBMT
*NQSPQFSJOTUBMMBUJPONBZDBVTFFYQMPTJPOJOKVSZXBUFSMFBLBHFFMFDUSJDTIPDLBOEmSF
8IFOJOTUBMMJOHJOTNBMMSPPNTUBLFQSFWFOUJPONFBTVSFTOPUUPFYDFFEUIFEFOTJUZMJNJUPGSFGSJHFSBOUJOUIF
FWFOUPGMFBLBHFSFGFSSFECZUIFGPSNVMBBDDPSEBODF XJUI *40
*G UIF EFOTJUZ PGSFGSJHFSBOUFYDFFETUIFMJNJUQMFBTFDPOTVMUUIFEFBMFSBOEJOTUBMMUIFWFOUJMBUJPOTZTUFNPUIFSXJTFMBDLPG
PYZHFODBOPDDVSXIJDIDBODBVTFTFSJPVTBDDJEFOUT
6TFUIFHFOVJOFBDDFTTPSJFTBOEUIFTQFDJmFEQBSUTGPSJOTUBMMBUJPO
*GQBSUTVOTQFDJmFECZPVSDPNQBOZBSFVTFEJUDPVMEDBVTFXBUFSMFBLBHFFMFDUSJDTIPDLmSFBOEJOKVSZEVFUPPWFSUVSOPGUIFVOJU
7FOUJMBUFUIFXPSLJOHBSFBXFMMJODBTFUIFSFGSJHFSBOUMFBLTEVSJOHJOTUBMMBUJPO
*GUIFSFGSJHFSBOUDPOUBDUTUIFmSFUPYJDHBTJTQSPEVDFE
*OTUBMMUIFVOJUJOBMPDBUJPOUIBUDBOIPMEIFBWZXFJHIU
*NQSPQFSJOTUBMMBUJPONBZDBVTFUIFVOJUUPGBMMMFBEJOHUPBDDJEFOUT
*OTUBMMUIFVOJUQSPQFSMZJOPSEFSUPCFBCMFUPXJUITUBOETUSPOHXJOETTVDIBTUZQIPPOTBOEFBSUIRVBLFT
*NQSPQFSJOTUBMMBUJPONBZDBVTFUIFVOJUUPGBMMMFBEJOHUPBDDJEFOUT
%POPUNJYBJSJOUPUIFDPPMJOHDZDMFPOJOTUBMMBUJPOPSSFNPWBMPGUIFBJSDPOEJUJPOFS
*GBJSJTNJYFEJOUIFQSFTTVSFJOUIFDPPMJOHDZDMFXJMMSJTFBCOPSNBMMZBOENBZDBVTFFYQMPTJPOBOEJOKVSJFT
#FTVSFUPIBWFUIFFMFDUSJDBMXJSJOHXPSLEPOFCZRVBMJmFEFMFDUSJDBMJOTUBMMFSBOEVTFFYDMVTJWFDJSDVJU
1PXFSTPVSDFXJUIJOTVGmDJFOUDBQBDJUZBOEJNQSPQFSXPSLDBODBVTFFMFDUSJDTIPDLBOEmSF
6TFTQFDJmFEXJSFGPSFMFDUSJDBMXJSJOHGBTUFOUIFXJSJOHUPUIFUFSNJOBMTFDVSFMZBOEIPMEUIFDBCMFTFDVSFMZJO
PSEFSOPUUPBQQMZVOFYQFDUFETUSFTTPOUIFUFSNJOBM
-PPTFDPOOFDUJPOTPSIPMEDPVMESFTVMUJOBCOPSNBMIFBUHFOFSBUJPOPSmSF
"SSBOHFUIFFMFDUSJDBMXJSFTJOUIFDPOUSPMCPYQSPQFSMZUPQSFWFOUUIFNGSPNSJTJOH'JUUIFMJEPGUIFTFSWJDFT
QBOFMQSPQFSUZ
*NQSPQFSmUUJOHNBZDBVTFBCOPSNBMIFBUBOEmSF
$IFDLGPSSFGSJHFSBOUHBTMFBLBHFBGUFSJOTUBMMBUJPOJTDPNQMFUFE
*GUIFSFGSJHFSBOUHBTMFBLTJOUPUIFIPVTFBOEDPNFTJODPOUBDUXJUIBGBOIFBUFSBTUPWFPSBOPWFOUPYJDHBTJTQSPEVDFE
6TFUIFTQFDJmFEQJQFnBSFOVUBOEUPPMTGPS3"
6TJOHFYJTUJOHQBSUT3DPVMEDBVTFUIFVOJUGBJMVSFBOETFSJPVTBDDJEFOUEVFUPFYQMPTJPOPGUIFDPPMJOHDZDMF
5JHIUFOUIFnBSFOVUBDDPSEJOHUPUIFTQFDJmFENFUIPECZXJUIUPSRVFXSFODI
*GUIFnBSFOVUXFSFUJHIUFOFEXJUIFYDFTTUPSRVFJUDPVMEDBVTFCVSTUBOESFGSJHFSBOUMFBLBHFBGUFSBMPOHQFSJPE
%POPUQVUUIFESBJOBHFQJQFEJSFDUMZJOUPESBJOBHFDIBOOFMTXIFSFQPJTPOPVTHBTFTTVDIBTTVMmEFHBTDBOPDDVS
1PJTPOPVTHBTFTXJMMnPXJOUPUIFSPPNUISPVHIESBJOBHFQJQFBOETFSJPVTMZBGGFDUUIFVTFShTIFBMUIBOETBGFUZ5IJTDBOBMTP
DBVTFUIFDPSSPTJPOPGUIFJOEPPSVOJUBOEBSFTVMUBOUVOJUGBJMVSFPSSFGSJHFSBOUMFBL
$POOFDUUIFQJQFTGPSSFGSJHFSBUJPODJSDVJUTFDVSFMZJOJOTUBMMBUJPOXPSLCFGPSFDPNQSFTTPSJTPQFSBUFE
*GUIFDPNQSFTTPSJTPQFSBUFEXIFOUIFTFSWJDFWBMWFJTPQFOXJUIPVUDPOOFDUJOHUIFQJQFJUDPVMEDBVTFFYQMPTJPOBOEJOKVSJFTEVF
UPBCOPSNBMIJHIQSFTTVSFJOUIFTZTUFN
4UPQUIFDPNQSFTTPSCFGPSFSFNPWJOHUIFQJQFBGUFSTIVUUJOHUIFTFSWJDFWBMWFPOQVNQEPXOXPSL
*GUIFQJQFJTSFNPWFEXIFOUIFDPNQSFTTPSJTJOPQFSBUJPOXJUIUIFTFSWJDFWBMWFPQFOBJSXPVMECFNJYFEJOUIFSFGSJHFSBUJPODJSDVJU
BOEJUDPVMEDBVTFFYQMPTJPOBOEJOKVSJFTEVFUPBCOPSNBMIJHIQSFTTVSFJOUIFDPPMJOHDZDMF
0OMZVTFQSFTDSJCFEPQUJPOBMQBSUT5IFJOTUBMMBUJPONVTUCFDBSSJFEPVUCZUIFRVBMJmFEJOTUBMMFS
*GZPVJOTUBMMUIFTZTUFNCZZPVSTFMGJUDBODBVTFTFSJPVTUSPVCMFTVDIBTXBUFSMFBLTFMFDUSJDTIPDLTmSF
%POPUSFQBJSCZZPVSTFMG"OEDPOTVMUXJUIUIFEFBMFSBCPVUSFQBJS
*NQSPQFSSFQBJSNBZDBVTFXBUFSMFBLBHFFMFDUSJDTIPDLPSmSF
$POTVMUUIFEFBMFSPSBTQFDJBMJTUBCPVUSFNPWBMPGUIFBJSDPOEJUJPOFS
*NQSPQFSJOTUBMMBUJPONBZDBVTFXBUFSMFBLBHFFMFDUSJDTIPDLPSmSF
5VSOPGGUIFQPXFSTPVSDFEVSJOHTFSWJDJOHPSJOTQFDUJPOXPSL
*GUIFQPXFSJTTVQQMJFEEVSJOHTFSWJDJOHPSJOTQFDUJPOXPSLJUDPVMEDBVTFFMFDUSJDTIPDLBOEJOKVSZCZUIFPQFSBUJOHGBO
%POPUSVOUIFVOJUXIFOUIFQBOFMPSQSPUFDUJPOHVBSEBSFUBLFOPGG
5PVDIJOHUIFSPUBUJOHFRVJQNFOUIPUTVSGBDFPSIJHIWPMUBHFTFDUJPODPVMEDBVTFBOJOKVSZUPCFDBVHIUJOUIFNBDIJOFUPHFU
CVSOFEPSFMFDUSJDTIPDL
4IVUPGGUIFQPXFSCFGPSFFMFDUSJDBMXJSJOHXPSL
*UDPVMEDBVTFFMFDUSJDTIPDLVOJUGBJMVSFBOEJNQSPQFSSVOOJOH
1FSGPSNFBSUIXJSJOHTVSFMZ
%POPUDPOOFDUUIFFBSUIXJSJOHUPUIFHBTQJQFXBUFSQJQFMJHIUOJOHSPEBOEUFMFQIPOFFBSUIXJSJOH*NQSPQFSFBSUIDPVME
DBVTFVOJUGBJMVSFBOEFMFDUSJDTIPDLEVFUPBTIPSUDJSDVJU
&BSUIMFBLBHFCSFBLFSNVTUCFJOTUBMMFE
*GUIFFBSUIMFBLBHFCSFBLFSJTOPUJOTUBMMFEJUDBODBVTFFMFDUSJDTIPDLT
6TFUIFDJSDVJUCSFBLFSPGDPSSFDUDBQBDJUZ$JSDVJUCSFBLFSTIPVMECFUIFPOFUIBUEJTDPOOFDUBMM
QPMFTVOEFSPWFSDVSSFOU
6TJOHUIFJODPSSFDUPOFDPVMEDBVTFUIFTZTUFNGBJMVSFBOEmSF
%POPUVTFBOZNBUFSJBMTPUIFSUIBOBGVTFPGDPSSFDUDBQBDJUZXIFSFBGVTFTIPVMECFVTFE
$POOFDUJOHUIFDJSDVJUCZXJSFPSDPQQFSXJSFDPVMEDBVTFVOJUGBJMVSFBOEmSF
%POPUJOTUBMMUIFJOEPPSVOJUOFBSUIFMPDBUJPOXIFSFUIFSFJTQPTTJCJMJUZPGnBNNBCMFHBTMFBLBHFT
*GUIFHBTMFBLTBOEHBUIFSTBSPVOEUIFVOJUJUDPVMEDBVTFmSF
%POPUJOTUBMMBOEVTFUIFVOJUXIFSFDPSSPTJWFHBTTVDIBTTVMGVSPVTBDJEHBTFUDPSnBNNBCMFHBTTVDI
BTUIJOOFSQFUSPMFVNFUDNBZCFHFOFSBUFEPSBDDVNVMBUFEPSWPMBUJMFnBNNBCMFTVCTUBODFTBSFIBOEMFE
*UDPVMEDBVTFUIFDPSSPTJPOPGIFBUFYDIBOHFSCSFBLBHFPGQMBTUJDQBSUTFUD"OEJOnBNNBCMFHBTDPVMEDBVTFmSF
4FDVSFBTQBDFGPSJOTUBMMBUJPOJOTQFDUJPOBOENBJOUFOBODFTQFDJmFEJOUIFNBOVBM
*OTVGmDJFOUTQBDFDBOSFTVMUJOBDDJEFOUTVDIBTQFSTPOBMJOKVSZEVFUPGBMMJOHGSPNUIFJOTUBMMBUJPOQMBDF
%POPUVTFUIFJOEPPSVOJUBUUIFQMBDFXIFSFXBUFSTQMBTIFTTVDIBTMBVOESZ
*OEPPSVOJUJTOPUXBUFSQSPPG*UDPVMEDBVTFFMFDUSJDTIPDLBOEmSF
%POPUVTFUIFJOEPPSVOJUGPSBTQFDJBMQVSQPTFTVDIBTGPPETUPSBHFDPPMJOHGPSQSFDJTJPO
JOTUSVNFOUQSFTFSWBUJPOPGBOJNBMTQMBOUTBOEBXPSLPGBSU
*UDPVMEDBVTFUIFEBNBHFPGUIFJUFNT
%POPUJOTUBMMOPSVTFUIFTZTUFNOFBSFRVJQNFOUTXIJDIHFOFSBUFFMFDUSPNBHOFUJDXBWFPSIJHIIBSNPOJDT
&RVJQNFOUTMJLFJOWFSUFSFRVJQNFOUQSJWBUFQPXFSHFOFSBUPSIJHIGSFRVFODZNFEJDBMFRVJQNFOUPSUFMFDPNNVOJDBUJPO
FRVJQNFOUNJHIUJOnVFODFUIFBJSDPOEJUJPOFSBOEDBVTFBNBMGVODUJPOBOECSFBLEPXO0SUIFBJSDPOEJUJPOFSNJHIU
JOnVFODFNFEJDBMFRVJQNFOUTPSUFMFDPNNVOJDBUJPOFRVJQNFOUTBOEPCTUSVDUUIFJSNFEJDBMBDUJWJUZPSDBVTFKBNNJOH
%POPUJOTUBMMUIFSFNPUFDPOUSPMMFSBUUIFEJSFDUTVOMJHIU
*UDPVMEDBVTFCSFBLEPXOPSEFGPSNBUJPOPGUIFSFNPUFDPOUSPMMFS
%POPUJOTUBMMUIFJOEPPSVOJUBUUIFQMBDFMJTUFECFMPX
r 1MBDFTXIFSFnBNNBCMFHBTDPVMEMFBL
r 1MBDFTXIFSFDBSCPOmCFSNFUBMQPXEFSPSBOZQPXEFSJTnPBUFE
r
1MBDFXIFSFUIFTVCTUBODFTXIJDIBGGFDUUIFBJSDPOEJUJPOFSBSFHFOFSBUFE
TVDIBTTVMmEFHBTDIMPSJEFHBTBDJEBMLBMJPSBNNPOJDBUNPTQIFSFT
r 1MBDFTFYQPTFEUPPJMNJTUPSTUFBNEJSFDUMZ
r 0OWFIJDMFTBOETIJQT
r 1MBDFTXIFSFNBDIJOFSZXIJDIHFOFSBUFTIJHIIBSNPOJDTJTVTFE
%POPUJOTUBMMUIFJOEPPSVOJUJOUIFMPDBUJPOTMJTUFECFMPX#FTVSFUPJOTUBMMUIFJOEPPSVOJU
BDDPSEJOHUPUIFJOTUBMMBUJPONBOVBMGPSFBDINPEFMCFDBVTFFBDIJOEPPSVOJUIBTFBDIMJNJUBUJPO
r -PDBUJPOTXJUIBOZPCTUBDMFTXIJDIDBOQSFWFOUJOMFUBOEPVUMFUBJSPGUIFVOJU
r -PDBUJPOTXIFSFWJCSBUJPODBOCFBNQMJmFEEVFUPJOTVGmDJFOUTUSFOHUIPGTUSVDUVSF
r -PDBUJPOTXIFSFUIFJOGSBSFESFDFJWFSJTFYQPTFEUPUIFEJSFDUTVOMJHIUPSUIFTUSPOHMJHIUCFBNJODBTFPGUIF
JOGSBSFETQFDJmDBUJPOVOJU
r -PDBUJPOTXIFSFBOFRVJQNFOUBGGFDUFECZIJHIIBSNPOJDTJTQMBDFE57TFUPSSBEJPSFDFJWFSJTQMBDFEXJUIJON
r -PDBUJPOTXIFSFESBJOBHFDBOOPUSVOPGGTBGFMZ
*UDBOBGGFDUQFSGPSNBODFPSGVODUJPOBOEFUD
%POPUQVUBOZWBMVBCMFTXIJDIXJMMCSFBLEPXOCZHFUUJOHXFUVOEFSUIFBJSDPOEJUJPOFS
$POEFOTBUJPODPVMEESPQXIFOUIFSFMBUJWFIVNJEJUZJTIJHIFSUIBOPSESBJOQJQFJTDMPHHFEBOEJUEBNBHFTVTFSTCFMPOHJOHT
%POPUVTFUIFCBTFGSBNFGPSUIFPVUEPPSVOJUXIJDIJTDPSSPEFEPSEBNBHFEBGUFSBMPOHQFSJPEPGVTF
*UDPVMEDBVTFUIFVOJUGBMMJOHEPXOBOEJOKVSZ
1BZBUUFOUJPOOPUUPEBNBHFUIFESBJOQBOCZXFMETQVUUFSXIFOCSB[JOHXPSLJTEPOFOFBSUIFVOJU
*GTQVUUFSFOUFSFEJOUPUIFVOJUEVSJOHCSB[JOHXPSLJUDPVMEDBVTFEBNBHFQJOIPMFPGESBJOQBOBOEMFBLBHFPGXBUFS
5PBWPJEEBNBHJOHLFFQUIFJOEPPSVOJUQBDLFEPSDPWFSUIFJOEPPSVOJU
*OTUBMMUIFESBJOQJQFUPESBJOUIFXBUFSTVSFMZBDDPSEJOHUPUIFJOTUBMMBUJPONBOVBM
*NQSPQFSDPOOFDUJPOPGUIFESBJOQJQFNBZDBVTFESPQQJOHXBUFSJOUPSPPNBOEEBNBHJOHVTFSTCFMPOHJOHT
%POPUTIBSFUIFESBJOQJQFGPSJOEPPSVOJUBOE()1(BT)FBU1VNQTZTUFNPVUEPPSVOJU
5PYJDFYIBVTUHBTXPVMEnPXJOUPSPPNBOEJUNJHIUDBVTFTFSJPVTEBNBHFTPNFQPJTPOJOHPSEFmDJFODZPGPYZHFOUP
VTFSTIFBMUIBOETBGFUZ
#FTVSFUPQFSGPSNBJSUJHIUOFTTUFTUCZQSFTTVSJ[JOHXJUIOJUSPHFOHBTBGUFSDPNQMFUFESFGSJHFSBOUQJQJOHXPSL
*GUIFEFOTJUZPGSFGSJHFSBOUFYDFFETUIFMJNJUJOUIFFWFOUPGSFGSJHFSBOUMFBLBHFJOUIFTNBMMSPPNMBDLPGPYZHFODBO
PDDVSXIJDIDBODBVTFTFSJPVTBDDJEFOUT
'PSESBJOQJQFJOTUBMMBUJPOCFTVSFUPNBLFEFTDFOEJOHTMPQFPGHSFBUFSUIBOOPUUPNBLFUSBQT
BOEOPUUPNBLFBJSCMFFEJOH
$IFDLJGUIFESBJOBHFJTDPSSFDUMZEPOFEVSJOHDPNNJTTJPOJOHBOEFOTVSFUIFTQBDFGPSJOTQFDUJPOBOENBJOUFOBODF
&OTVSFUIFJOTVMBUJPOPOUIFQJQFTGPSSFGSJHFSBUJPODJSDVJUTPBTOPUUPDPOEFOTFXBUFS
*ODPNQMFUFJOTVMBUJPODPVMEDBVTFDPOEFOTBUJPOBOEJUXPVMEXFUDFJMJOHnPPSBOEBOZPUIFSWBMVBCMFT
%POPUJOTUBMMUIFPVUEPPSVOJUXIFSFJTMJLFMZUPCFBOFTUGPSJOTFDUTBOETNBMMBOJNBMT
*OTFDUTBOETNBMMBOJNBMTDPVMEDPNFJOUPUIFFMFDUSPOJDDPNQPOFOUTBOEDBVTFCSFBLEPXOBOEmSF*OTUSVDUUIFVTFSUP
LFFQUIFTVSSPVOEJOHTDMFBO
1BZFYUSBBUUFOUJPODBSSZJOHUIFVOJUCZIBOE
$BSSZUIFVOJUXJUIQFPQMFJGJUJTIFBWJFSUIBOLH%POPUVTFUIFQMBTUJDTUSBQTCVUUIFHSBCCJOHQMBDFNPWJOHUIFVOJU
CZIBOE6TFQSPUFDUJWFHMPWFTJOPSEFSUPBWPJEJOKVSZCZUIFBMVNJOVNmO
.BLFTVSFUPEJTQPTFPGUIFQBDLBHJOHNBUFSJBM
-FBWJOHUIFNBUFSJBMTNBZDBVTFJOKVSZBTNFUBMTMJLFOBJMBOEXPPETBSFVTFEJOUIFQBDLBHF
%POPUPQFSBUFUIFTZTUFNXJUIPVUUIFBJSmMUFS
*UNBZDBVTFUIFCSFBLEPXOPGUIFTZTUFNEVFUPDMPHHJOHPGUIFIFBUFYDIBOHFS
%POPUUPVDIBOZCVUUPOXJUIXFUIBOET
*UDPVMEDBVTFFMFDUSJDTIPDL
%POPUUPVDIUIFSFGSJHFSBOUQJQJOHXJUICBSFIBOETXIFOJOPQFSBUJPO
5IFQJQFEVSJOHPQFSBUJPOXPVMECFDPNFWFSZIPUPSDPMEBDDPSEJOHUPUIFPQFSBUJOHDPOEJUJPOBOEJUDPVMEDBVTFBCVSOPSGSPTUCJUF
%POPUDMFBOVQUIFBJSDPOEJUJPOFSXJUIXBUFS
*UDPVMEDBVTFFMFDUSJDTIPDL
%POPUUVSOPGGUIFQPXFSTPVSDFJNNFEJBUFMZBGUFSTUPQQJOHUIFPQFSBUJPO
#FTVSFUPXBJUGPSNPSFUIBONJOVUFT0UIFSXJTFJUDPVMEDBVTFXBUFSMFBLBHFPSCSFBLEPXO
%POPUDPOUSPMUIFPQFSBUJPOXJUIUIFDJSDVJUCSFBLFS
*UDPVMEDBVTFmSFPSXBUFSMFBLBHF*OBEEJUJPOUIFGBONBZTUBSUPQFSBUJPOVOFYQFDUFEMZBOEJUNBZDBVTFJOKVSZ
"MXBZTEPJUBDDPSEJOHUPUIFJOTUSVDUJPO
r 1MBDFTXIFSFDPTNFUJDTPSTQFDJBMTQSBZTBSF
GSFRVFOUMZVTFE
r )JHIMZTBMUFEBSFBTVDIBTCFBDI
r )FBWZTOPXBSFB
r 1MBDFTXIFSFUIFTZTUFNJTBGGFDUFECZ
TNPLFGSPNBDIJNOFZ
r "MUJUVEFPWFSN
PJA012D786
5IJTNBOVBMJTGPSUIFJOTUBMMBUJPOPGBOJOEPPSVOJU
'PSFMFDUSJDBMXJSJOHXPSL*OEPPSSFGFSUPUIFFMFDUSJDBMXJSJOHXPSLJOTUBMMBUJPONBOVBM'PSSFNPUF
DPOUSPMMFSJOTUBMMBUJPOSFGFSUPUIFJOTUBMMBUJPONBOVBMBUUBDIFEUPBSFNPUFDPOUSPMMFS'PSXJSFMFTT
LJUJOTUBMMBUJPOSFGFSUPUIFJOTUBMMBUJPONBOVBMBUUBDIFEUPBXJSFMFTTLJU'PSFMFDUSJDBMXJSJOHXPSL
0VUEPPSBOESFGSJHFSBOUQJQFXPSLJOTUBMMBUJPOGPSPVUEPPSVOJUSFGFSUPUIFJOTUBMMBUJPONBOVBM
BUUBDIFEUPBOPVUEPPSVOJU
5IJTVOJUNVTUBMXBZTCFVTFEXJUIUIFQBOFM
4"'&5:13&$"65*0/4
8"3/*/(
$"65*0/
3FBEUIFi4"'&5:13&$"65*0/4wDBSFGVMMZmSTUPGBMMBOEUIFOTUSJDUMZGPMMPXJUEVSJOHUIFJOTUBMMBUJPOXPSL
JOPSEFSUPQSPUFDUZPVSTFMG
5IFQSFDBVUJPOBSZJUFNTNFOUJPOFECFMPXBSFEJTUJOHVJTIFEJOUPUXPMFWFMTBOE
8SPOHJOTUBMMBUJPOXPVMEDBVTFTFSJPVTDPOTFRVFODFTTVDIBTJOKVSJFTPSEFBUI
8SPOHJOTUBMMBUJPONJHIUDBVTFTFSJPVTDPOTFRVFODFTEFQFOEJOHPODJSDVNTUBODFT
#PUINFOUJPOTUIFJNQPSUBOUJUFNTUPQSPUFDUZPVSIFBMUIBOETBGFUZTPTUSJDUMZGPMMPXUIFNCZBOZNFBOT
5IFNFBOJOHTPGi.BSLTwVTFEIFSFBSFBTTIPXOBTGPMMPXT

"GUFSDPNQMFUJOHUIFJOTUBMMBUJPOEPDPNNJTTJPOJOHUPDPOmSNUIFSFBSFOPBCOPSNBMJUJFTBOEFYQMBJOUPUIF
DVTUPNFSTBCPVUi4"'&5:13&$"65*0/4wDPSSFDUPQFSBUJPONFUIPEBOENBJOUFOBODFNFUIPEBJSmMUFS
DMFBOJOHPQFSBUJPONFUIPEBOEUFNQFSBUVSFTFUUJOHNFUIPEXJUIVTFSTNBOVBMPGUIJTVOJU
"TLZPVSDVTUPNFSTUPLFFQUIJTJOTUBMMBUJPONBOVBMUPHFUIFSXJUIUIFVTFSTNBOVBM"MTPBTLUIFNUPIBOE
PWFSUIFVTFSTNBOVBMUPUIFOFXVTFSXIFOUIFPXOFSJTDIBOHFE
$"65*0/
/FWFSEPJUVOEFSBOZDJSDVNTUBODFT
$"65*0/
*OTUBMMBUJPOTIPVMECFQFSGPSNFECZUIFTQFDJBMJTU
*GZPVJOTUBMMUIFVOJUCZZPVSTFMGJUNBZMFBEUPTFSJPVTUSPVCMFTVDIBTXBUFSMFBLBHFFMFDUSJDTIPDLmSFBOEJOKVSZEVFUPPWFSUVSOPGUIFVOJU
*OTUBMMUIFTZTUFNDPSSFDUMZBDDPSEJOHUPUIFTFJOTUBMMBUJPONBOVBMT
*NQSPQFSJOTUBMMBUJPONBZDBVTFFYQMPTJPOJOKVSZXBUFSMFBLBHFFMFDUSJDTIPDLBOEmSF
8IFOJOTUBMMJOHJOTNBMMSPPNTUBLFQSFWFOUJPONFBTVSFTOPUUPFYDFFEUIFEFOTJUZMJNJUPGSFGSJHFSBOUJOUIF
FWFOUPGMFBLBHFSFGFSSFECZUIFGPSNVMBBDDPSEBODF XJUI *40
*G UIF EFOTJUZ PGSFGSJHFSBOUFYDFFETUIFMJNJUQMFBTFDPOTVMUUIFEFBMFSBOEJOTUBMMUIFWFOUJMBUJPOTZTUFNPUIFSXJTFMBDLPG
PYZHFODBOPDDVSXIJDIDBODBVTFTFSJPVTBDDJEFOUT
6TFUIFHFOVJOFBDDFTTPSJFTBOEUIFTQFDJmFEQBSUTGPSJOTUBMMBUJPO
*GQBSUTVOTQFDJmFECZPVSDPNQBOZBSFVTFEJUDPVMEDBVTFXBUFSMFBLBHFFMFDUSJDTIPDLmSFBOEJOKVSZEVFUPPWFSUVSOPGUIFVOJU
7FOUJMBUFUIFXPSLJOHBSFBXFMMJODBTFUIFSFGSJHFSBOUMFBLTEVSJOHJOTUBMMBUJPO
*GUIFSFGSJHFSBOUDPOUBDUTUIFmSFUPYJDHBTJTQSPEVDFE
*OTUBMMUIFVOJUJOBMPDBUJPOUIBUDBOIPMEIFBWZXFJHIU
*NQSPQFSJOTUBMMBUJPONBZDBVTFUIFVOJUUPGBMMMFBEJOHUPBDDJEFOUT
*OTUBMMUIFVOJUQSPQFSMZJOPSEFSUPCFBCMFUPXJUITUBOETUSPOHXJOETTVDIBTUZQIPPOTBOEFBSUIRVBLFT
*NQSPQFSJOTUBMMBUJPONBZDBVTFUIFVOJUUPGBMMMFBEJOHUPBDDJEFOUT
%POPUNJYBJSJOUPUIFDPPMJOHDZDMFPOJOTUBMMBUJPOPSSFNPWBMPGUIFBJSDPOEJUJPOFS
*GBJSJTNJYFEJOUIFQSFTTVSFJOUIFDPPMJOHDZDMFXJMMSJTFBCOPSNBMMZBOENBZDBVTFFYQMPTJPOBOEJOKVSJFT
#FTVSFUPIBWFUIFFMFDUSJDBMXJSJOHXPSLEPOFCZRVBMJmFEFMFDUSJDBMJOTUBMMFSBOEVTFFYDMVTJWFDJSDVJU
1PXFSTPVSDFXJUIJOTVGmDJFOUDBQBDJUZBOEJNQSPQFSXPSLDBODBVTFFMFDUSJDTIPDLBOEmSF
6TFTQFDJmFEXJSFGPSFMFDUSJDBMXJSJOHGBTUFOUIFXJSJOHUPUIFUFSNJOBMTFDVSFMZBOEIPMEUIFDBCMFTFDVSFMZJO
PSEFSOPUUPBQQMZVOFYQFDUFETUSFTTPOUIFUFSNJOBM
-PPTFDPOOFDUJPOTPSIPMEDPVMESFTVMUJOBCOPSNBMIFBUHFOFSBUJPOPSmSF
"SSBOHFUIFFMFDUSJDBMXJSFTJOUIFDPOUSPMCPYQSPQFSMZUPQSFWFOUUIFNGSPNSJTJOH'JUUIFMJEPGUIFTFSWJDFT
QBOFMQSPQFSUZ
*NQSPQFSmUUJOHNBZDBVTFBCOPSNBMIFBUBOEmSF
$IFDLGPSSFGSJHFSBOUHBTMFBLBHFBGUFSJOTUBMMBUJPOJTDPNQMFUFE
*GUIFSFGSJHFSBOUHBTMFBLTJOUPUIFIPVTFBOEDPNFTJODPOUBDUXJUIBGBOIFBUFSBTUPWFPSBOPWFOUPYJDHBTJTQSPEVDFE
6TFUIFTQFDJmFEQJQFnBSFOVUBOEUPPMTGPS3"
6TJOHFYJTUJOHQBSUT3DPVMEDBVTFUIFVOJUGBJMVSFBOETFSJPVTBDDJEFOUEVFUPFYQMPTJPOPGUIFDPPMJOHDZDMF
5JHIUFOUIFnBSFOVUBDDPSEJOHUPUIFTQFDJmFENFUIPECZXJUIUPSRVFXSFODI
*GUIFnBSFOVUXFSFUJHIUFOFEXJUIFYDFTTUPSRVFJUDPVMEDBVTFCVSTUBOESFGSJHFSBOUMFBLBHFBGUFSBMPOHQFSJPE
%POPUQVUUIFESBJOBHFQJQFEJSFDUMZJOUPESBJOBHFDIBOOFMTXIFSFQPJTPOPVTHBTFTTVDIBTTVMmEFHBTDBOPDDVS
1PJTPOPVTHBTFTXJMMnPXJOUPUIFSPPNUISPVHIESBJOBHFQJQFBOETFSJPVTMZBGGFDUUIFVTFShTIFBMUIBOETBGFUZ5IJTDBOBMTP
DBVTFUIFDPSSPTJPOPGUIFJOEPPSVOJUBOEBSFTVMUBOUVOJUGBJMVSFPSSFGSJHFSBOUMFBL
$POOFDUUIFQJQFTGPSSFGSJHFSBUJPODJSDVJUTFDVSFMZJOJOTUBMMBUJPOXPSLCFGPSFDPNQSFTTPSJTPQFSBUFE
*GUIFDPNQSFTTPSJTPQFSBUFEXIFOUIFTFSWJDFWBMWFJTPQFOXJUIPVUDPOOFDUJOHUIFQJQFJUDPVMEDBVTFFYQMPTJPOBOEJOKVSJFTEVF
UPBCOPSNBMIJHIQSFTTVSFJOUIFTZTUFN
4UPQUIFDPNQSFTTPSCFGPSFSFNPWJOHUIFQJQFBGUFSTIVUUJOHUIFTFSWJDFWBMWFPOQVNQEPXOXPSL
*GUIFQJQFJTSFNPWFEXIFOUIFDPNQSFTTPSJTJOPQFSBUJPOXJUIUIFTFSWJDFWBMWFPQFOBJSXPVMECFNJYFEJOUIFSFGSJHFSBUJPODJSDVJU
BOEJUDPVMEDBVTFFYQMPTJPOBOEJOKVSJFTEVFUPBCOPSNBMIJHIQSFTTVSFJOUIFDPPMJOHDZDMF
0OMZVTFQSFTDSJCFEPQUJPOBMQBSUT5IFJOTUBMMBUJPONVTUCFDBSSJFEPVUCZUIFRVBMJmFEJOTUBMMFS
*GZPVJOTUBMMUIFTZTUFNCZZPVSTFMGJUDBODBVTFTFSJPVTUSPVCMFTVDIBTXBUFSMFBLTFMFDUSJDTIPDLTmSF
%POPUSFQBJSCZZPVSTFMG"OEDPOTVMUXJUIUIFEFBMFSBCPVUSFQBJS
*NQSPQFSSFQBJSNBZDBVTFXBUFSMFBLBHFFMFDUSJDTIPDLPSmSF
$POTVMUUIFEFBMFSPSBTQFDJBMJTUBCPVUSFNPWBMPGUIFBJSDPOEJUJPOFS
*NQSPQFSJOTUBMMBUJPONBZDBVTFXBUFSMFBLBHFFMFDUSJDTIPDLPSmSF
5VSOPGGUIFQPXFSTPVSDFEVSJOHTFSWJDJOHPSJOTQFDUJPOXPSL
*GUIFQPXFSJTTVQQMJFEEVSJOHTFSWJDJOHPSJOTQFDUJPOXPSLJUDPVMEDBVTFFMFDUSJDTIPDLBOEJOKVSZCZUIFPQFSBUJOHGBO
%POPUSVOUIFVOJUXIFOUIFQBOFMPSQSPUFDUJPOHVBSEBSFUBLFOPGG
5PVDIJOHUIFSPUBUJOHFRVJQNFOUIPUTVSGBDFPSIJHIWPMUBHFTFDUJPODPVMEDBVTFBOJOKVSZUPCFDBVHIUJOUIFNBDIJOFUPHFU
CVSOFEPSFMFDUSJDTIPDL
4IVUPGGUIFQPXFSCFGPSFFMFDUSJDBMXJSJOHXPSL
*UDPVMEDBVTFFMFDUSJDTIPDLVOJUGBJMVSFBOEJNQSPQFSSVOOJOH
1FSGPSNFBSUIXJSJOHTVSFMZ
%POPUDPOOFDUUIFFBSUIXJSJOHUPUIFHBTQJQFXBUFSQJQFMJHIUOJOHSPEBOEUFMFQIPOFFBSUIXJSJOH*NQSPQFSFBSUIDPVME
DBVTFVOJUGBJMVSFBOEFMFDUSJDTIPDLEVFUPBTIPSUDJSDVJU
&BSUIMFBLBHFCSFBLFSNVTUCFJOTUBMMFE
*GUIFFBSUIMFBLBHFCSFBLFSJTOPUJOTUBMMFEJUDBODBVTFFMFDUSJDTIPDLT
6TFUIFDJSDVJUCSFBLFSPGDPSSFDUDBQBDJUZ$JSDVJUCSFBLFSTIPVMECFUIFPOFUIBUEJTDPOOFDUBMM
QPMFTVOEFSPWFSDVSSFOU
6TJOHUIFJODPSSFDUPOFDPVMEDBVTFUIFTZTUFNGBJMVSFBOEmSF
%POPUVTFBOZNBUFSJBMTPUIFSUIBOBGVTFPGDPSSFDUDBQBDJUZXIFSFBGVTFTIPVMECFVTFE
$POOFDUJOHUIFDJSDVJUCZXJSFPSDPQQFSXJSFDPVMEDBVTFVOJUGBJMVSFBOEmSF
%POPUJOTUBMMUIFJOEPPSVOJUOFBSUIFMPDBUJPOXIFSFUIFSFJTQPTTJCJMJUZPGnBNNBCMFHBTMFBLBHFT
*GUIFHBTMFBLTBOEHBUIFSTBSPVOEUIFVOJUJUDPVMEDBVTFmSF
%POPUJOTUBMMBOEVTFUIFVOJUXIFSFDPSSPTJWFHBTTVDIBTTVMGVSPVTBDJEHBTFUDPSnBNNBCMFHBTTVDI
BTUIJOOFSQFUSPMFVNFUDNBZCFHFOFSBUFEPSBDDVNVMBUFEPSWPMBUJMFnBNNBCMFTVCTUBODFTBSFIBOEMFE
*UDPVMEDBVTFUIFDPSSPTJPOPGIFBUFYDIBOHFSCSFBLBHFPGQMBTUJDQBSUTFUD"OEJOnBNNBCMFHBTDPVMEDBVTFmSF
4FDVSFBTQBDFGPSJOTUBMMBUJPOJOTQFDUJPOBOENBJOUFOBODFTQFDJmFEJOUIFNBOVBM
*OTVGmDJFOUTQBDFDBOSFTVMUJOBDDJEFOUTVDIBTQFSTPOBMJOKVSZEVFUPGBMMJOHGSPNUIFJOTUBMMBUJPOQMBDF
%POPUVTFUIFJOEPPSVOJUBUUIFQMBDFXIFSFXBUFSTQMBTIFTTVDIBTMBVOESZ
*OEPPSVOJUJTOPUXBUFSQSPPG*UDPVMEDBVTFFMFDUSJDTIPDLBOEmSF
%POPUVTFUIFJOEPPSVOJUGPSBTQFDJBMQVSQPTFTVDIBTGPPETUPSBHFDPPMJOHGPSQSFDJTJPO
JOTUSVNFOUQSFTFSWBUJPOPGBOJNBMTQMBOUTBOEBXPSLPGBSU
*UDPVMEDBVTFUIFEBNBHFPGUIFJUFNT
%POPUJOTUBMMOPSVTFUIFTZTUFNOFBSFRVJQNFOUTXIJDIHFOFSBUFFMFDUSPNBHOFUJDXBWFPSIJHIIBSNPOJDT
&RVJQNFOUTMJLFJOWFSUFSFRVJQNFOUQSJWBUFQPXFSHFOFSBUPSIJHIGSFRVFODZNFEJDBMFRVJQNFOUPSUFMFDPNNVOJDBUJPO
FRVJQNFOUNJHIUJOnVFODFUIFBJSDPOEJUJPOFSBOEDBVTFBNBMGVODUJPOBOECSFBLEPXO0SUIFBJSDPOEJUJPOFSNJHIU
JOnVFODFNFEJDBMFRVJQNFOUTPSUFMFDPNNVOJDBUJPOFRVJQNFOUTBOEPCTUSVDUUIFJSNFEJDBMBDUJWJUZPSDBVTFKBNNJOH
%POPUJOTUBMMUIFSFNPUFDPOUSPMMFSBUUIFEJSFDUTVOMJHIU
*UDPVMEDBVTFCSFBLEPXOPSEFGPSNBUJPOPGUIFSFNPUFDPOUSPMMFS
%POPUJOTUBMMUIFJOEPPSVOJUBUUIFQMBDFMJTUFECFMPX
r 1MBDFTXIFSFnBNNBCMFHBTDPVMEMFBL
r 1MBDFTXIFSFDBSCPOmCFSNFUBMQPXEFSPSBOZQPXEFSJTnPBUFE
r
1MBDFXIFSFUIFTVCTUBODFTXIJDIBGGFDUUIFBJSDPOEJUJPOFSBSFHFOFSBUFE
TVDIBTTVMmEFHBTDIMPSJEFHBTBDJEBMLBMJPSBNNPOJDBUNPTQIFSFT
r 1MBDFTFYQPTFEUPPJMNJTUPSTUFBNEJSFDUMZ
r 0OWFIJDMFTBOETIJQT
r 1MBDFTXIFSFNBDIJOFSZXIJDIHFOFSBUFTIJHIIBSNPOJDTJTVTFE
%POPUJOTUBMMUIFJOEPPSVOJUJOUIFMPDBUJPOTMJTUFECFMPX#FTVSFUPJOTUBMMUIFJOEPPSVOJU
BDDPSEJOHUPUIFJOTUBMMBUJPONBOVBMGPSFBDINPEFMCFDBVTFFBDIJOEPPSVOJUIBTFBDIMJNJUBUJPO
r -PDBUJPOTXJUIBOZPCTUBDMFTXIJDIDBOQSFWFOUJOMFUBOEPVUMFUBJSPGUIFVOJU
r -PDBUJPOTXIFSFWJCSBUJPODBOCFBNQMJmFEEVFUPJOTVGmDJFOUTUSFOHUIPGTUSVDUVSF
r -PDBUJPOTXIFSFUIFJOGSBSFESFDFJWFSJTFYQPTFEUPUIFEJSFDUTVOMJHIUPSUIFTUSPOHMJHIUCFBNJODBTFPGUIF
JOGSBSFETQFDJmDBUJPOVOJU
r -PDBUJPOTXIFSFBOFRVJQNFOUBGGFDUFECZIJHIIBSNPOJDTJTQMBDFE57TFUPSSBEJPSFDFJWFSJTQMBDFEXJUIJON
r -PDBUJPOTXIFSFESBJOBHFDBOOPUSVOPGGTBGFMZ
*UDBOBGGFDUQFSGPSNBODFPSGVODUJPOBOEFUD
%POPUQVUBOZWBMVBCMFTXIJDIXJMMCSFBLEPXOCZHFUUJOHXFUVOEFSUIFBJSDPOEJUJPOFS
$POEFOTBUJPODPVMEESPQXIFOUIFSFMBUJWFIVNJEJUZJTIJHIFSUIBOPSESBJOQJQFJTDMPHHFEBOEJUEBNBHFTVTFSTCFMPOHJOHT
%POPUVTFUIFCBTFGSBNFGPSUIFPVUEPPSVOJUXIJDIJTDPSSPEFEPSEBNBHFEBGUFSBMPOHQFSJPEPGVTF
*UDPVMEDBVTFUIFVOJUGBMMJOHEPXOBOEJOKVSZ
1BZBUUFOUJPOOPUUPEBNBHFUIFESBJOQBOCZXFMETQVUUFSXIFOCSB[JOHXPSLJTEPOFOFBSUIFVOJU
*GTQVUUFSFOUFSFEJOUPUIFVOJUEVSJOHCSB[JOHXPSLJUDPVMEDBVTFEBNBHFQJOIPMFPGESBJOQBOBOEMFBLBHFPGXBUFS
5PBWPJEEBNBHJOHLFFQUIFJOEPPSVOJUQBDLFEPSDPWFSUIFJOEPPSVOJU
*OTUBMMUIFESBJOQJQFUPESBJOUIFXBUFSTVSFMZBDDPSEJOHUPUIFJOTUBMMBUJPONBOVBM
*NQSPQFSDPOOFDUJPOPGUIFESBJOQJQFNBZDBVTFESPQQJOHXBUFSJOUPSPPNBOEEBNBHJOHVTFSTCFMPOHJOHT
%POPUTIBSFUIFESBJOQJQFGPSJOEPPSVOJUBOE()1(BT)FBU1VNQTZTUFNPVUEPPSVOJU
5PYJDFYIBVTUHBTXPVMEnPXJOUPSPPNBOEJUNJHIUDBVTFTFSJPVTEBNBHFTPNFQPJTPOJOHPSEFmDJFODZPGPYZHFOUP
VTFSTIFBMUIBOETBGFUZ
#FTVSFUPQFSGPSNBJSUJHIUOFTTUFTUCZQSFTTVSJ[JOHXJUIOJUSPHFOHBTBGUFSDPNQMFUFESFGSJHFSBOUQJQJOHXPSL
*GUIFEFOTJUZPGSFGSJHFSBOUFYDFFETUIFMJNJUJOUIFFWFOUPGSFGSJHFSBOUMFBLBHFJOUIFTNBMMSPPNMBDLPGPYZHFODBO
PDDVSXIJDIDBODBVTFTFSJPVTBDDJEFOUT
'PSESBJOQJQFJOTUBMMBUJPOCFTVSFUPNBLFEFTDFOEJOHTMPQFPGHSFBUFSUIBOOPUUPNBLFUSBQT
BOEOPUUPNBLFBJSCMFFEJOH
$IFDLJGUIFESBJOBHFJTDPSSFDUMZEPOFEVSJOHDPNNJTTJPOJOHBOEFOTVSFUIFTQBDFGPSJOTQFDUJPOBOENBJOUFOBODF
&OTVSFUIFJOTVMBUJPOPOUIFQJQFTGPSSFGSJHFSBUJPODJSDVJUTPBTOPUUPDPOEFOTFXBUFS
*ODPNQMFUFJOTVMBUJPODPVMEDBVTFDPOEFOTBUJPOBOEJUXPVMEXFUDFJMJOHnPPSBOEBOZPUIFSWBMVBCMFT
%POPUJOTUBMMUIFPVUEPPSVOJUXIFSFJTMJLFMZUPCFBOFTUGPSJOTFDUTBOETNBMMBOJNBMT
*OTFDUTBOETNBMMBOJNBMTDPVMEDPNFJOUPUIFFMFDUSPOJDDPNQPOFOUTBOEDBVTFCSFBLEPXOBOEmSF*OTUSVDUUIFVTFSUP
LFFQUIFTVSSPVOEJOHTDMFBO
1BZFYUSBBUUFOUJPODBSSZJOHUIFVOJUCZIBOE
$BSSZUIFVOJUXJUIQFPQMFJGJUJTIFBWJFSUIBOLH%POPUVTFUIFQMBTUJDTUSBQTCVUUIFHSBCCJOHQMBDFNPWJOHUIFVOJU
CZIBOE6TFQSPUFDUJWFHMPWFTJOPSEFSUPBWPJEJOKVSZCZUIFBMVNJOVNmO
.BLFTVSFUPEJTQPTFPGUIFQBDLBHJOHNBUFSJBM
-FBWJOHUIFNBUFSJBMTNBZDBVTFJOKVSZBTNFUBMTMJLFOBJMBOEXPPETBSFVTFEJOUIFQBDLBHF
%POPUPQFSBUFUIFTZTUFNXJUIPVUUIFBJSmMUFS
*UNBZDBVTFUIFCSFBLEPXOPGUIFTZTUFNEVFUPDMPHHJOHPGUIFIFBUFYDIBOHFS
%POPUUPVDIBOZCVUUPOXJUIXFUIBOET
*UDPVMEDBVTFFMFDUSJDTIPDL
%POPUUPVDIUIFSFGSJHFSBOUQJQJOHXJUICBSFIBOETXIFOJOPQFSBUJPO
5IFQJQFEVSJOHPQFSBUJPOXPVMECFDPNFWFSZIPUPSDPMEBDDPSEJOHUPUIFPQFSBUJOHDPOEJUJPOBOEJUDPVMEDBVTFBCVSOPSGSPTUCJUF
%POPUDMFBOVQUIFBJSDPOEJUJPOFSXJUIXBUFS
*UDPVMEDBVTFFMFDUSJDTIPDL
%POPUUVSOPGGUIFQPXFSTPVSDFJNNFEJBUFMZBGUFSTUPQQJOHUIFPQFSBUJPO
#FTVSFUPXBJUGPSNPSFUIBONJOVUFT0UIFSXJTFJUDPVMEDBVTFXBUFSMFBLBHFPSCSFBLEPXO
%POPUDPOUSPMUIFPQFSBUJPOXJUIUIFDJSDVJUCSFBLFS
*UDPVMEDBVTFmSFPSXBUFSMFBLBHF*OBEEJUJPOUIFGBONBZTUBSUPQFSBUJPOVOFYQFDUFEMZBOEJUNBZDBVTFJOKVSZ
"MXBZTEPJUBDDPSEJOHUPUIFJOTUSVDUJPO
r 1MBDFTXIFSFDPTNFUJDTPSTQFDJBMTQSBZTBSF
GSFRVFOUMZVTFE
r )JHIMZTBMUFEBSFBTVDIBTCFBDI
r )FBWZTOPXBSFB
r 1MBDFTXIFSFUIFTZTUFNJTBGGFDUFECZ
TNPLFGSPNBDIJNOFZ
r "MUJUVEFPWFSN
PJA012D786

Table of Contents

Related product manuals