EasyManua.ls Logo

Mitsubishi SCM60ZD-S - Page 23

Mitsubishi SCM60ZD-S
40 pages
Print Icon
To Next Page IconTo Next Page
To Next Page IconTo Next Page
To Previous Page IconTo Previous Page
To Previous Page IconTo Previous Page
Loading...
-
20
-
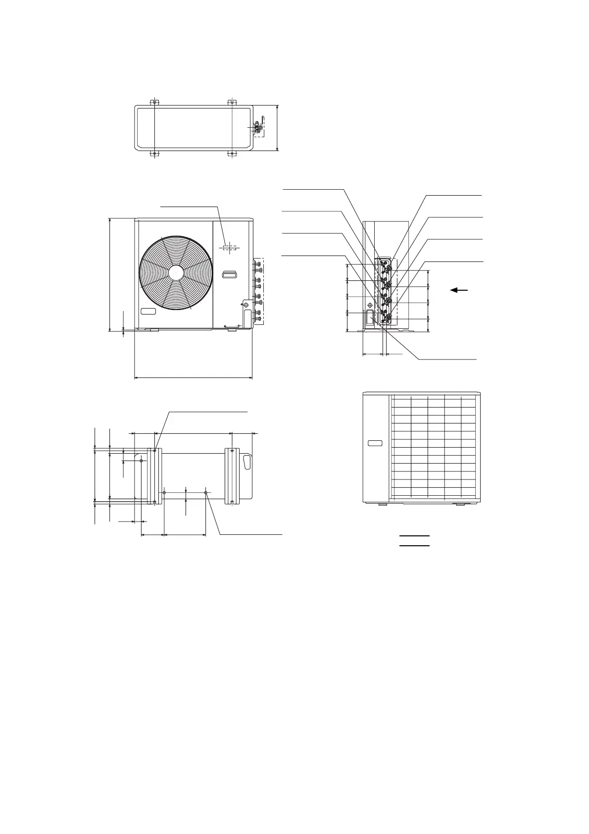
Model SCM80ZD-S
Terminal block
Holes for drain
(ø9.52 x 3pcs.)
Holes for anchor bolt
(M10 x 4pcs.)
Opening for
electric wiring
Service valve
(Gas ø9.52)
Service valve
(Gas ø9.52)
Service valve
(Gas ø9.52)
Service valve
(Gas ø9.52)
Service valve
(Liquid ø6.35)
Service valve
(Liquid ø6.35)
Service valve
(Liquid ø6.35)
Service valve
(Liquid ø6.35)
150 580 150
47
310222
40
40
20
380
340
55
40
20
145.2
26
138.9 120.1120.1 120.1
120.1120.1120.193.9
880
10
845
340
VIEW A
A
Unit : mm

Related product manuals