EasyManua.ls Logo

Mitsubishi SRC208HENF-L

Mitsubishi SRC208HENF-L
68 pages
To Next Page IconTo Next Page
To Next Page IconTo Next Page
To Previous Page IconTo Previous Page
To Previous Page IconTo Previous Page
Loading...
1-27
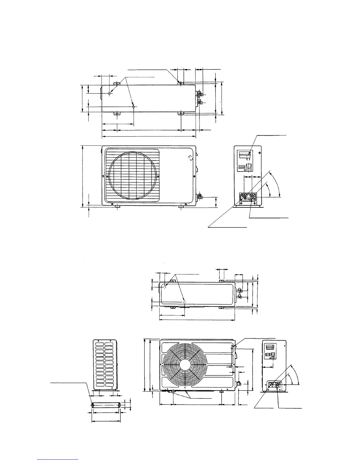
(2) Outdoor unit
Model SRC208 H(C) ENF-L
Models SRC 288, 328, 408 -HENF -CENF, 258 CENF
60
250
120
510
120 30
65 78
45˚
45˚
750
Drain holes
Terminal block
Unit: mm
MAX 61
Service valve (Gas)
Flare fitting
Ø
9.52 (3/8˝)
Service
valve (Liquid)
Flare fitting
Ø
6.35 (1/4˝)
Oval holes (4
16x12)
50
68
14
237
265
14
44
220
492
80
15
300
1414
272
58 44
142.5
142.5
510
32
115
40
33
265
795
50
45˚
45˚
Drain holes
Drain holes
Terminal block
Unit: mm
MAX 80
Service
valve (Liquid)
Service
valve (Gas)
55
22
14
255
272
5844
23
9365
14
413
50
542
539
15
65
16x12 (Oval holes)
for unit fixing
2 places
Flare fitting
Ø
6.35 (1/4˝)
Flare fitting
28:
Ø
9.52 (3/8˝)
32, 40,41:
Ø
12.7 (1/2˝)

Related product manuals