EasyManua.ls Logo

Mitsubishi SRC328CENF-L - Page 50

Mitsubishi SRC328CENF-L
68 pages
Print Icon
To Next Page IconTo Next Page
To Next Page IconTo Next Page
To Previous Page IconTo Previous Page
To Previous Page IconTo Previous Page
Loading...
1-50
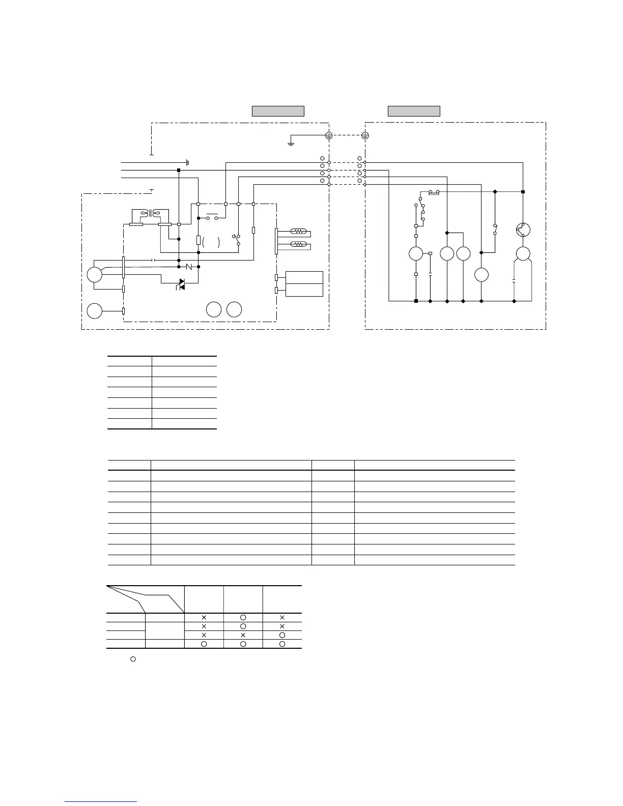
Model SRK408HENF-L3
Color symbol
BK Black
BL Blue
BR Brown
RD Red
OR Orange
WH White
Y/GN Yellow/Green
Meaning of marks
Symbol Parts name Symbol Parts name
Cc Capacitor for CM Th1,2 Thermistor
CFI Capacitor for FMI Tr Transformer
CFO Capacitor for FMo ZNR Varistor
CM Compressor motor 20S 4 way valve, coil
F Fuse 51C Motor protector for CM
FMI Fan motor (Indoor unit) 52C Magnetic conductor for CM
FMO Fan motor (Outdoor unit) 52X4,5,6 Auxiliary relay
LM Louver motor 63H High pressure switch
PC Photo coupler 23DH Defrost thermostat
Notes (1) ; denotes magnetized relay × : denotes demagnetized relay
(2) Th
1 is room temperature thermistor. Th2 (the heat exchanger thermistor) is the hot start, hot keep, and frost prevention thermistor.
(for details, refer to pages 19,20,22)
(3) Preset values:
23DH (defroster stop thermostat): opens at over 14˚C
63H (overload protection high pressure switch during heating): closes at 2.02(20.5) / opens at 2.41(24.5) [MPa(kgf/cm
2
)]
Table of relay operations
52C
F
250V
3.15A
52X
4
FM
I
LM
52X6
52X520S
FMo
CM
Power source
1 Phase 220/240V 50Hz
Y/GN
Y/GN
BL
BR
BR
WH
RD
CNC
Wireless
R-Amp
Display
1
5
3
CNB
Tr
CFI
Printed circuit board
ZNR
OR
WH
BK
CNU
CNE CND CNG
BKBK
BK
BK BK
BK
WHWH
WH OR
WH BL
BK
WH
WH
RD RD RD
RD
CNWCNM
Sh1
52C3 52C4 20S 23D
Th1
Th2
BK
T2
63H
6
42
2
6
BK
Sh2
OR
CFo
7
8
7
BK
Cc
SR
C
51C23D
H
2
1
3
Sh1
8
RD
52X
5
52X
6
T1
PC
52C
52X
4
1
WH
2
OR
3
RD
BK
BK
BK
BK
WH
BL
RD
4
1
2
3
4
Indoor unit Outdoor unit
Relay
symbol
Control
part
Operation
52X
4 20S
Cooling Heating Defrost
52X5
FMO
52X6
52C CM

Related product manuals