EasyManua.ls Logo

Mitsubishi SRC328HENF-L2 - Page 32

Mitsubishi SRC328HENF-L2
68 pages
To Next Page IconTo Next Page
To Next Page IconTo Next Page
To Previous Page IconTo Previous Page
To Previous Page IconTo Previous Page
Loading...
1-32
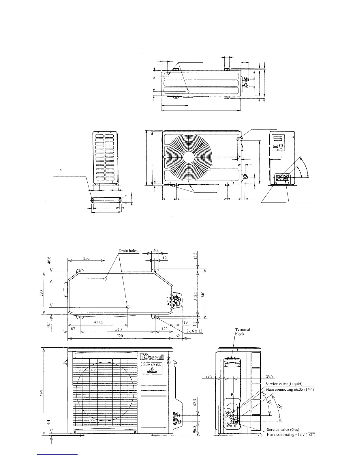
Model SRC35GZ-L1
50
55
Drain holes MAX.80
265
795
58
65
255
272
22
14
23
14
93
44
142.5 510 33142.5
40
32
115
45°
45°
Service
Valve
(Liquid)
Flare connecting
Ø
6.35 (1/4¨)
Service
Valve (Gas)
Flare connecting
Ø
12.7 (1/2¨)
Terminal block
Drain holes
542
539
413
65
15
300
27214
58 44
16 12 (Oval holes)
for unit fixing
2 places
14
50
Unit : mm
Model SRC502Z-L
Unit: mm

Related product manuals