EasyManua.ls Logo

Mitsubishi SRC502Z-L - Electrical Data; Electrical Wiring Diagrams

Mitsubishi SRC502Z-L
68 pages
Print Icon
To Next Page IconTo Next Page
To Next Page IconTo Next Page
To Previous Page IconTo Previous Page
To Previous Page IconTo Previous Page
Loading...
1-41
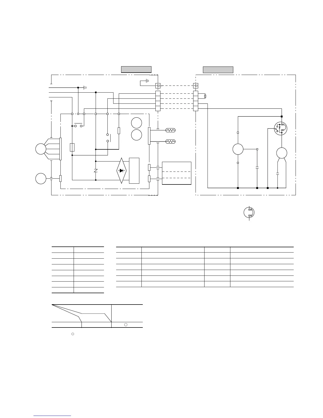
Notes (1) : denotes magentized relay ×: denotes demagnetized relay
(2) Th
1
is room temperature thermistor. Th
2
(the heat exchanger thermistor) is frost prevention thermistor.
Meaning of marks
Symbol Parts name Symbol Parts name
C
C
Capacitor for CM LM Louver motor
CF
O
Capacitor for FM
O
Th
1
,
2
Thermistor
CM Compressor motor ZNR Varistor
F Fuse 51C Motor protector for CM
FM
I
Fan motor (Indoor unit) 52C Magnetic contactor for CM
FM
O
Fan motor (Outdoor unit)
Table of relay operations
Operation
Cooling
Relay symbol Control part
52C CM
Color symbol
BK Black
BL Blue
BR Brown
RD Red
OR Orange
WH White
Y Yellow
Y/GN Yellow/Green
Models SRK50CA, 56CA
FM
I
LM
Y
BL
WH
BK
RD
5
4
3
2
1
CNU
F
250V
3.15A
ZNR
Printed circuit board
Power source
1 Phase 220/230/240V 50Hz
Wireless
R-Amp
Display
Back up sw
CNM
Y/GN
Y/GN
G
BL
BR
52C-4 52C-3 S 20S
52X1
52C
52X
1
PC
CNGCNHCNE
23D
52C
RD
OR
WH
BK
BL
WH
F (250V 100mA)
BL
BK
TH
1
TH2
1
2
3
4
1
2
3
4
WH
WH
WH
WH
WH
WH
RD
RD
Cc
BK
BK
51C
CF
0
OR
OR
OR
CM
( )
Indoor unit
Outdoor unit
FM
0
Note(1) This figure shows SRK56CA. As for
SRK50CA, 51C differs as shown in the fig-
ure below.
Note(2) When an abnormality occurred on the out-
door unit for the cooling only model, check
the fuse on the outdoor unit. If the fuse is
burnt out, replace it with new one.
51C
1.3 ELECTRICAL DATA
1.3.1 Electrical wiring

Related product manuals