EasyManua.ls Logo

Mitsubishi SRK25CES - Electrical Data; Electrical Wiring; Power Source

Mitsubishi SRK25CES
260 pages
Print Icon
To Next Page IconTo Next Page
To Next Page IconTo Next Page
To Previous Page IconTo Previous Page
To Previous Page IconTo Previous Page
Loading...
-
134
-
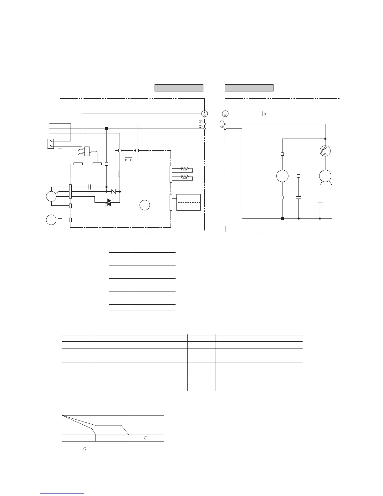
2.1.3 ELECTRICAL DATA
(1) Electrical wiring
Model SRK10CES
Power source
1 Phase 220V 50Hz
CM
52C
Printed circuit board
51C
FMo
BK
BK
T2
Th
2
T1
Th
1
BK
BKWH
WH
CNC
CNE
CNM CNW
CNU
CNC
Sh1
52C352C4
Tr
N
52C
CNB
Y/GN
LB
Y1
5
3
WH
RD
BR
WH
BK
WH
WH
WH
WH
WH
RD
WH
BK
L2
2
3
1
L3
L1
Sh
CFO
ZNR
F
(3.15A)
CFI
Cc
OR
OR
Wireless
Display
R-Amp
HEAT
EXCHANGER
FM
I
SM
Indoor unit Outdoor unit
Notes (1) : denotes magentized relay
×
: denotes demagnetized relay
(2) Th
1 is room temperature sensor. Th2 (the heat exchanger sensor) is frost prevention sensor.
Operation
Cooling
Relay symbol Control part
52C CM
Table of relay operations
Symbol Parts name Symbol Parts name
C
C
Capacitor for CM SM Flap motor
CF
I
Capacitor for FM
I
Th
1
,
2
Sensor
CF
O
Capacitor for FM
O
Tr Transformer
CM Compressor motor ZNR Varistor
F Fuse 51C Motor protector for CM
FM
I
Fan motor (Indoor unit) 52C Magnetic contactor for CM
FM
O
Fan motor (Outdoor unit)
Meaning of marks
BK Black
BL Blue
BR Brown
LB Light blue
Y Yellow
RD Red
OR Orange
WH White
Y/G Yellow/Green
Color symbol

Table of Contents

Related product manuals