EasyManua.ls Logo

Mitsubishi SRK328CENF-L

Mitsubishi SRK328CENF-L
68 pages
To Next Page IconTo Next Page
To Next Page IconTo Next Page
To Previous Page IconTo Previous Page
To Previous Page IconTo Previous Page
Loading...
1-28
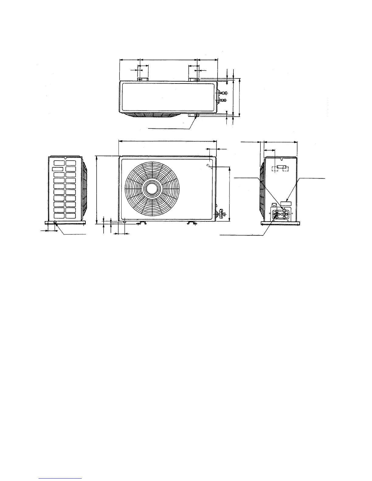
Models SRC501H(C)ENF, 561H(C)ENF
170
Oval (M10x4) holes
for Anchor bolt
Drain pipe
87
15
55
850
70.5
30
100
290
60
87
15
25
19
307
615
25
17
475
345
30
19
510 170
Unit: mm
Service
valve (Gas)
Ø12.7 (1/2˝)
Lebel model
name
Service valve (Liquid)
Ø6.35 (1/4˝)

Related product manuals