EasyManua.ls Logo

Mitsubishi SRK328CENF-L

Mitsubishi SRK328CENF-L
68 pages
To Next Page IconTo Next Page
To Next Page IconTo Next Page
To Previous Page IconTo Previous Page
To Previous Page IconTo Previous Page
Loading...
1-30
A
750
75
92
40
60
746.9
7.5
62
62 7.5
16
VIEW A
75615
150
450 150
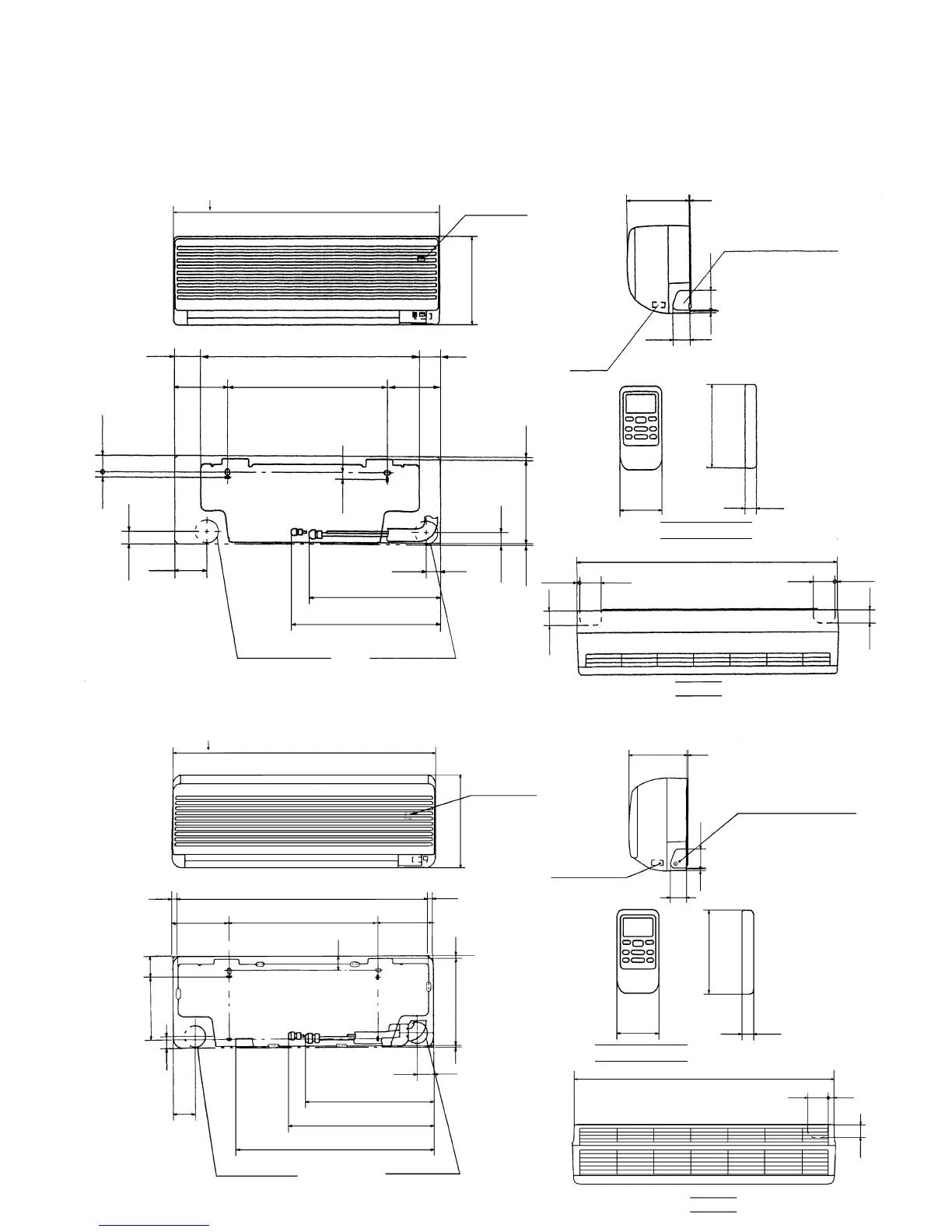
Room temp.
thermistor
Terminal
block
Piping for Gas (
Ø9.52) 370
Piping for Liquid (Ø6.35) 420
Piping hole
(
Ø65)
Piping hole
(Ø65)
Piping hole right (left)
178 3
250
4615
19
9236.5
4.5
36
117
40
37
36
569
49
A
790
15
67
51
60
62
18
16
780
VIEW A
15 760
170
450 170
Room temp.
thermistor
Terminal block
Piping for Gas
(
Ø
12.7) 390
Piping for Liquid (
Ø
6.35) 440
Drain hose 600 (
Ø
16)
Piping hole
(
Ø
65)
Piping hole
(
Ø
65)
Piping hole right (left)
Unit: mm
174 3
275
187.5 61
46
9260
117
37
6
36
56
9
49
1.2.3 Exterior dimensions
(1) Indoor unit
Model SRK25GZ-L1
Unit: mm
Model SRK35GZ-L1
Remote controller
Remote controller

Related product manuals